
Nominacija za Nagradu „Viktor Kovačić“ – Centar urbane kulture Regenerator
Najvažnija kvaliteta projekta Centra urbane kulture Regenerator je činjenica da je uspio generirati novi centar grada. U kontekstu zone obilježene skladištima, halama i recentnim komercijalnim tipologijama velikih trgovačkih volumena, projekt uvodi drugačiji model urbanosti, rahliji, javni i programski slojevit.
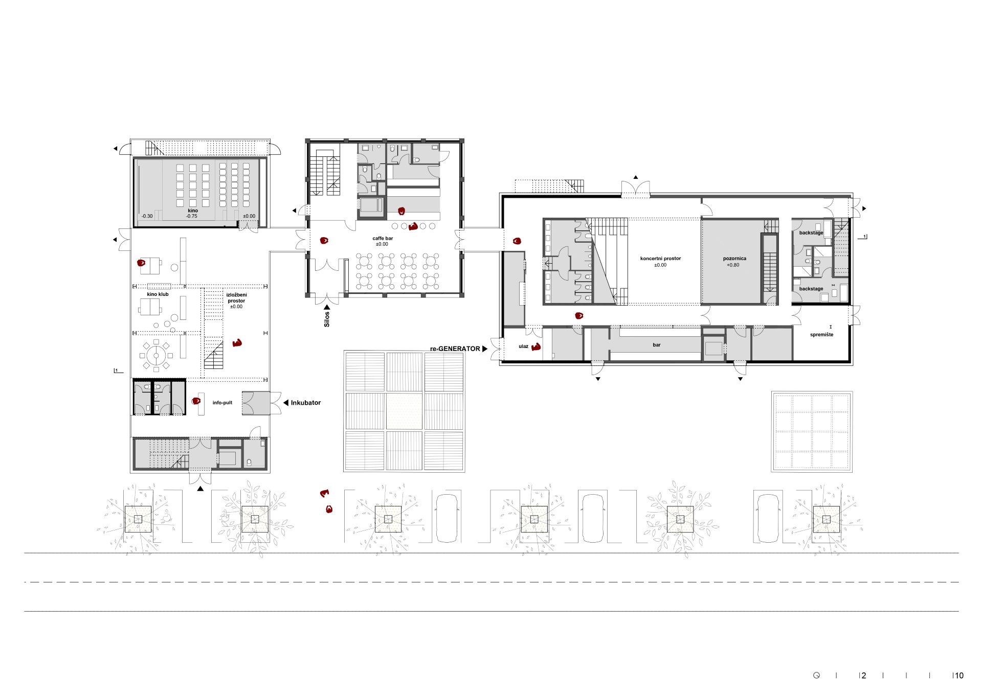
Kompleks je koncipiran kao sklop triju volumena organiziranih oko središnjeg trga. Upravo taj trg predstavlja ključni urbani element. On nije tek predprostor zgrade, nego stvarni javni forum koji funkcionira tijekom cijelog dana. Njegova stalna aktivnost potvrđuje da je projektantska namjera ostvarena te je stvoren prostor okupljanja, susreta i razmjene u gradu relativno malog mjerila, Zaboku. Na toj mikrolokaciji jasno je vidljivo kako kompleks postaje inicijalna točka formiranja novoga urbanog središta.
Posebno je važna prizemna povezanost svih volumena. Kontinuirana razina partera omogućuje internu komunikaciju i različite scenarije korištenja, ali istodobno naglašava javnost čitavog sklopa. Kompleks funkcionira kao mala urbana struktura, svojevrsni mikrokozmos ili „mali grad“ unutar grada u kojem su različiti sadržaji međusobno isprepleteni i komplementarni.
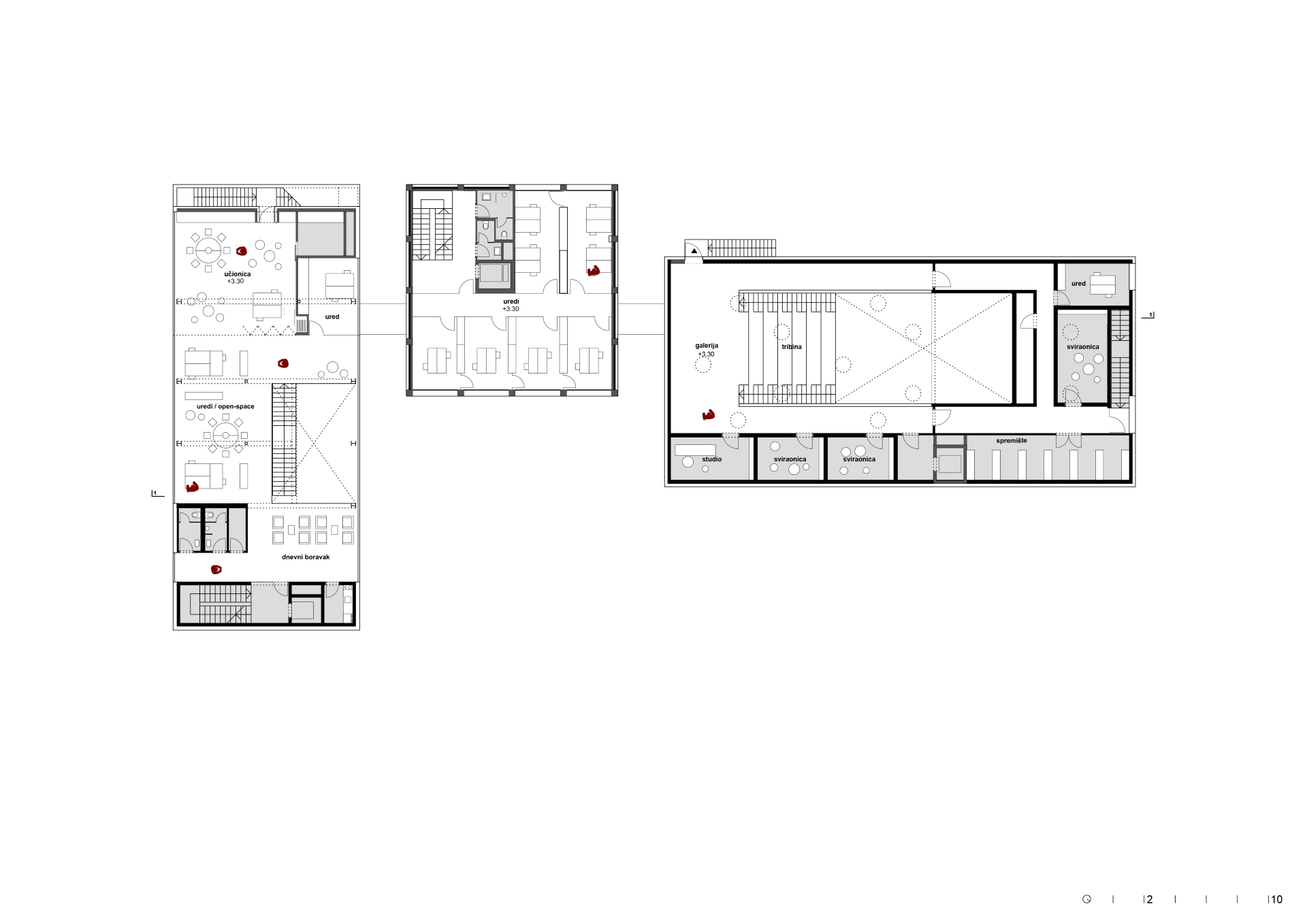
Programska raznolikost presudna je za uspjeh projekta. Koncertna dvorana s prostorima za vježbanje glazbenika, radni prostori u Silosu koji se daju u najam i time ostaju otvoreni široj zajednici, te art-kino, prostori udruga i hostel u Inkubatoru stvaraju kontinuiranu fluktuaciju korisnika različitih generacija i interesa. Projekt ne cilja jednu homogenu publiku, nego uspostavlja platformu za susret kulturnih, obrazovnih i poduzetničkih inicijativa. Upravo ta višeslojnost čini ga snažnim društvenim generatorom.
Materijalizacija je dosljedna kontekstu i nasljeđu lokacije. Odabrani su racionalni, ekonomični materijali koji ne teže reprezentativnosti niti demonstraciji materijalnog luksuza. Njihova vrijednost leži u funkcionalnoj i kontekstualnoj primjerenosti. Industrijski karakter grada i memorija proizvodnje prepoznati su i reinterpretirani bez nostalgije, ali i bez dekorativnosti. Arhitektura ostaje suzdržana, dopuštajući da program i društvena dinamika budu u prvom planu.
Središnji trg, koji se u određenim situacijama transformira u koncertni prostor s vanjskom pozornicom kao svojevrsnim četvrtim elementom sklopa, dodatno naglašava fleksibilnost i otvorenost kompleksa. Time Regenerator djeluje istodobno kao jedna zgrada i kao malo susjedstvo organizirano oko zajedničkoga javnog prostora. U konačnici, projekt nadilazi razinu pojedinačne arhitektonske intervencije. On demonstrira kako pažljivo strukturiran sklop javnih i polujavnih programa može postati inicijalna točka urbane regeneracije. Regenerator ne revitalizira samo industrijsku zonu nego aktivira novu društvenu i prostornu jezgru grada.
Autori: MVA / Mikelić Vreš Arhitekti
Projektni tim: Marin Mikelić, Tomislav Vreš, Sara Pavlov, Alma Sekondo
Suradnici: Marija Barović, Medina Ćevapović, Barbara Horvatić, Mia Kos, Anita Kovačić, Natalija Šarlija, Domagoj Šobatović, Viktor Vdović, Mirko Lež (konstrukcija), Tihomir Halambek / HAL Projekt (elektroinstalacije), Branko Rod / TT inženjering (vodovod i odvodnja), Goran Tomek / TT inženjering (strojarske instalacije), Branimir Cindori / APIN Projekt (automatsko gašenje požara), Hrvoje Puljić / OTIS dizala (vertikalne komunikacije), Željko Mužević / FLAMIT (zaštita od požara i zaštita na radu), Miodrag Gladović / AVC (akustika), Davor Mekovec / GEO-CROATIA (geotehnička istraživanja), Tonko Štimac / APP projektni ured (fizika zgrade), Marko Hrastovec / Hot Type (grafički dizajn i označavanje), Robert Čanak / Modulex (grafički dizajn i označavanje)
Fotografije: Jure Živković
Investitor: Grad Zabok
Lokacija: Zabok, Ulica Mladih 2















Otvorenje Godišnje izložbe i dodjela Nagrada UHA-e planirani su sredinom 2026. godine u Zagrebu.
Sve nominacije za UHA-ine godišnje nagrade za 2025. godinu možete pogledati na poveznici.
Rad Udruženja hrvatskih arhitekata podržavaju Ministarstvo kulture i medija RH, Grad Zagreb i Zaklada Kultura nova.




