Nominacija za Nagradu ‘Drago Galić’ – Stambeni blok Park kneževa


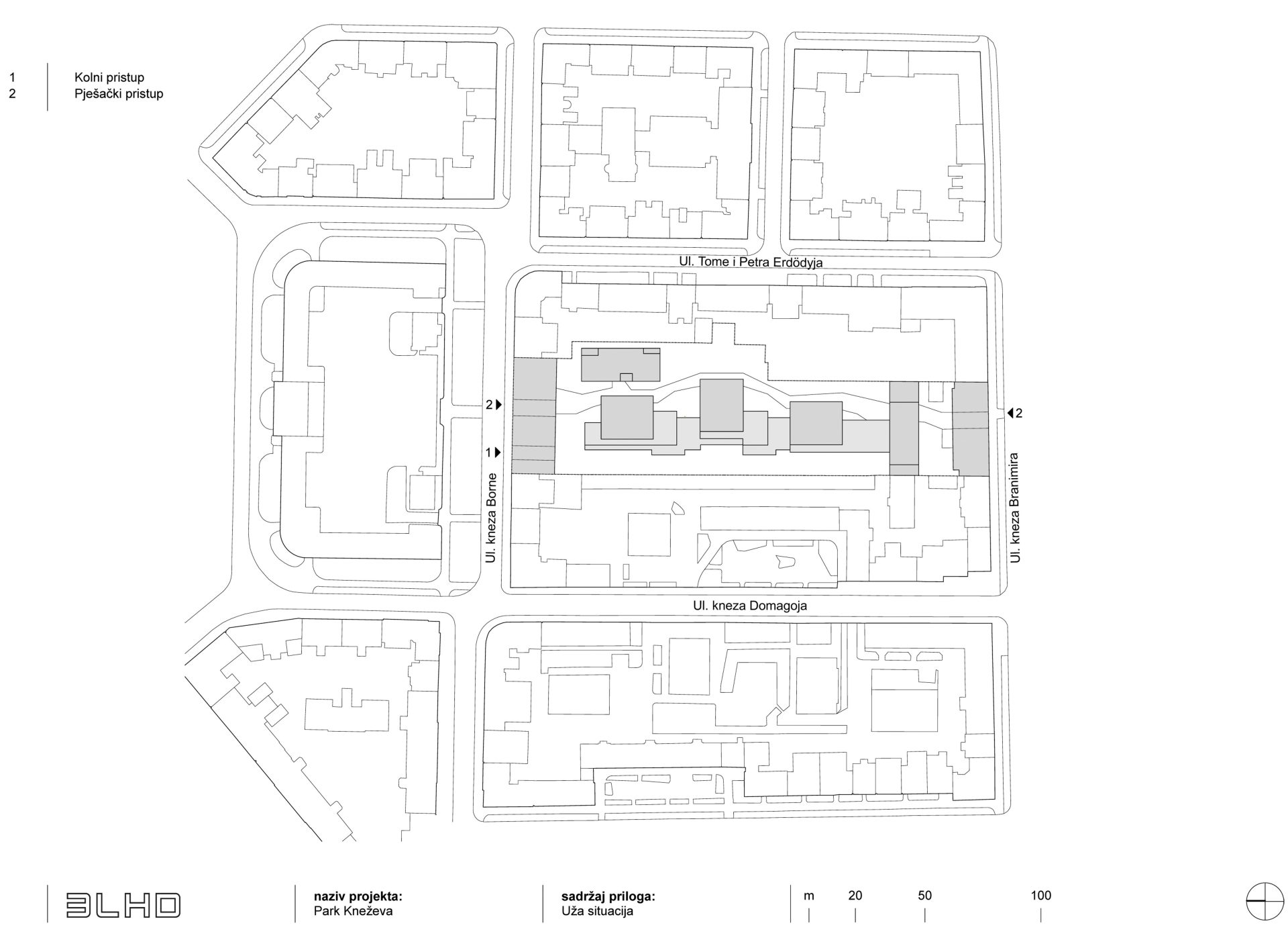
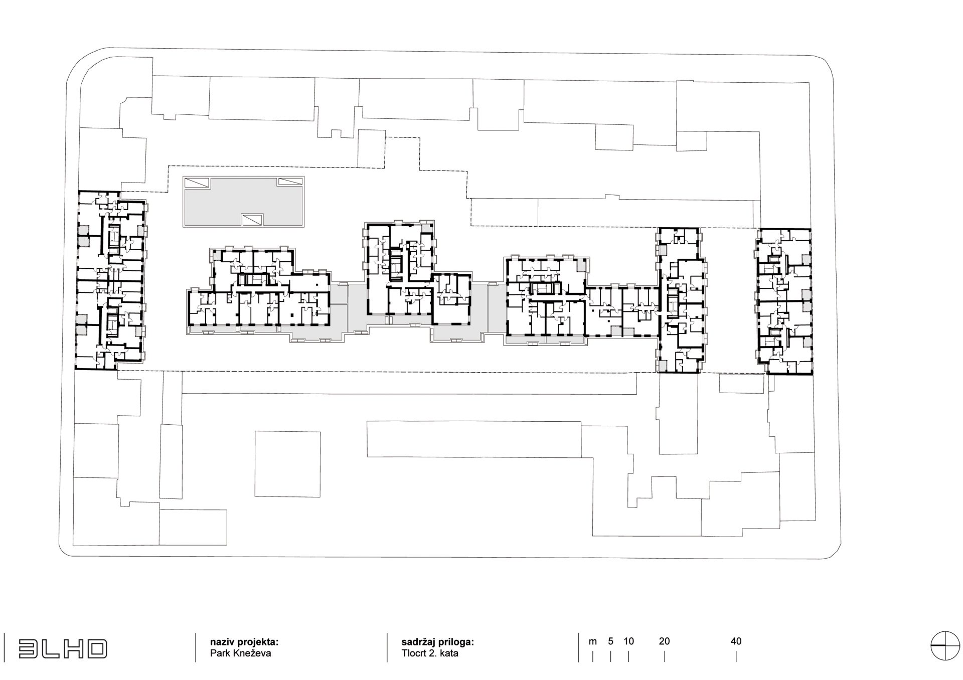
Unutrašnjost zagrebačkih donjogradskih blokova najčešće živi izuzeta iz života grada, skrivajući se iza reprezentativnih pročelja stambene izgradnje svojeg perimetra. Blok omeđen Branimirovom, Borninom, Domagojevom i Erdödyjevom ulicom, nakon propasti industrija koje su ga naseljavale, ostaje s dvije neočekivane praznine u nasuprotnim uličnim nizovima i očekivanom prazninom u svojoj nutrini. Na izduženoj parceli interpolira se stambena izgradnja koja, gotovo anonimno, zatvara praznine uličnih pročelja, dok se u unutrašnjosti stvara novi arhitektonski sklop koji ne slijedi graditeljsku logiku perimetra, nego uspostavlja dijalog sa stambenim tornjevima razgrađenoga, susjednog bloka. Vješto balansirajući između dozvoljene gustoće i ambicije da nove stambene jedinice izađu iz okvira očekivanoga stambenog minimuma, da svaka od njih ima neku dodanu vrijednost, bilo da je riječ o predvrtu, terasi ili pogledu, nova izgradnja ne ugrožava kvalitetu stanovanja u okolnim zgradama. Namjera da sklop stvori dodatnu vrijednost usmjerena je i prema širem susjedstvu. Uvedena je tema pasaža, urbanoga, isključivo pješačkog prolaza, kratice između dviju poprečnih ulica, jedne neaktivne, druge vrlo aktivne, ali s nizom trijemova i poslovnih prostora, pomalo romantičarski vjerujući da će jednog dana oni biti nastanjeni onim sadržajima koji će afirmirati novi, mali centar neposrednog susjedstva. Pročelja tih stambenih ‘uljeza’ u donjogradskoj matrici pomno su dizajnirana s idejom da se stvori privid davno oduzete prirode, u potpunom kontrastu s neprojektiranim unutrašnjim licem perimetra koji ga okružuje. No, ako ih zamislimo ogoljene, bez zavodljivog plašta, sklop i dalje nosi jasnu arhitektonsku misao, možda čak i snažniju.
Iva Letilović
Autori: 3LHD
Projektni tim: Saša Begović, Marko Dabrović, Tatjana Grozdanić Begović, Silvije Novak, Paula Kukuljica, Zoran Šuša, Goran Mraović, Ana Mikelić, Jure Živković, Filip Tomaško, Ivona Šimunović, Nicky Vojvodić, Zrinka Vrkić, Josip Babec Šuša / 3LHD, Majda Vidović, Nina Sarić Zubović, Iva Đaković Margan, Vedran Roljić / VMD model, Marko Zeko, Matija Kokot, Tomislav Šolto / Arhimetrik
Suradnici: Ida Ister (ilustracija), Jelena Bando, Tomislav Buntak, Fedor Fischer, Danko Frišćić, Matko Vekić, Zlatan Vrkljan (umjetnički murali – lobby), Lana Cavar (dizajn signalizacijskog sustava i grafike u prostoru), Juraj Pojatina, David Anđić / Studio Arhing (projekt konstrukcije), Branko Knežević / ATP projektiranje (projekt elektroinstalacija), Ana Islamović / ATP arhitekti inženjeri (projekt strojarskih instalacija, projekt vodovoda i odvodnje), Maksim Carević, Josip Radeljić / Inspekting (elaborat zaštite od požara), Boris Leović / C5 Koncept (projekt prometa), Nataša Tiška Vrsalović / DIONAEA-VRTOVI (projekt krajobrazne arhitekture), Damir Čizmek / IN-AQUA (projekt navodnjavanja), Mateo Biluš / AKFZ studio (fizika zgrade, projekt detalja), Mladen Vujnović / Aling (projekt sprinkler instalacije), Lucija Ivas / FOREL projekt (troškovnik građevinskih i obrtničkih radova), Živko Mihovilović / Grasa (projekt zaštite građevinske jame), Ante Knez / Knez-INVEST (geodetski projekt)
Fotografije: Jure Živković
Investitor: VMD Model d.o.o.
Izvođač: Team Građenje
Lokacija: Zagreb, Ulica Kneza Branimira – Ulica Kneza Borne












Otvorenje Godišnje izložbe i dodjela Nagrada UHA-e planirani su u svibnju 2023. godine u Zagrebu.





