

Nominacija za Nagradu „Drago Galić“ – Kuća 164
Smještena na južnim obroncima Medvednice u okruženju gdje obiteljske kuće sve više ustupaju mjesto urbanim vilama, obiteljska kuća naglašenoga longitudinalnog formata utjelovljuje nova promišljanja i odgovore na suvremene potrebe stanovanja.
Autori pristupaju projektnom zadatku obiteljske kuće za peteročlanu obitelj – bračni par s troje djece – uz zahtjev da kuća, u svojoj početnoj fazi, zadovolji potrebe zajedničkoga obiteljskog života. Dodatno, planirana građevina treba omogućiti buduću prilagodbu kojom bi se jednostavnim građevinskim zahvatima mogla transformirati u tri autonomne stambene jedinice – po jednu za svako dijete.
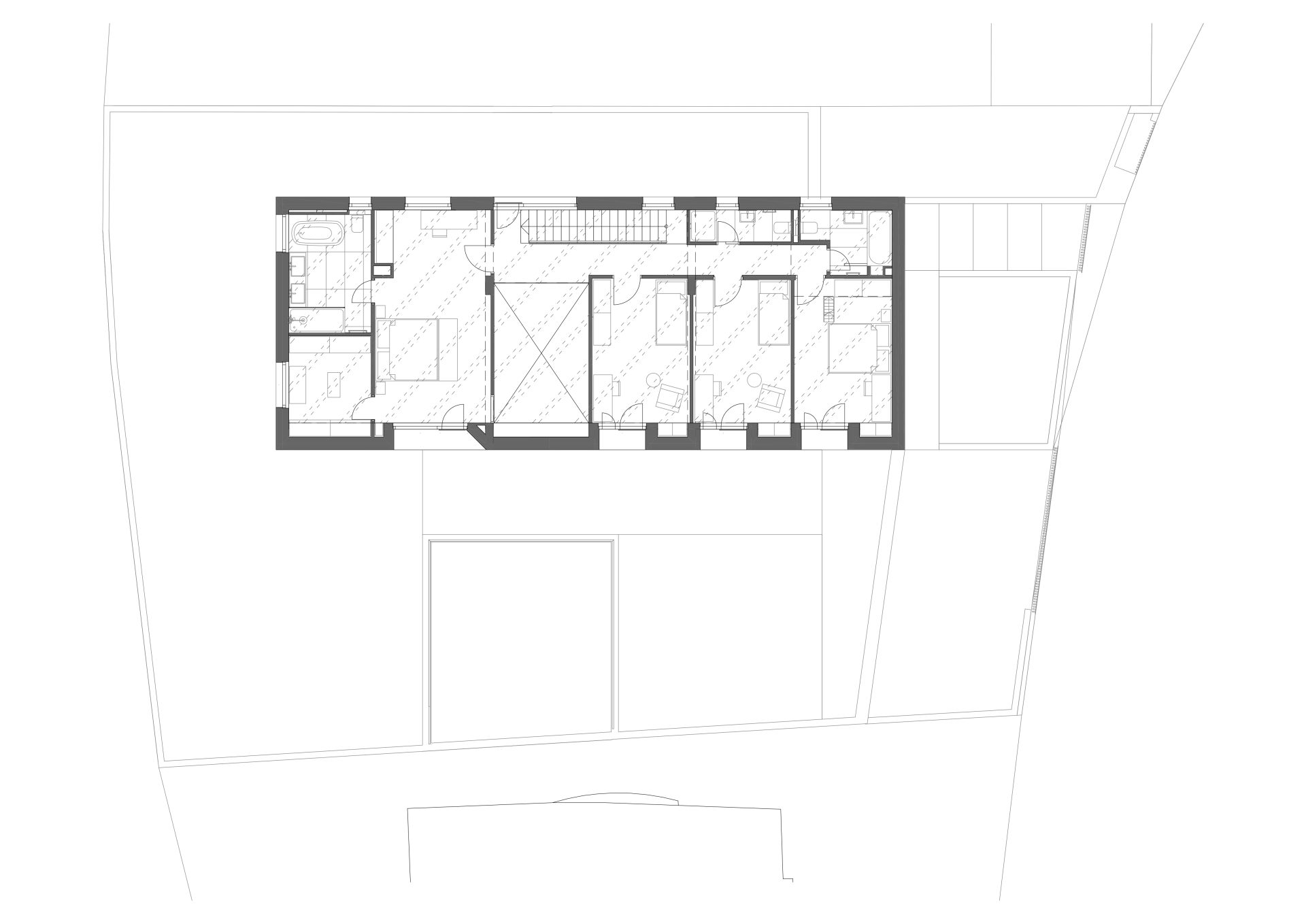
To rezultira oblikovanjem gdje se gotovo modularnim pristupom adicijom manjih volumena gradi jedan veći, a ideja o budućoj podjeli kuće na manje jedinice simbolično se očituje u raščlambi zadnje etaže na tri jednaka dvostrešna krova.
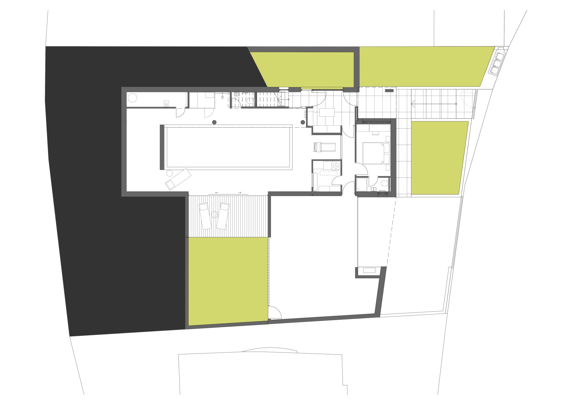
Postavljanjem kuće uz sjeverni rub parcele autori oslobađaju vrijedan južni prostor koji dodatno oplemenjuju kreiranjem niza otvorenih prostora, uspostavljajući njihovu snažnu povezanost s unutarnjim sadržajima kuće.
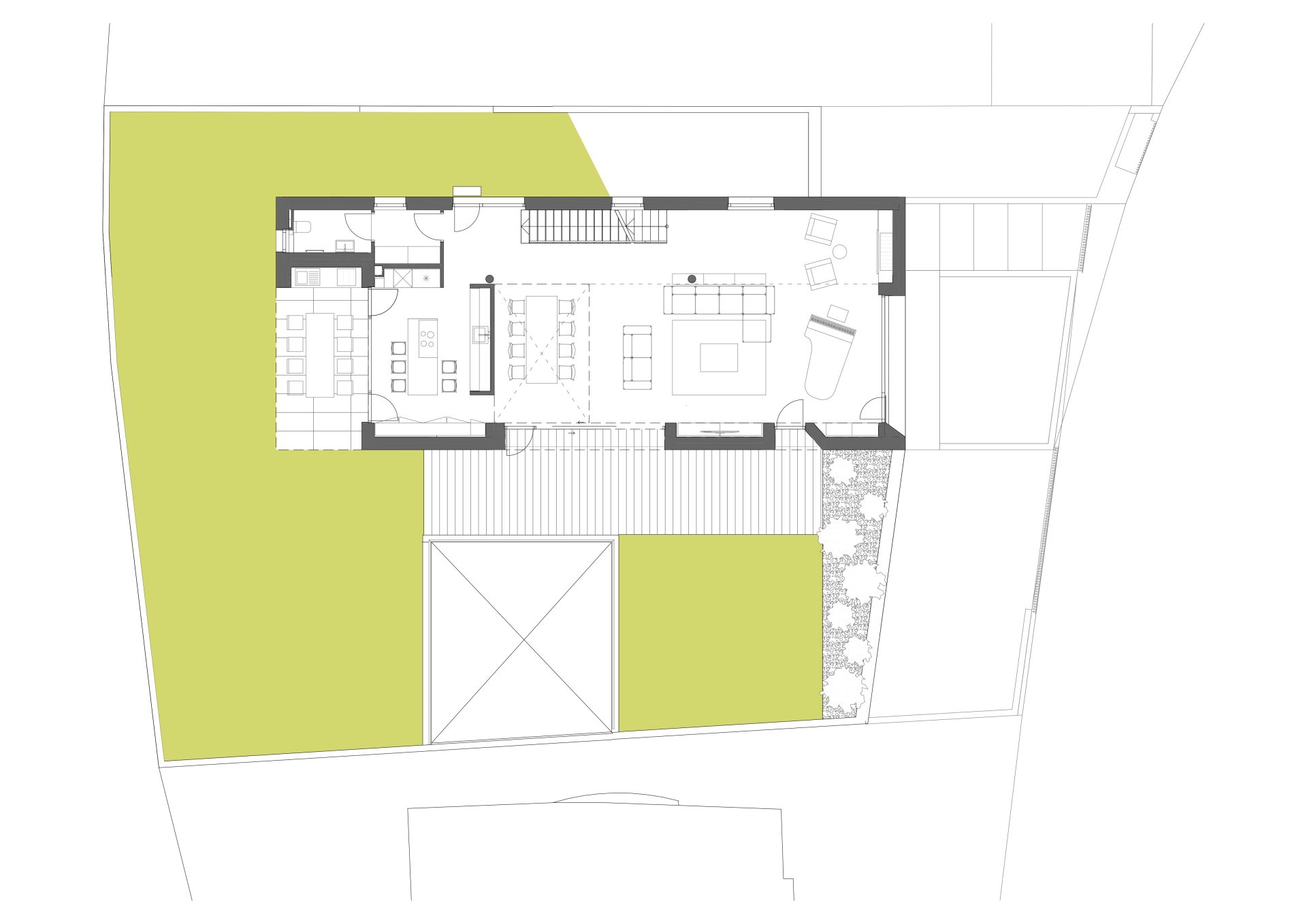
Ta gesta osjeća se već pri samom ulasku u kuću u najdonjoj etaži, koja je većim dijelom ukopana. Bočno pridruženi atriji uz ulazni dio te uz prostor bazena omogućuju prirodno osvjetljenje što doprinosi ukupnoj prostorno doživljajnoj kvaliteti. U nastavku naglašeni pravac stubišta vodi na gornju etažu, odnosno piano nobile, koja se sagledava gotovo u svom totalitetu i čija se prostornost gradi svega jednim zidom prema kuhinji te setom mobilijara. Na toj etaži fizička i vizualna povezanost s okolnim terenom je najizraženija, a dodatno se nastavlja preko dvoetažnog prostora iznad blagovaonice prema gornjoj etaži spavaćih soba. Drveni lamelirani nosači, vidljivi u dijelu dvoetažnoga boravišnog prostora, osim konstruktivne uloge, doprinose plasticitetu prostora, stvarajući kontrast sa zaglađenom stropnom pločom od vidljivog betona.
Prostorna snaga te etaže, koja afirmira osjećaj obiteljskog zajedništva, dolazi do izražaja u mogućnosti sagledavanja kuće u njezinoj punoj dubini, pa čak i dokidanju njezinih fizičkih granica – od stražnjega kuhinjskog dvorišta, kroz boravak i pored simbolično centralno pozicioniranog klavira, sve do ulice i obronaka šume Jelenovac.
Tomislav Soldo
Autori: Danijel Marasović, Filip Pochobradsky
Ured: Studio crta
Projektni tim: Branko Galić (projekt konstrukcije), Goran Parenta (projekt termoinstalacija i hidroinstalacija), Juraj Jordanić (projekt elektrotehnike), Goran Vučković (građevinska fizika)
Fotografije: Robert Leš
Investitor: Robert Blaić, Martina Perić Blaić
Izvođač: G.Z.R. Dunđer
Lokacija: Zagreb, Vinogradi 8


















Otvorenje Godišnje izložbe i dodjela Nagrada UHA-e planirani su početkom lipnja 2025. godine u Zagrebu.
Sve nominacije za UHA-ine godišnje nagrade za 2024. godinu možete pogledati na poveznici.
Rad Udruženja hrvatskih arhitekata podržavaju Ministarstvo kulture i medija RH, Grad Zagreb i Zaklada Kultura nova.