

Nominacija za Nagradu „Drago Galić“ – Double Villa Bukovac
Već sam naziv „Double Villa Bukovac“, koji su arhitekti nadjenuli projektu, ističe njegovu najvažniju temu. Pod tipom vile općenito se podrazumijeva bolja (ali ne nužno i veća) stambena zgrada s velikom zelenom parcelom, pa je bitan odnos prema okolini i zelenilu. Danas se tim nazivom često reklamiraju „nadstandardno“ spekulativno građene višestambene zgrade – „urbane vile“. Atribut „duplo“, naravno, odnosi se na dvije kuće, uvjetno dvojnog tipa, koji je izvorno nastao s ciljem što ekonomičnije gradnje na maloj parceli. Ovdje su kritički reartikulirana oba „generička“ tipa stambenih zgrada, a arhitekti su stvorili suvremenu arhitekturu koja je inovativna na više razina.
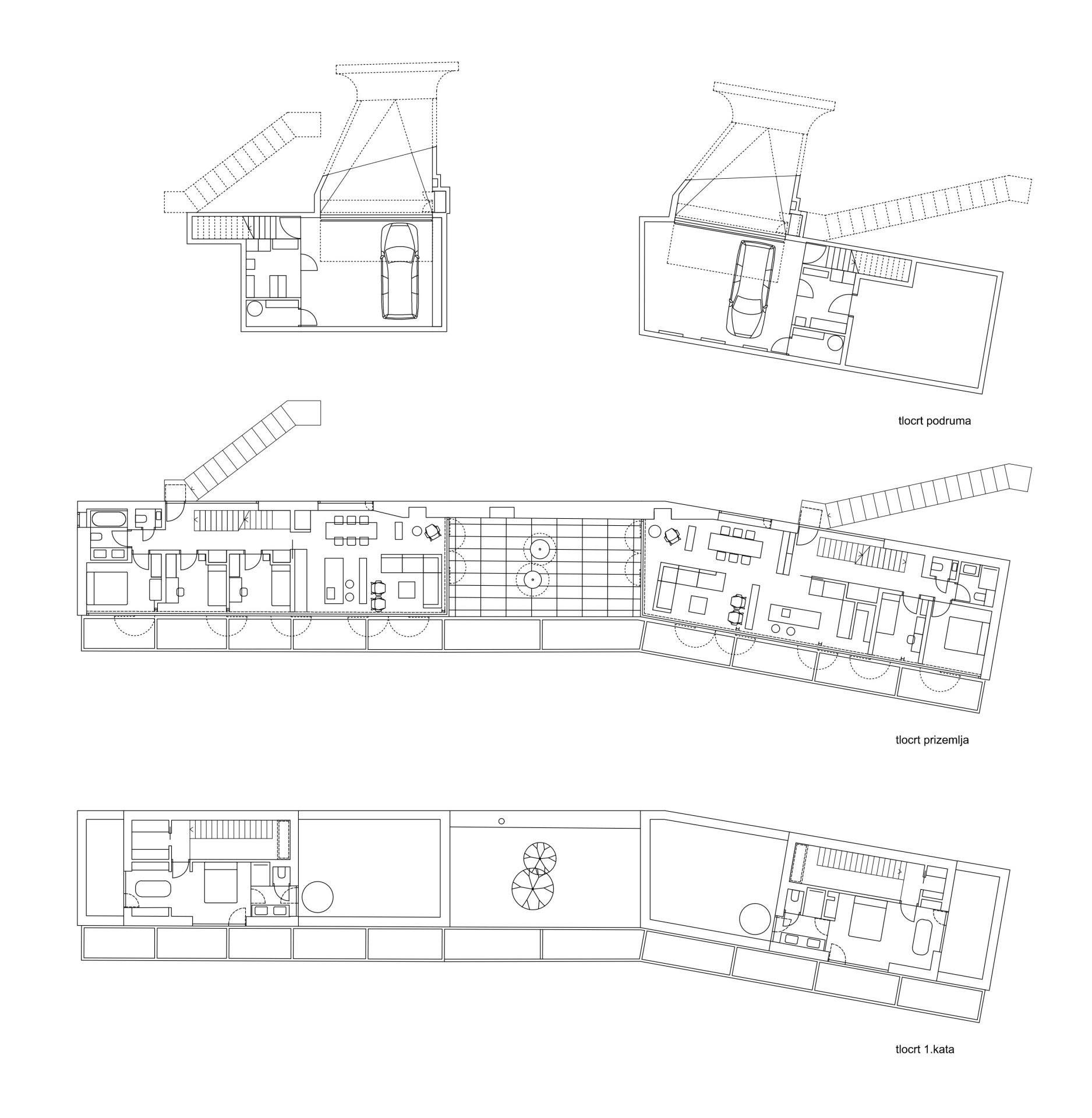
Dvije obiteljske kuće u obliku lomljenih lamela postavljene su na rubu parcele – poput programiranog „zida“, koji uspostavlja ulicu prema cesti, a stvara veliki zeleni vrt prema centru Zagreba koji se prostire u podnožju.
S ulične strane stambeni dijelovi kuća izgledaju kao da su smješteni na zelenom nasipu u kojem se nalaze garaže i servisni prostori. Konzolne betonske stube vode do ulaza koji se nalaze u razini iznad ulice. Izduženi objekti povezani su otvorenom terasom koja na specifičan način stvara situaciju atrijskih kuća, a ujedno predstavlja točku potencijalnog povezivanja dviju susjednih obitelji. Na svakoj od lamela nalazi se još manji volumen sa spavaćom sobom, zapravo samo prostorijom smještenom u prizemlju, čime se konačno definira „novi“ tip linearne prizemne atrijske kuće u nizu, koja se dužom stranom otvara prema van (standardne atrijske kuće obično se dodiruju dužim stranicama, a kontakt s eksterijerom imaju preko užih stranica).
Materijalna podjela prati „tripartitnost“ objekata – podrumski dio je „zemljani“, prizemlje obloženo opekom, terasni volumen okružen je laganom fasadom, pri čemu arhitekti propituju i način korištenja fasadnih materijala. Ulična fasada od opeke nije izvedena kao „standardni“ stereotomski zid, nego su opeke naslagane jedna na drugu duž uske strane – pokazujući njihov perforirani presjek, dajući ovoj oblogi lakši, tekstilni karakter. S vrtne strane, za razliku od supermaterijalne fasade od opeke, moglo bi se govoriti o „odsutnosti“ fasade – radi se o „samo“ standardnim dvostrukim staklima, koje će od pregrijavanja štititi nadstrešnica od čeličnih profila. Potpuna otvorenost prema vrtu i pogledu na Zagreb govori o hedonističkom potencijalu stanovanja, a kuću skromne kvadrature naravno pretvara u modernu vilu. „Boks“ terasa obložen je kabelskim policama od pocinčanog lima, a njihove tipične perforacije stvaraju nasumični ornament na pročelju – možda bismo nazivu projekta mogli dodali i odrednicu „Readymade Semper“.
Primjer dviju kuća relevantan je doprinos suvremenoj hrvatskoj arhitekturi jer kritičkim promišljanjem dosljedno razvija arhitektonske inovacije na razini urbanističkog oblikovanja, tipološke organizacije i materijalnog određenja.
Jure Grohar
Autori: Hrvoje Njirić, Iskra Filipović
Ured: njiric+ arhitekti
Projektni tim: Hrvoje Njirić, Iskra Filipović / njiric+ arhitekti
Fotografije: privatna arhiva, Danijel Krznarić, Bosnić+Dorotić
Lokacija: Zagreb, Gornji Bukovac















Otvorenje Godišnje izložbe i dodjela Nagrada UHA-e planirani su početkom lipnja 2025. godine u Zagrebu.
Sve nominacije za UHA-ine godišnje nagrade za 2024. godinu možete pogledati na poveznici.
Rad Udruženja hrvatskih arhitekata podržavaju Ministarstvo kulture i medija RH i Zaklada Kultura nova.

