
Natječaj za spomen obilježje u Dubrovniku: rezultati
GRAD DUBROVNIK
i
UDRUŽENJE HRVATSKIH ARHITEKATA (UHA)
OBJAVLJUJU REZULTATE ZA
Javni, opći, u jednom stupnju, anonimni, za realizaciju, trećeg stupnja složenosti
LIKOVNI I ARHITEKTONSKO – URBANISTIČKO – KRAJOBRAZNI NATJEČAJ
za izradu idejnog rješenja:
JAVNI GRADSKI PARK SA SPOMEN OBILJEŽJEM ZA DJECU POGINULU U DOMOVINSKOM RATU U DUBROVNIKU
Grad Dubrovnik, Pred Dvorom 1, Dubrovnik, OIB: 21712494719, Internetska adresa: www.dubrovnik.hr; telefon: 020/351 800; e-mail: gradonacelnik@dubrovnik.hr; kojeg zastupa gradonačelnik Grada Dubrovnika Mato Franković
PROVODITELJ:
Udruženje hrvatskih arhitekata (UHA), 10000 Zagreb, Trg bana Josipa Jelačića 3/1, 10000 Zagreb OIB: 01152649489, Internetska adresa: https://www.uha.hr/, koje zastupa predsjednik Roman Šilje, dipl.ing.arh., telefon: (+385) 01/4816 151, e-mail adresa: tajnistvo@uha.hr
AUTORI NATJEČAJNOG ELABORATA:
Udruženje hrvatskih arhitekata (UHA), Zagreb, Trg bana Josipa Jelačića 3/1, 10000 Zagreb
Stručni tim na izradi natječajnog programa:
Maja Kireta, dipl.ing.arh., ovlaštena arhitektica A 3310
CPV: 71200000-0 – arhitektonske i srodne usluge
CPV: 71220000-6 – usluge projektiranja u arhitekturi
CPV: 71230000-9 – organizacija natječaja u području arhitekture
Oznaka iz Plana nabave Raspisivača natječaja: 07-01/23MV
Registarski broj natječaja Hrvatske komore arhitekata: 143-23/DU-LAUK/NJN
PREDMET I SVRHA NATJEČAJA:
PREDMET NATJEČAJA je izrada likovnog i arhitektonsko – urbanističko – krajobraznog idejnog rješenja javnog gradskog parka sa spomen obilježjem za djecu poginulu u Domovinskom ratu u Dubrovniku s izradom projektno – tehničke dokumentacije.
Grad Dubrovnik želi realizirati na zadanoj lokaciji rješenje visoke estetske, funkcionalne i oblikovne kvalitete unutar optimalnog financijskog okvira. Stoga se odlučuje na provedbu natječaja koji će omogućiti odabir najkvalitetnijeg rješenja između više ponuđenih autorskih radova.
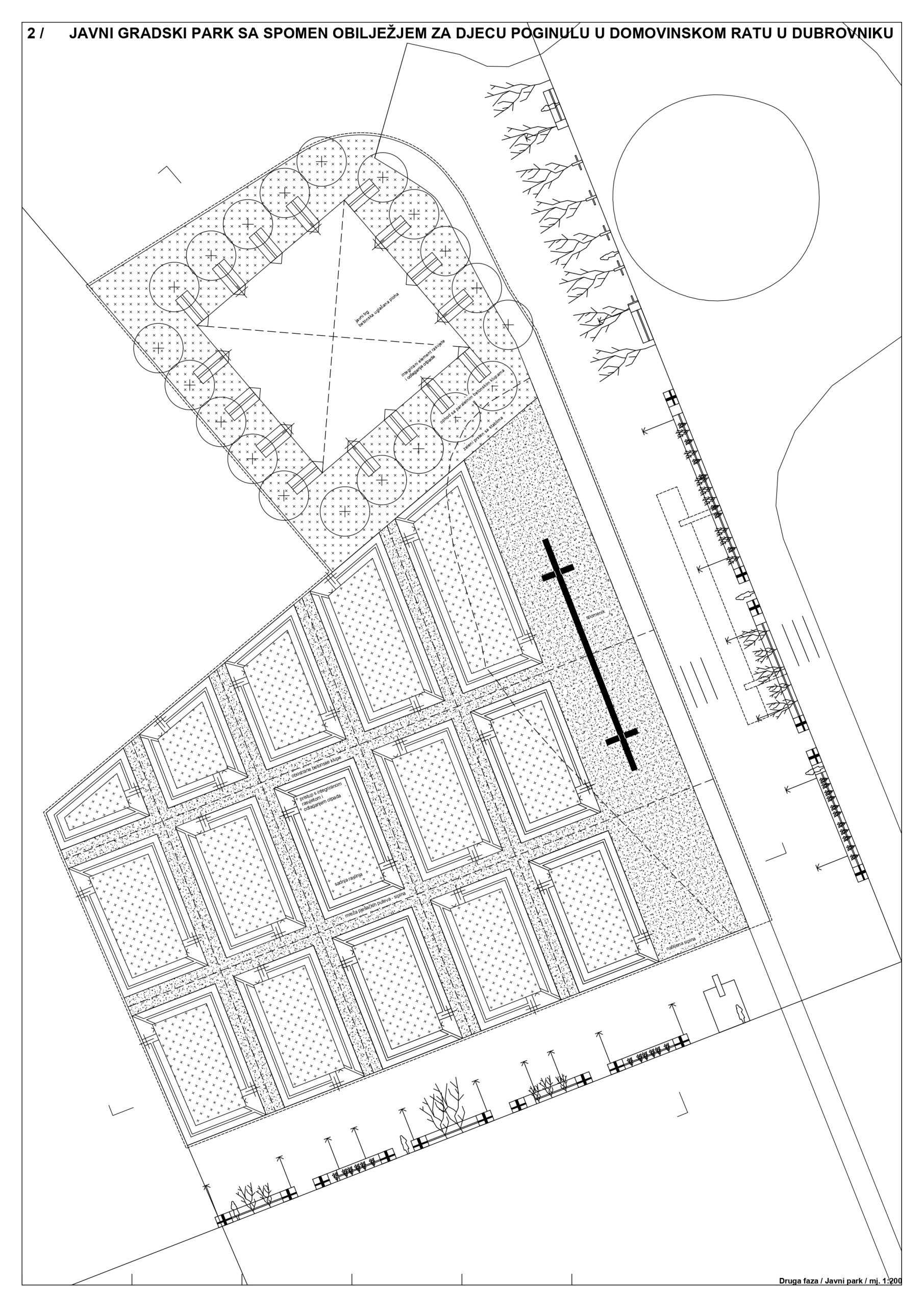
Idejno rješenje obrađuje javni prostor u luci Gruž sa spomen obilježjem poginuloj djeci. Javni park planira se na površini P=3685m2, a unutar njega u istočnom djelu određena je pozicija spomen obilježja. Oblikovanje javnog prostora i oblikovanje spomen obilježja zadaća je autora idejnog likovnog i arhitektonsko – urbanističko – krajobraznog rješenja. Očekuje se integralno rješenje u skladu sa zadanim lokacijskim uvjetima i kontekstom.
Natječaj je trećeg je stupnja složenosti jer njegov značaj prelazi nacionalne okvire u pogledu teme koju obrađuje i lokacije na kojoj se provodi. Žrtve Domovinskog rata, a posebice stradala djeca, ostavila su dubok trag u povijesti Republike Hrvatske i međunarodne zajednice. Sjećanje na žrtve Domovinskog rata tema je koja nadilazi nacionalne okvire i vezuje se uz međunarodne konvencije o zaštiti ljudskih prava i sloboda. Smještajem spomen obilježja u zoni međunarodne luke Dubrovnik, dodatno se naglašava važnost isticanja pijeteta prema stradaloj djeci te se prema svim posjetiteljima i građanima Dubrovnika upućuje poruka zajedničkih međunarodnih vrijednosti zaštite građana, posebice djece, tijekom ratnih sukoba. Spomen obilježje stradaloj djeci u Dubrovniku snažna je poruka koja nadilazi nacionalni značaj samog zahvata u prostoru.
Dodatno, prostor gruškog akvatorija, povijesni je prostor u kojem su nastali zaštićeni primjeri renesansne i barokne arhitekture koje zajedno s ladanjskom cjelinom Rijeke dubrovačke, čine jedinstvenu društveno povijesnu cjelinu s gradom Dubrovnikom koji je uvršten na UNESCO listu baštine 1979. godine.
Kako bi se osiguralo kvalitetno rješenje, pozivaju se autori da promisle o obuhvatu koji je predmet natječaja i daju mu reprezentativnu vrijednost, a sve u skladu s dostupnim budžetom za realizaciju koji iznosi 895.000,00 E+ PDV. Ovaj natječajni zadatak propisuje suvremeni izričaj, ekonomičnost, racionalnost, funkcionalnost i provedivost. Cilj i svrha natječaja je dobiti rješenje koje svojom kvalitetom dostojno obilježava sjećanje na stradalu djecu, ali i promiče međunarodne vrijednosti koje se oslanjanju na zaštitu ljudskih prava i ukazuje na europske vrijednosti koje baštinimo. Krajnji cilj ovog natječaja jest odabir najboljeg rješenja među pristiglim prijedlozima, prema kriterijima ocjenjivanja koji su precizno propisani uvjetima natječaja.
Na natječaj, koji je trajao od 5. 10. 2023. god. do roka za predaju natječajnih radova 21. 11. 2023.. god., zaprimljeno je ukupno 19 radova.
OCJENJIVAČKI SUD je djelovao u sastavu:
- Mato Franković, gradonačelnik Dubrovnika
- Marija Lukšić, Udruga civilnih stradalnika DNŽ
- Davor Bušnja, dipl.ing.arh., ovlašteni arhitekt
- Romano Duić, dipl.ing.arh., ovlašteni arhitekt
- Alem Korkut, akademski kipar
- Tonči Čerina, dipl.ing.arh., ovlašteni arhitekt
- Ines Hrdalo, mag.ing.prosp.arch.
- doc.dr.sc. Alan Kostrenčić, dipl.ing.arh., ovlašteni arhitekt
- Bernarda Silov, dipl.ing.arh., ovlaštena arhitektica – predsjednica ocjenjivačkog suda
Zamjenici članova OS -a:
- Božo Benić, mag.ing.arch., predstavnik Raspisivača
- Krešimir Damjanović, mag.ing.arch., predstavnik Provoditelja
Tehnička komisija:
- Maja Kireta, dipl.ing.arh., ovlaštena arhitektica
- Ivana Krešić, dipl.ing.arh.
Tajnica natječaja:
Dina Horvat, mag.ing.arh., ovlaštena arhitektica
Ocjenjivački sud je na IV. sjednici održanoj 26. 11. 2023. sljedeću odluku o dodijeli nagrada:
I. nagrada u neto iznosu 9.000,00 EUR dodijeljena je radu pod šifrom 3:
AUTORI: DALIBOR STOŠIĆ, akademski kipar (autor skulpture i arhitektonsko-urbanističkog-krajobraznog rješenja); HRVOJE BILANDŽIĆ d.i.a. (autor arhitektonsko-urbanističkog-krajobraznog rješenja)



II. nagrada u neto iznosu 5.625,00 EUR dodijeljena je radu pod šifrom 9:
AUTORI: TANJA GOLEŠ dipl.ing.arh.; ANTONIJA MILOVAC mag.ing.arch.
SURADNICI: rasvjeta – MARTIN GARAJ M.A.Arch.Lighting Design; maketa – MARKO AMBROS dipl.ing.arh.
*prema naknadnom zahtjevu autora u popis suradnika autorskog tima dodaje se:
krajobraz – LUKA BRNIĆ mag.ing. prosparch.



III. nagrada u neto iznosu 3.375,00 EUR dodijeljena je radu pod šifrom 8:
AUTOR: IVA MARTINIS, mag.ing.arch.



IV. nagrada u neto iznosu 2.700,00 EUR dodijeljena je radu pod šifrom 2:
AUTOR: mr.sc. ANĐELKA BOŠNJAK, d.i.a; SURADNIK: dipl.diz. BARBARA ZEC



V. nagrada u neto iznosu 1.800,00 EUR dodijeljena je radu pod šifrom 13:
AUTORI: DINA KELEMEN KOCIJAN, TAJANA LEVOJEVIĆ, DOMAGOJ MLINARIĆ, LUKA UCHYTIL



PROCIJENJENA VRIJEDNOST INVESTICIJE:
Temeljem članka 327. stavak 3. ZJN 2016. procijenjena vrijednost nabave u iznosu od 133.000,00 EUR bez PDV-a temelji se na ukupnom iznosu nagrada i isplata uključujući procijenjenu vrijednost nabave za ugovor o javnoj nabavi usluga, koji će se sklopiti temeljem članka 133. stavka 1. točke 1. ZJN 2016 te se raščlanjuje na iznose kako slijedi:
| PROCIJENJENA VRIJEDNOST JAVNE NABAVE: | neto / eur |
| nagradni fond | 22.500,00 |
| naknada radnom tijelu | 10.500,00 |
| izrada projektno-tehničke dokumentacije za uređenje javnog gradskog parka sa spomen obilježjem za djecu poginulu u Domovinskom ratu u Dubrovniku | 100.000,00 |
| UKUPNO | 133.000,00 |
Temeljem rezultata natječaja sklopit će se ugovori o pružanju usluga izrade projektno tehničke dokumentacije za uređenje javnog gradskog parka sa spomen obilježjem za djecu poginulu u Domovinskom ratu u Dubrovniku.
SADRŽAJ
Projektno tehnička dokumentacija sadrži idejni projekt, glavni projekt i izvedbeni projekt s troškovnicima koji se izrađuju sukladno važećim pravilnicima, a uključuje različite projekte, elaborate i podloge pojedinih struka:
- Arhitektonski projekt
- Projekt krajobraznog uređenja
- Građevinski projekt konstrukcije
- Građevinski projekt vodovoda i odvodnje
- Elektrotehnički projekt
- Građevinski projekt uređenja pješačko kolnih površina
- Geodetske usluge (geodetska situacija stvarnog stanja, geodetska situacija građevine/zgrade i GML datoteka čestice i građevine/zgrade)
Projektno tehnička dokumentacija ne uključuje eventualno ostale potrebne tehnološke projekte, istraže radove ili druge stručne podloge.
Raspisivač (javni naručitelj) će sklopiti Ugovor o pružanju usluga za izradu projektno-tehničke dokumentacije temeljem pregovaračkog postupka bez prethodne objave poziva na nadmetanje, sukladno članku 133. ZJN (NN 120/16,114/22) s Ponuditeljem kojeg predloži autor/i prvonagrađenog natječajnog rada.
Planirana investicijska vrijednost iznosi ukupno 895.000,00 EUR + PDV.
PREGOVARAČKI POSTUPAK JAVNE NABAVE BEZ PRETHODNE OBJAVE
Za izradu projektno-tehničke dokumentacije procijenjene vrijednosti 100.000,00 eura neto bez PDV-a, Raspisivač će, nakon provedenog pregovaračkog postupka javne nabave bez prethodne objave, sukladno članku 133. stavak 1. ZJN, s osobom koju je za izradu daljnje projektne dokumentacije u posebnoj omotnici označenoj s „OSOBA OVLAŠTENA ZA PROJEKTIRANJE“ predložio Natjecatelj koji je autor prvonagrađenog rada, a koja zadovolji uvjete sukladno ZJN i ovim uvjetima Natječaja, pod uvjetom da ima dokaze sposobnosti propisane ZJN i da je u skladu s Pravilnikom, te se u tom smislu smatra Ponuditeljem, sklopiti ugovor.
OSTALI NAVODI:
Natječaj se provodi prema Zakonu u javnoj nabavi (120/16, 114/22), Odluci o uvjetima i načinu provedbe javnih natječaja iz područja prostornog uređenja (Službeni glasnik Grada Dubrovnika, broj 14/15) i Pravilniku o natječajima s područja arhitekture, urbanizma, unutarnjeg uređenja i uređenja krajobraza (NN 85/14) Hrvatske komore arhitekata čijih su se odredbi svi sudionici natječaja dužni pridržavati, ukoliko nisu u suprotnosti s ZJN (120/16, 114/22) i Odluci o uvjetima i načinu provedbe javnih natječaja iz područja prostornog uređenja (Službeni glasnik Grada Dubrovnika, broj 14/15).
Za Ocjenjivački sud:
Dina Horvat, dipl.ing.arh.,
tajnica natječaja
Rad Udruženja hrvatskih arhitekata podržavaju Ministarstvo kulture i medija RH i Zaklada Kultura nova.

