Dječji vrtić Snježna pahulja
AUTORI
O PROJEKTU (TEKST AUTORA) +
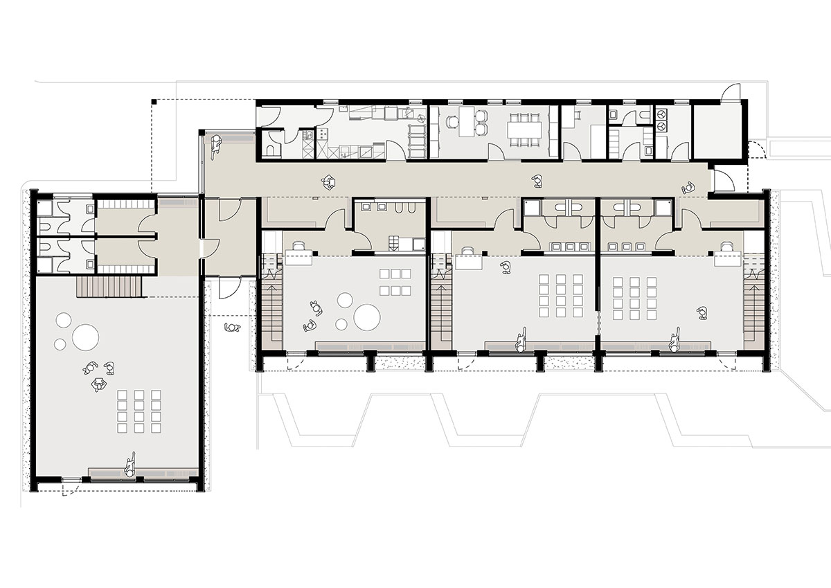
Zgrada prvog dječjeg vrtića u Fužinama smještena je nedaleko od centra mjesta, uz glavnu prometnicu, unutar gusto izgrađenog dijela naselja i omeđena sa sjeverne strane rijekom Ličankom. Prilagođavajući se okolnoj ruralnoj izgradnji zgrada vrtića dijeli se na manje volumene dodatno naglašene vanjskom ovojnica od tamnog profiliranog lima.
Četiri su volumena od kojih onaj najdominantniji polivalentne dvorane naglašava i formira ulaz u dječji vrtić s jugozapadne strane, dok se u ostalima nalaze vrtićke jedinice. Prostor ulaza i dvorane organiziran je na način da je omogućeno i njeno korištenje kao društvenog prostora stanovnika Fužina. Odabirom kosog dvostrešnog krova, koji je nagibom blizak lokalnoj arhitekturi, u vrtićkim su volumenima organizirani dvoetažni prostori za potrebe 52 korisnika (djece). Galerije, povezane stubištem s ostatkom jedinica, namjerno su manje visine kako bi služile kao intimniji prostori isključivo namijenjeni za boravak djece.
Ulaskom u vrtićke volumene korisnik jasno doživljava ritam odvojenih jedinica, čiji je interijer kompletno obložen drvom, u potpunom kontrapunktu s tamnim fasadnim i krovnim limom te žbukanim pročeljima. Maksimalna iskorištenost drvenih materijala u interijeru direktna je asocijacija na drvo kao tradicionalnu sirovinu područja Gorskog kotara.
Zaigranost djece kao korisnika zgrade te lokacija i mikro okruženje naselja i ambijenta u kojem se vrtić nalazi, interpretirani su u oblikovanju fronte zgrade grafičkim prikazom „kućice“ na pročeljima glavnih volumena. Na taj način fasada, uokvirena suvremenom interpretacijom kosog krova, stvara igru sjena i percepcije izgleda objekta, puštajući prolaznika da "odabere" koji mu je prikaz draži.
TVRTKA
SURADNICI
Martina Vivoda , Petar Topić (Pro Studio d.o.o. - statika)
INVESTITOR
Općina Fužine
IZVOĐAČ
Euromodul d.o.o , GP Krk d.d.
GODINA POČETKA PROJEKTIRANJA
2018
GODINA DOVRŠETKA PROJEKTIRANJA
2018
GODINA POČETKA GRADNJE
2018
GODINA DOVRŠETKA GRADNJE
2019
POVRŠINA OBUHVATA (m2)
2331
UKUPNA TLOCRTNA POVRŠINA (m2)
626
PROGRAM/VRSTA
Odgoj i obrazovanje
LOKACIJA
Fužine









