Kuća Murtar
O PROJEKTU (TEKST AUTORA) +
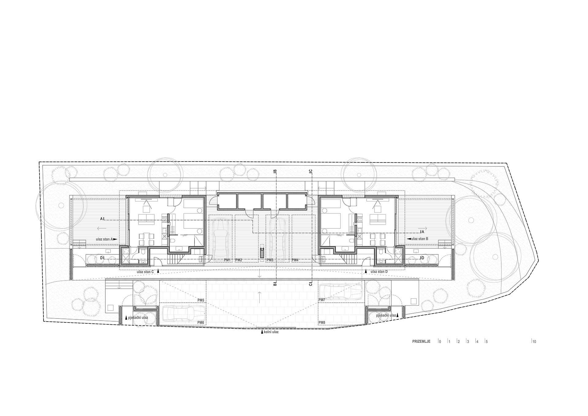
Dva prijatelja žele u Murteru na uskoj, ugaonoj parceli, unutar zajedničkog objekta za ljetni odmor, tlocrtno identični program: po dvije razdvojene stambene jedinice - odrasli/djeca - uz privatnost pripadajućih vanjskih prostorija.
Smješteno u dnu duboke uvale, zbog ovalnog oblika nazivane Murtar (u murterskom govoru: udubina u kamenu, još i velika okrugla kamenica za ulje) mjesto Murter svoje tradicijske tipologije razvilo je vezano uz zemlju: u prizemlju konobe odnosno štale, a na katu sobe. Nepovoljni rubni uvjeti parcele - oblik, orijentacija i promet - sugeriraju sličnu organizaciju, nužno zrcaljenih sadržaja.
Betonski kubusi manjih jedinica u prizemlju formiraju otvoreno parkiralište, natkriveno volumenom kata, unutar kojeg veće jedinice flankiraju središnju vanjsku prostoriju odijeljene/spojene terase. Oblikovna posljedica ovakvog razdjela, suženi je prozračni postament na koji je položen istaknuti piano nobile koji priziva oblik MORTARA, kako u tlocrtu tako i u presjeku.
Gornje jedinice dostupne su preko ostakljenih jednokrakih stubišta poput tradicijskih SOLARA, naslonjenih na južno pročelje.
Središnja terasa , otvorena je moru, sjeveru, a s južne strane zatvorena dubokom, rešetkastom intarzijom koja, uz zaštitu od vanjskog pogleda, služi i za poprečno prozračivanje te bogato proporcionira i ritmizira glatko žbukano ulično pročelje izduženog kubusa kata.
Tradicionalno vezani za prostorije s ognjištem, FUMARI izviru iz zone ljetnih kuhinja natkrivenih betonskim koritom iz kojih se geometrijska struktura rešetke prepliće slapovima zelenila. Ostatak vertikalnih instalacija skrivaju asimetrične forme razvijenog betonskog plašta koje oblikuju peto pročelje.
Oblikovanje suvremene utilitarnosti transponirane optikom tradicijskog.
TVRTKA
PROJEKTNI TIM
Borivoj Pojatina / Studio Arhing d.o.o., Mihajlo Šprem / Šprem projekt d.o.o., Tatijana Bačan / ETS Farago d.o.o., Tomislav Vučinić / Termoprojekting d.o.o., Nataša Hrsan / Naravno d.o.o.
SURADNICI
Silvija Pranjić
INVESTITOR
Bruno Dragičević i ostali
IZVOĐAČ
Mini gradnja d.o.o., Vodice , Strojobravarska radionica Mario Lovrečki, Klanjec
GODINA POČETKA PROJEKTIRANJA
2015
GODINA DOVRŠETKA PROJEKTIRANJA
2016
GODINA POČETKA GRADNJE
2017
GODINA DOVRŠETKA GRADNJE
2020
POVRŠINA OBUHVATA (m2)
880
UKUPNA TLOCRTNA POVRŠINA (m2)
353
UKUPNA VRIJEDNOST INVESTICIJE BEZ PDV-A (kn)
nepoznato
PROGRAM/VRSTA
Stanovanje
LOKACIJA
Murter















