Višestambena zgrada u Zambratiji
AUTORI
O PROJEKTU (TEKST AUTORA) +
Zambratija i njena uvala predstavljaju pravu riznicu arheološkog bogatstva. Na osnovu pronađenih ostataka drvenih pilona u podmorju uvale, ustanovljeno je postojanje prapovijesnog sojeničkog naselja još iz razdoblja bakrenog doba (4.000 god. pr. Kr.).
Prapovijesno je i gradinsko naselje (kašteljer) u zaleđu uvale (Romanija), formirano u nemirnim vremenima brončanog i željeznog doba. Naselje kao takvo funkcioniralo je sve do dolaska Rimljana krajem 1. st. pr. Kr.
Tu se nalazi i Sipar, smješten na istoimenom rtu u uvali Zambratije. Prema arheološkim izvorima, područje Sipra bilo je naseljeno u mlađem željeznom dobu, a u rimsko doba razvilo se u civitas, naselje s karakteristikama dobro organiziranog rimskog grada koji živi do srednjeg vijeka.
Uz obalu južnog dijela današnje uvale Zambratije nalaze se i ostaci rimske vile rustike (1. do 5. st.), koja uz stambeni dio posjeduje i gospodarski u kojem se proizvodila skupocjena purpurna boja za bojenje tekstila.
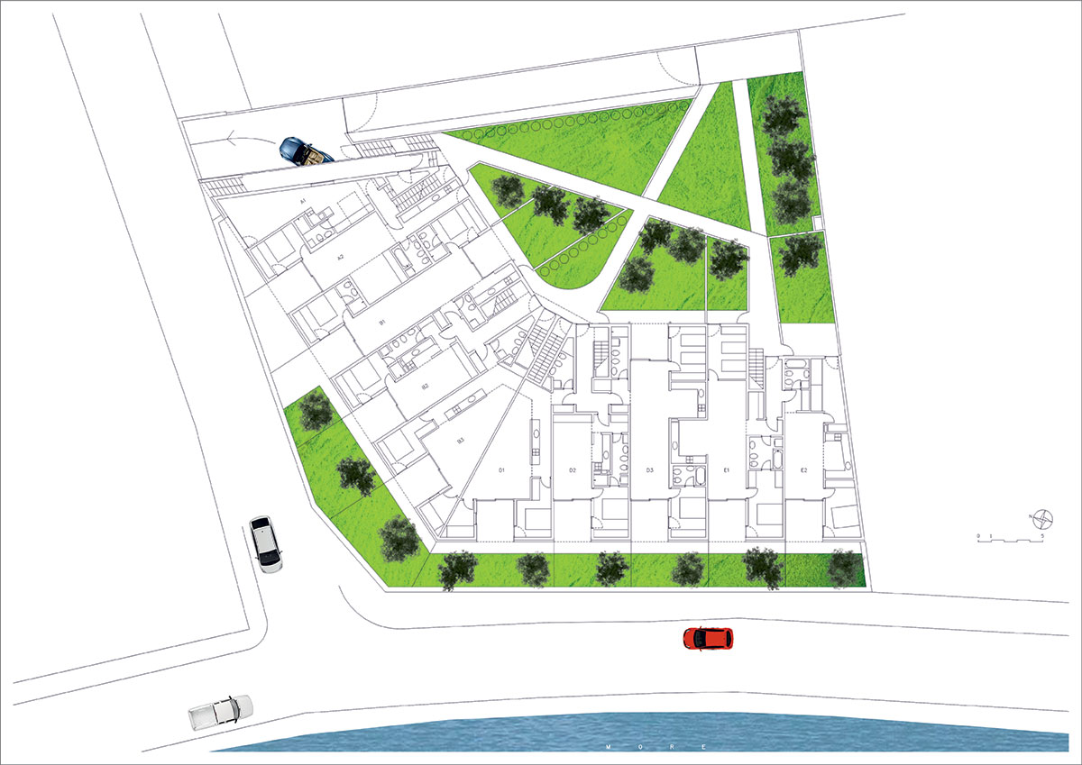
Naša višestambena zgrada predstavlja pokušaj suvremene reinterpretacije istarske stambene arhitekture s njenim gotovo neprekidnim razvojem (kontinuitet) kroz dugu povijest. Kontinuitet mletačkog koncepta (od gotike do 19. st.) s karakterističnom osnovom, koji se u Istri prilagodio lokalnim, prirodnim i društvenim uvjetima (zato pokazuje i određene specifičnosti), prisutan je i u ovoj zgradi.
Zgrada se sastoji od podruma u kojem su parkirna mjesta i spremišta, visokog prizemlja sa 10 stanova, te kata s 14 stanova. Stanovi su različitih veličina i svi imaju pogled na uvalu (more). Oveća lođa, koja produžuje dnevni boravak, čini okosnicu svakog stana. Veći stanovi u prizemlju, sa svojim vrtovima, nadomještavaju potrebu po individualnoj kući.
SURADNICI
Dalila Perossa , Piero Perossa
GODINA POČETKA PROJEKTIRANJA
2006.
GODINA DOVRŠETKA PROJEKTIRANJA
2018.
GODINA POČETKA GRADNJE
2009.
GODINA DOVRŠETKA GRADNJE
2019.
POVRŠINA OBUHVATA (m2)
1838 (parcela)
UKUPNA TLOCRTNA POVRŠINA (m2)
2232 (neto korisna)
PROGRAM/VRSTA
Stanovanje
LOKACIJA
Zambratija









