Dvojni objekti H&M
AUTORI
O PROJEKTU (TEKST AUTORA) +
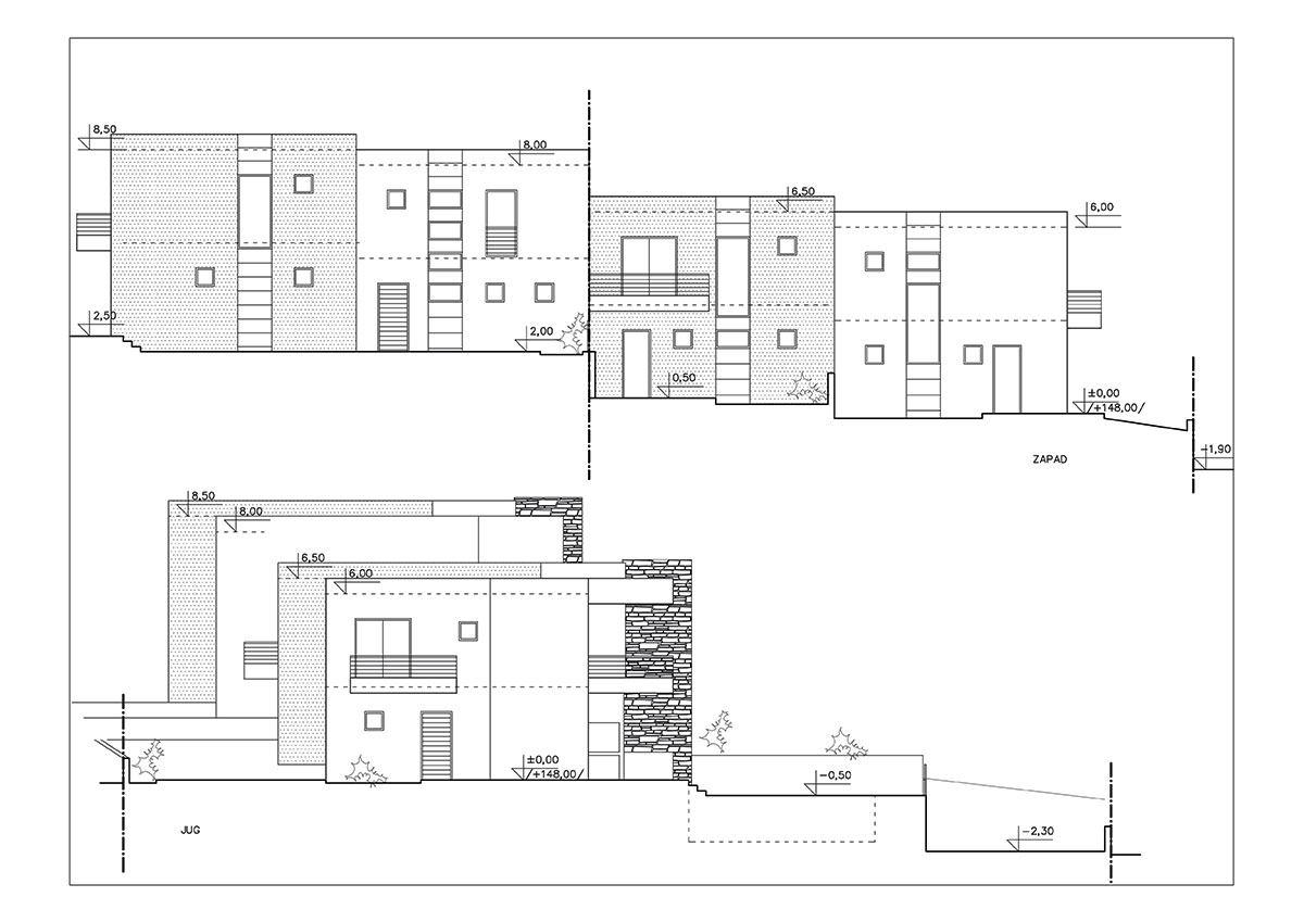
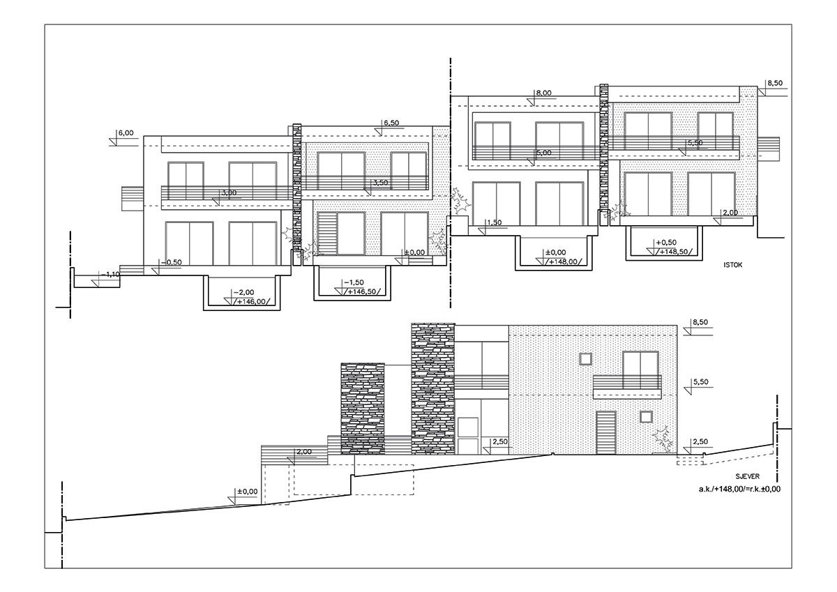
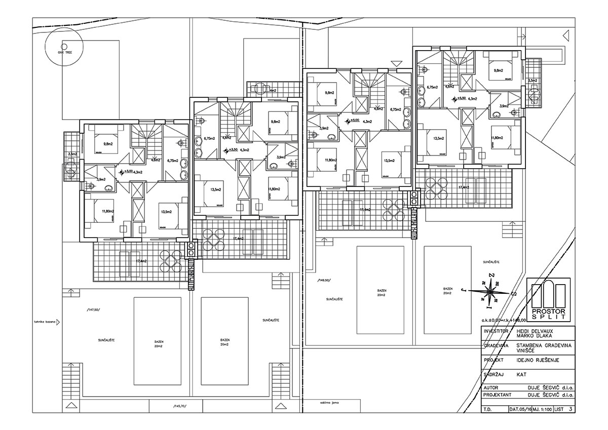
Zahvat obuhvaća dvije dvojne (polugrađene) kuće. Svaka od njih se sastoji iz dvije dvoetažne stambene jedinice. Kao takve formirale su četiri kubusa koji se izmiču horizontalno i vertikalno. Na ovaj način se dobro uklapaju u nagib i oblik parcele, te planske parametre i stvaraju zanimljivu oblikovnu igru. Svaki kubus je obojan u drugi ton, što je posebno primjetno na stražnjoj, sjevernoj fasadi.
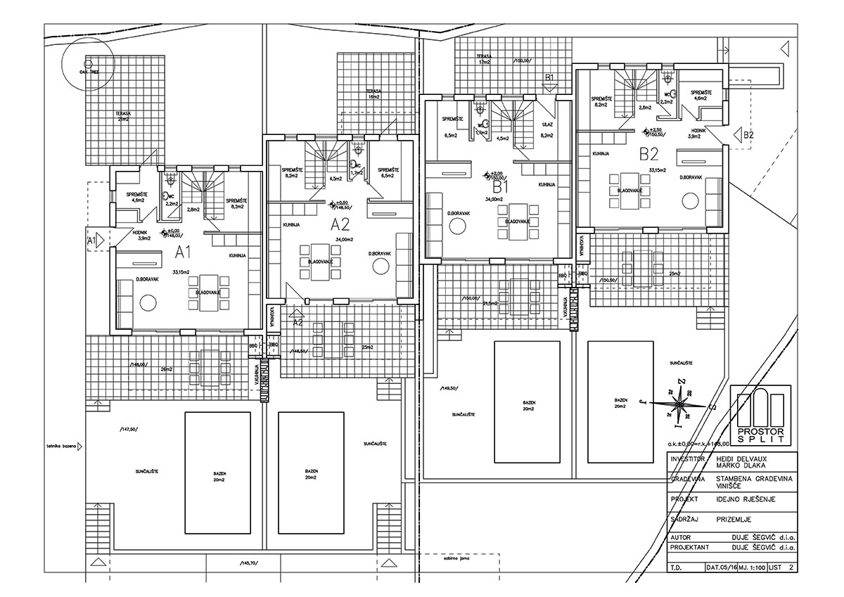
Svaka stambena jedinica ima i bazen s južne strane s pratećim sunčalištem, koji je povezan s nekoliko stepenica s vanjskom kuhinjom i blagovanje. S tih pozicija omogućen je prekrasan pogled na zaljev. Čestica je položena uz postojeću prometnicu, koja prolazi pored parcele na sjeveru i istoku. Parcela je kosa, s nagibom koji pada prema jugoistoku, prema moru.
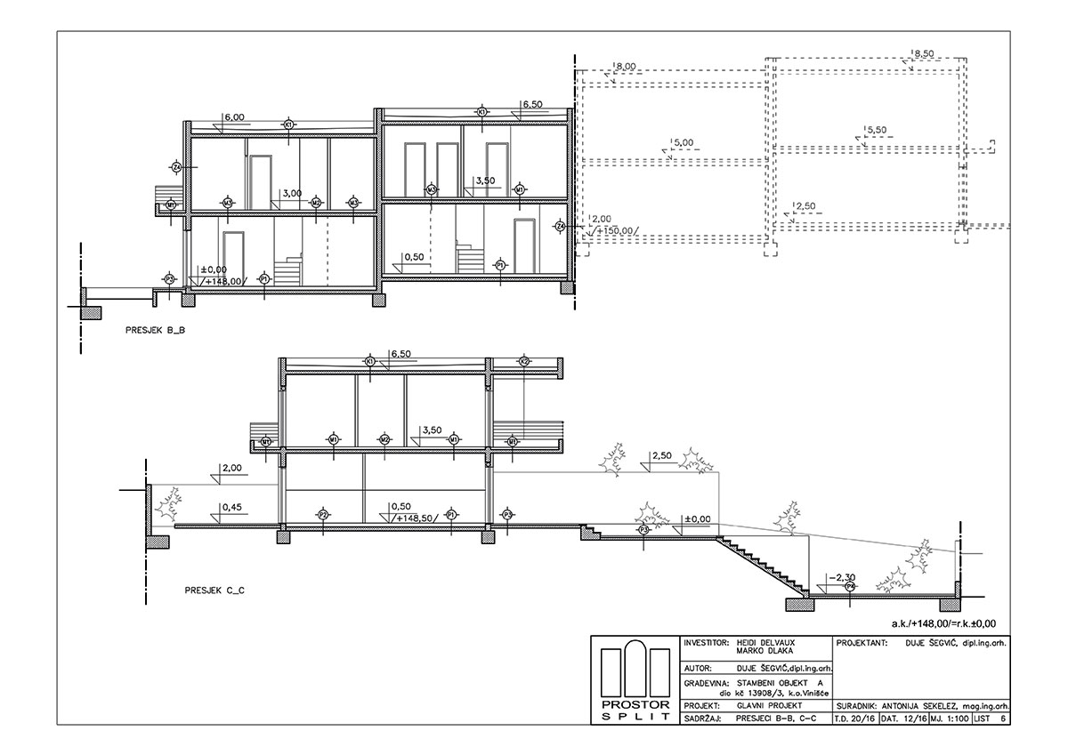
Arhitektonskim rješenjem objekt je zamišljen u suvremenom arhitektonskom izrazu s ravnim krovom. Djelomično će biti obloženo lomljenim kamenom, a djelomično štokovanim kamenom iz lokalnog nalazišta u koršama visine cca 50 cm. Građevina je pravokutna, razvedenog tlocrta iz dva spojena volumena, koja se dosljedno ugradila u kosi teren.
Tlocrtne dimenzija svake kuće je 13,32 m x 15,40 m i sastoji se od dvije dvoetažne stambene jedinice. Katnost objekata je prizemlje i kat, a bruto razvijena površina zgrade iznosi 261 m2, odnosno 522 m2 cijeli zahvat u prostoru. Zemljište od 1300m2 je podijeljeno na dvije građevinske čestice.
Kota vijenca je maksimalno 7,00 m od kote uređenog terena u podnožju građevine.
U svakoj stambenoj jedinici u prizemlju su svi dnevni prostori, wc i spremišta, dok se na katovima do kojeg se prilazi dvokrakim betonskim stubištem predviđaju spavaonice sa pripadajućim kupaonicama.
SURADNICI
Antonija Sekelez
GODINA POČETKA PROJEKTIRANJA
2016.
GODINA DOVRŠETKA PROJEKTIRANJA
2018.
GODINA POČETKA GRADNJE
2018.
GODINA DOVRŠETKA GRADNJE
2019.
POVRŠINA OBUHVATA (m2)
1300
UKUPNA TLOCRTNA POVRŠINA (m2)
522
PROGRAM/VRSTA
Stanovanje
LOKACIJA
Vinišće












