Kupališni objekt Bonj, Stari Grad, Hvar
AUTORI
O PROJEKTU (TEKST AUTORA) +
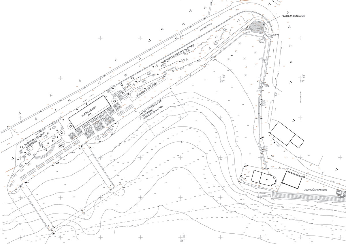
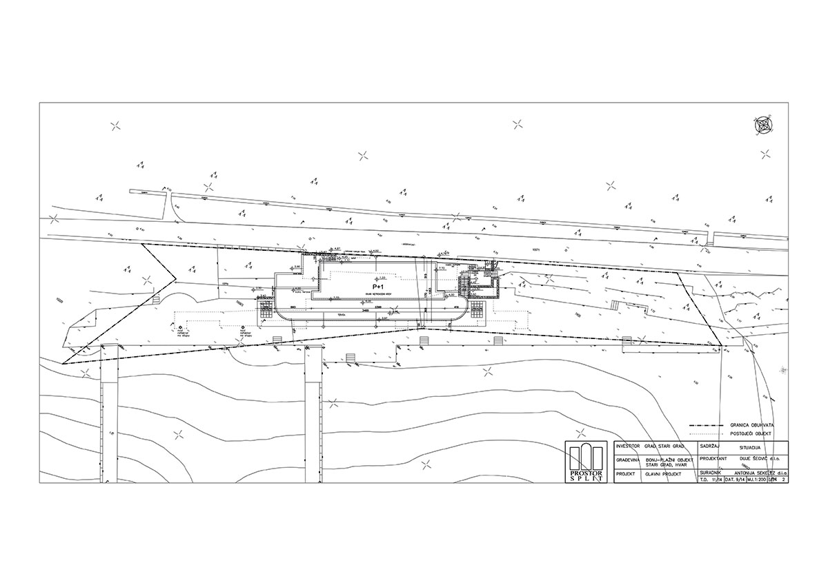
Objekt je građen kao zamjenski i izgradio se na mjestu ruševnog, nefunkcionalnog kupališnog objekta s kabinama za presvlačenje. Projektiran je cijeli obalni pojas kupališta, ali je, za sada, realiziran samo objekt kupališta i kontaktni teren od 1406m2.
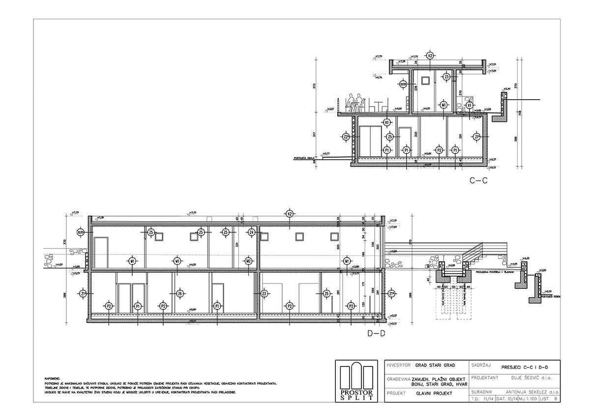
Novi kupališni objekt je zamišljen u suvremenom arhitektonskom izrazu s ravnim krovom, koristeći kombinaciju armiranog betona i prirodnog lokalnog lomljenog kamena. Donja etaža je ukopana u teren i natkrivena s velikom terasom gornje etaže. Na ovaj način, te dodatno korištenjem prirodnog lomljenog kamena za izradu zidova i obloga, objekt se nenametljivo i prirodno uklopio u ambijent. Okolni platoi u borovoj šumi postali su sastavni dio objekta i kupališta, te se mogu kvalitetno koristiti.
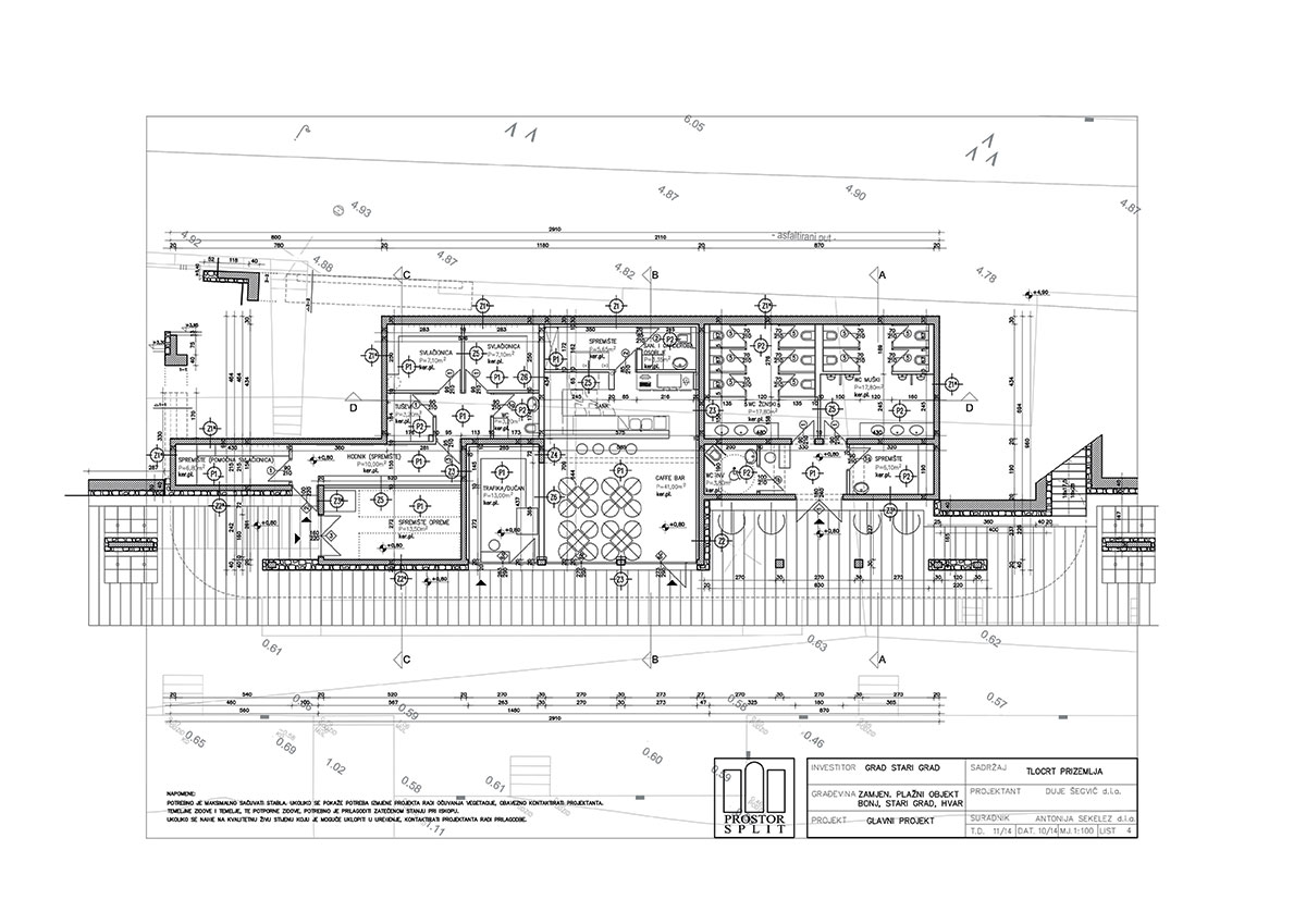
U prizemlju se nalaze spremišni prostori vaterpolo igrališta i prostorije za plivački klub, trafika/dućan, caffe bar, te javni wc u službi kupališta.
Na katu je prostor restorana s pratećim prostorima i prostranom terasom s predivnim pogledom na kupalište, more i grad.
Konceptualno najvažnije su bile dvije ideje oko dizajna objekta. Jedna je ukopanost objekta, te oblaganje kamenom koji bi se morao doimati kao produžetak postojećih suhozida na lokalitetu i postepeno stapanje s njima, te kontinuitet terasa s objekta na platoe u borovoj šumi, koji bi svi bili u službi kupališta s mogućnosti usluživanja i iz objekta.
Druga važna ideja, koja je detaljno opisana i naglašena projektnom dokumentacijom da se očuvaju sva stabla na lokalitetu. Zbog nekih se objekt i izmaknuo.
Nosiva konstrukcija stambene građevine je armirano – betonska. Stropne i krovne konstrukcije su pune armirano-betonske ploče debljine 15cm, dok je objekt temeljen na AB ploči debljine 25cm.
SURADNICI
Antonija Sekelez
GODINA POČETKA PROJEKTIRANJA
2014.
GODINA DOVRŠETKA PROJEKTIRANJA
2017.
GODINA POČETKA GRADNJE
2018.
GODINA DOVRŠETKA GRADNJE
2019.
POVRŠINA OBUHVATA (m2)
1406
UKUPNA TLOCRTNA POVRŠINA (m2)
328
PROGRAM/VRSTA
Turizam
Javni prostor
LOKACIJA
Stari Grad













