Rekonstrukcija i izgradnja Terminala generalne avijacije
O PROJEKTU (TEKST AUTORA) +
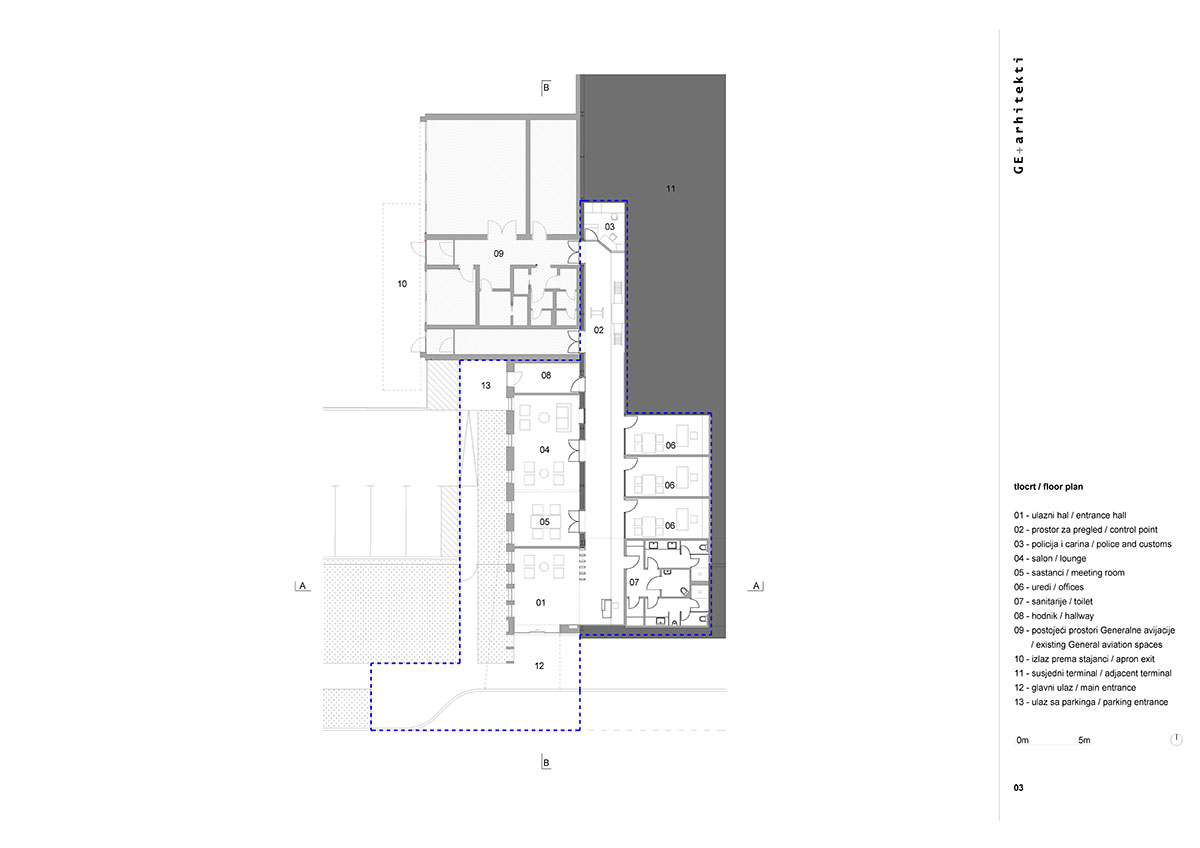
Pristup projektiranju ove građevine specifičan je kako za vanjski tako i za unutarnji prostor s obzirom na različita polazišta koja su proizašla iz projektnog zadatka i datosti prostora.
Iz aspekta arhitektonskog oblikovanja, glavni eksterijerski zadatak bio je artikulirati postojeći volumen Terminala Generalne avijacije. Iako zatvoren bez odnosa prema javnim komunikacijama i pristupima, od strane investitora odlučeno je da se volumen kao takav zadržava.
Novi volumen građevine naslanja se na postojeći, koristi djelomično isti materijal, ali se postupno otvara prema glavnom ulazu koji je izveden u njegovom sklopu. Konceptom postupnog otvaranja postiže se igra punog i praznog kao i igra prvi / drugi plan kojim se u isto vrijeme ostvaruje poveznica s postojećim volumenom, ali stvara i novi vizualni identitet cjelokupnog sklopa. Uz postojeći volumen i novi je većim dijelom sastavljen od punih elemenata, a približavajući se glavnom ulazu uglavnom od praznih elemenata, dok puni poprimaju vitke dimenzije u funkciji konstrukcije koja pridržava nadstrešnicu iznad ulaza.
Ideja stropa proizašla je iz promišljanja o funkciji prostora i kako tu funkciju povezati s interijerom i približiti korisniku.
S obzirom da se radi o Terminalu Generalne avijacije, ideja neba kao apsolutnog medija kojeg se doživljava tijekom putovanja nametnula se tijekom procesa projektiranja.
Istovremeno s obzirom na zahtjeve o jednostavnom, pomalo strogom i funkcionalnom prostoru, strop se izdigao kao element kroz koji je moguće izraziti kreativnost.
Oblik heksagona je izabran kao dosljedan apstraktni prikaz oblaka i dubine koju oblak stvara.
Estetska interpretacija kolorita i dubine neba vidljiva je i kroz odabir sive i modre boje, punih i mrežastih elemenata i kroz njihovu izvedbu u više visinskih nivoa.
U konačnici prostor je dobio prepoznatljiv identitet i samom korisniku približio memoriju na doživljaj letenja.
PROJEKTNI TIM
Gorana Giljanović , Eugen Popović , Marina Šaić
SURADNICI
INVESTITOR
Međunarodna zračna luka Zagreb d.d.
IZVOĐAČ
Gradel d.o.o.
GODINA POČETKA PROJEKTIRANJA
2018.
GODINA DOVRŠETKA PROJEKTIRANJA
2019.
GODINA POČETKA GRADNJE
2019.
GODINA DOVRŠETKA GRADNJE
2019.
POVRŠINA OBUHVATA (m2)
550
UKUPNA TLOCRTNA POVRŠINA (m2)
289
PROGRAM/VRSTA
Interijer
Javni prostor
LOKACIJA
Velika Gorica









