Uređenje info pointa i portirnice Društvenog centra Rojc
AUTORI
O PROJEKTU (TEKST AUTORA) +
Zgrada Društvenog centra „Rojc“ nastaje 1899. kao škola za potrebe školovanja dočasnika strojarskog i električarskog usmjerenja Austrougarske monarhije. Bivša vojarna Karlo Rojc najveći je i najdugovječniji squat u Hrvatskoj. Od 1997. ga počinju naseljavati bendovi, aktivisti, umjetnici i drugi koji u Rojcu nalaze mjesto za rad i proizvodnju vlastite kulture. Glavni ulaz u zgradu podijeljen je u tri polja koja čine tri bačvasta svoda bez ornamenata. Ulaz se razvija u dva nivoa povezana stubama. Sa zapadne strane lukovi su mjestimično prekinuti otvorima postojeće portirnice.
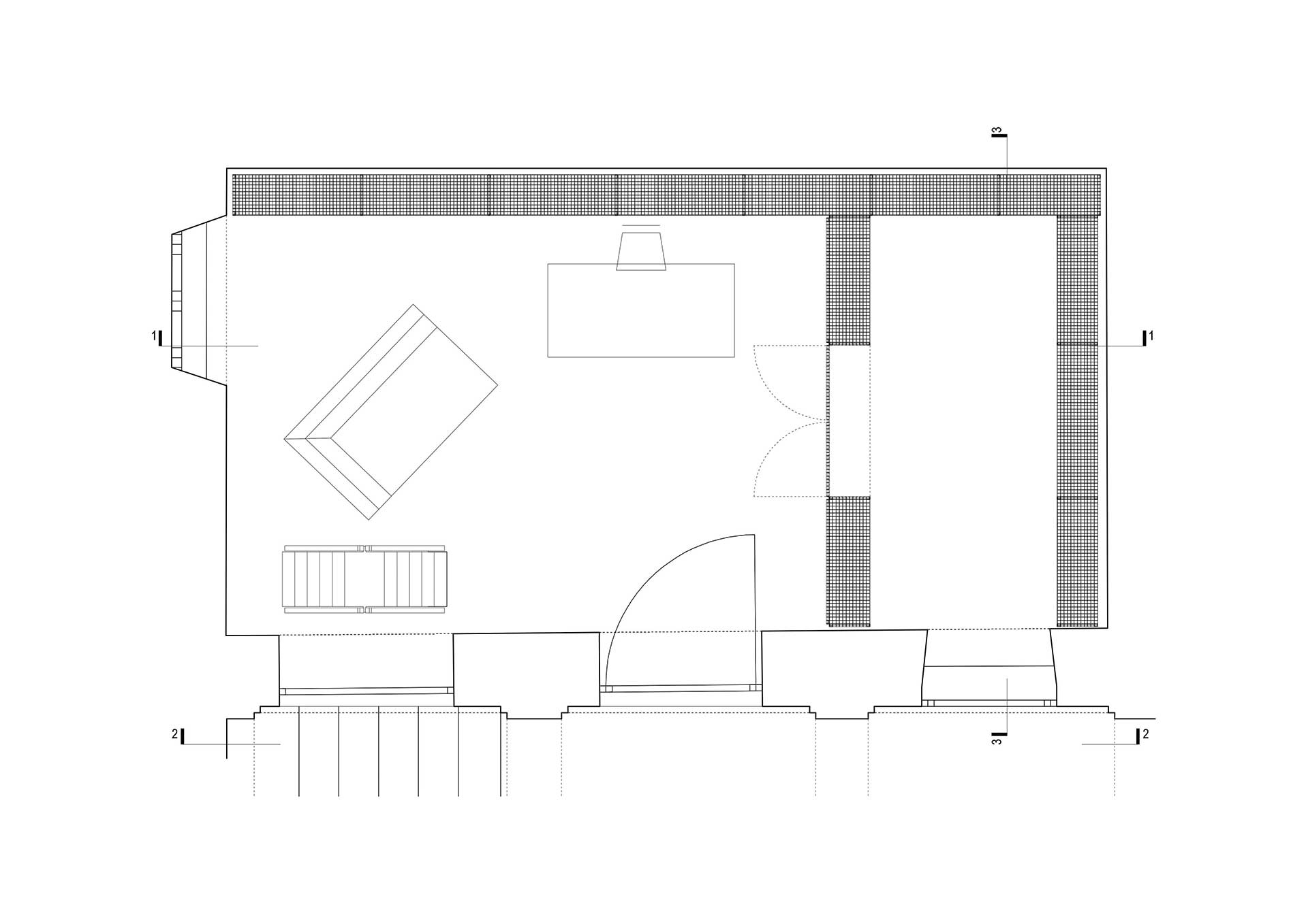
Preuređenju portirnice pristupilo se zbog potrebe adekvatnije organizacije prostora koji uz funkciju portirnice treba preuzeti i ulogu info pointa. Društveni centar „Rojc“ svake godine bilježi rast korisnika i posjetitelja, što uvjetuje promjene u oblikovanju prostora. Kroz godine DC „Rojc“ postao je sinonim za stvaralaštvo, alternativnu kulturu, socijalnu osjetljivost, prostor različitosti, poštivanja prirodnih resursa, reciklaže i demokracije. Stoga se prostor portirnice otvorio, ostaklio, ogolio prema korisniku, prema glavnom ulazu. Portirnica postaje mjesto druženja, prostor za manje susrete, svakodnevne aktivnosti zaposlenika, prostor prezentacije stvaralaštva centra, postaje izlog „Rojc“-a. Transparentnost, izdržljivost, brzina izrade postaju niti vodilje oblikovanja interijera.
U postojećem nosivom zidu izveli su se otvori koji vizualno spajaju portirnicu s glavnim ulazom u zgradu. Projektom se minimalno interveniralo u postojeći prostor, te je podjela istoga izvedena fiksnim namještajem od pocinčanih čeličnih rešetki koje stvaraju potreban prostor za izlaganje proizvoda, info materijala i publikacija korisnika centra. Crna boja zida prema glavnom ulazu i crvena boja poda kontrastom ističu srebrne police i potenciraju igru svijetla i sjene na bijelim zidovima interijera.
TVRTKA
SURADNICI
Letizia Rojnić / Elroy d.o.o. - projekt elektroinstalacija , Marko Martinčić / Pro Construct d.o.o. - projekt konstrukcije
INVESTITOR
Savez udruga Rojc
IZVOĐAČ
Proba d.o.o. - građevinski radovi , Metal Creator d.o.o. - bravarski radovi , Flex design, obrt - podna obloga , Benazić, obrt - elektroinstalaterski radovi
GODINA POČETKA PROJEKTIRANJA
2018
GODINA DOVRŠETKA PROJEKTIRANJA
2019
GODINA POČETKA GRADNJE
2019
GODINA DOVRŠETKA GRADNJE
2020
POVRŠINA OBUHVATA (m2)
26 m2
UKUPNA TLOCRTNA POVRŠINA (m2)
26 m2
UKUPNA VRIJEDNOST INVESTICIJE BEZ PDV-A (kn)
200.000,00 kn
PROGRAM/VRSTA
Interijer
LOKACIJA
Pula









