Mala Mara
Nominacija za nagradu Drago Galić 2020.
AUTORI
OBRAZLOŽENJE ŽIRIJA +
O PROJEKTU (TEKST AUTORA) +
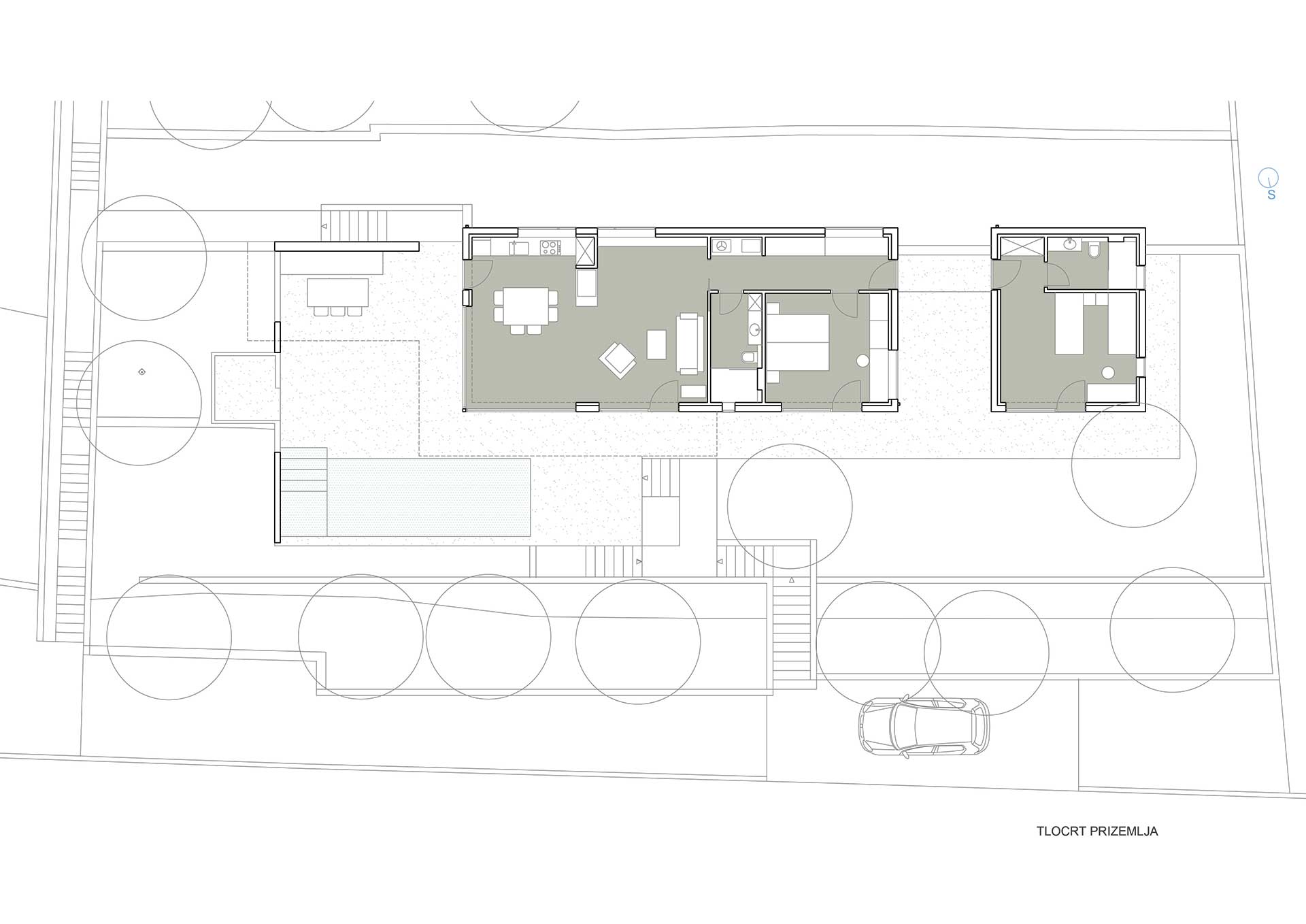
Kuća „Mala Mara“ izgrađena je u postojećem masliniku na predjelu Kut u gradu Visu. Sadržaj kuće definiran projektnim zadatkom smješten je u cjelosti u prizemlju kako bi se uspostavio intenzivniji odnos kuće s terenom i maslinikom. Građevina je smještena centralno u odnosu na parcelu koja je u blagom padu kako bi se iskoristile postojeće vizure uvale i stvorio filter zelenila prema viškoj zaobilaznici. Svi sadržaji se nalaze na istom nivou - postamentu na terenu. Na njemu su izdignuti dijelovi (sama kuća), upušteni dio (bazen) i osnovni nivo (kontinuirana, dijelom natkrivena terasa).
Kuća je izdužena pravokutna oblika, sastoji se od dva volumena – veći volumen prema istoku, u kojem je smješten dnevni prostor, spavaća soba i kupaonica te manji dio prema zapadu s jednom spavaćom sobom za goste i pripadajućom kupaonicom. Dva volumena povezuje armiranobetonska nedstrešnica. Uvlačenjem plohe pročelja iznad svih otvora formirana je linija kojom je naglašena horizontalnost kuće te podjela na tijelo prizemlja i krov. Linija je dodatno osnažena armiranobetonskim nadstrešnicama u njenoj razini.
Krov većeg volumena je poligonalan s najvišim dijelom iznad dnevnog boravka, stvara točku fokusa na plohu koja se sastoji od unutrašnjih, vanjskih, natkrivenih, nenatkrivenih prostora i prostora bazena. Granica između unutrašnjih i vanjskih prostora uz velike staklene plohe, dodatno je omekšana i jednakom završnom obradom podova (teraco pod).
TVRTKA
PROJEKTNI TIM
Darko Fadić / Tredecim d.o.o., Ante Mustapić / Volt-ing d.o.o., Ivo Žuvela / Tub d.o.o., Vlado Nigojević / Tub d.o.o.
IZVOĐAČ
Kvantum d.o.o., Prelog
GODINA POČETKA PROJEKTIRANJA
2015
GODINA DOVRŠETKA PROJEKTIRANJA
2017
GODINA POČETKA GRADNJE
2018
GODINA DOVRŠETKA GRADNJE
2020
POVRŠINA OBUHVATA (m2)
680
UKUPNA TLOCRTNA POVRŠINA (m2)
113
PROGRAM/VRSTA
Stanovanje
LOKACIJA
Vis









