Kontejner u Vjesniku
Nominacija za nagradu Bernardo Bernardi 2024.
OBRAZLOŽENJE ŽIRIJA +
O PROJEKTU (TEKST AUTORA) +
Mi smo se prošle godine preselili. Prostor smo tražili zajedno s udrugom Kontejner. Sasvim slučajno, nakon duge potrage, u oglasniku nas je privukao jedan oglas. Radilo se o prostoru u Vjesniku koji se sastojao od skladišta i uredskog dijela. U uredskom dijelu smo se smjestili mi, a skladište je postalo umjetnička galerija udruge Kontejner. Transformiranje skladišta u galeriju bio je posebno intenzivan i izazovan proces u kojem su naša uloga i angažman daleko nadrasli uobičajenu ulogu arhitekta.
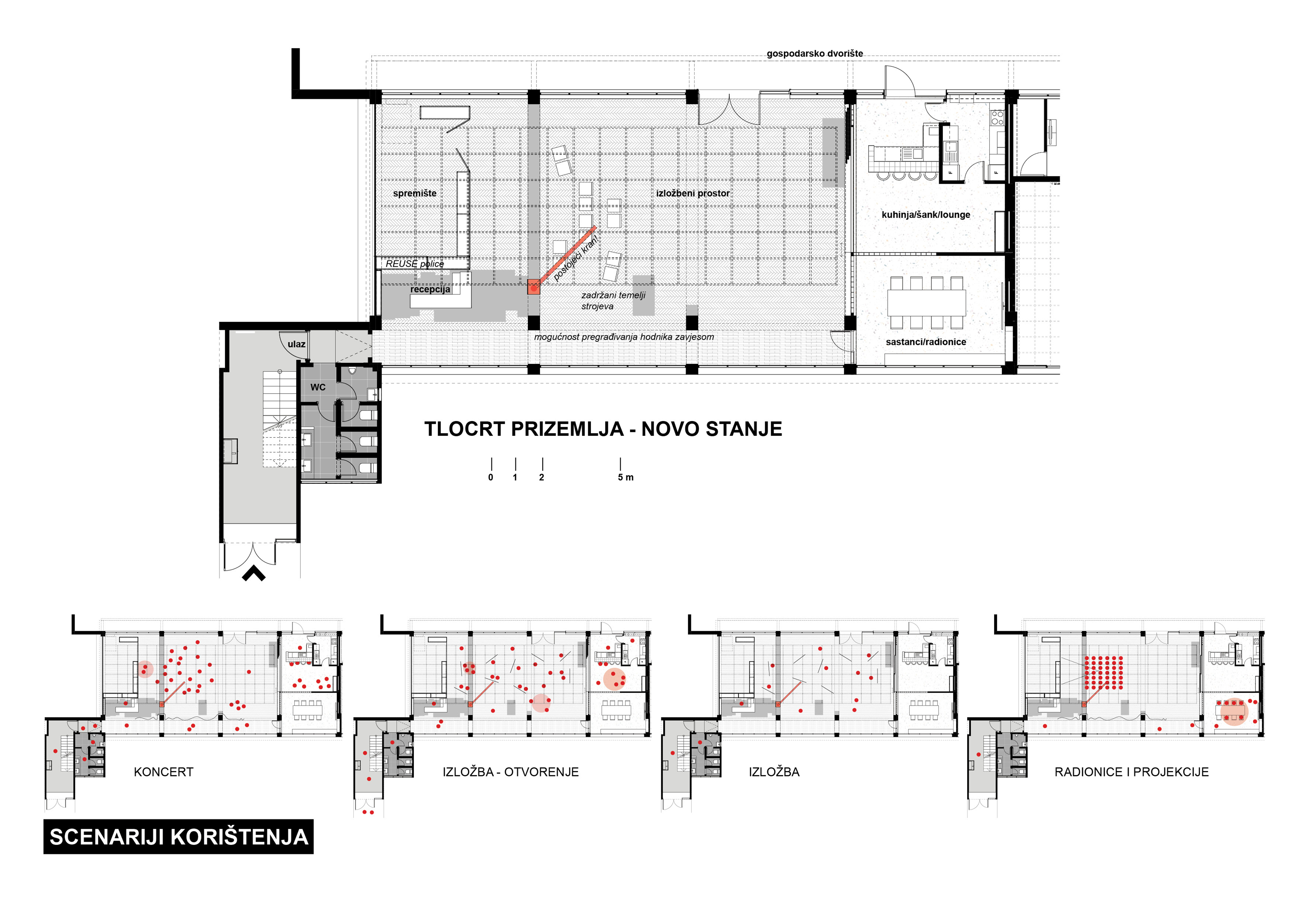
Ovaj je prostor inicijalno bio predviđen kao radionica za popravke strojeva iz pogona, da bi kasnije služio kao skladište tiskarske opreme. Dočekao nas je pod natopljen industrijskim uljima, potpuno uništene sanitarije, stare metalne police i pregrade te prozori i zidovi omotani u debeli sloj paučine. No velike staklene površine s dviju dužih strana, zdrava konstrukcija, pristupačnost sa strane gospodarskog dvorišta te prostornost koja se nazirala iza tadašnje skladišne zatrpanosti ipak su odavali budući potencijal prostora.
Naglasak u projektiranju bio je na fleksibilnosti prostora te uspostavljanju dijaloga s nekadašnjim namjenama. Nastojali smo zadržati neke prepoznatljive elemente prostora, kao što su temelji nekadašnjih strojeva, zatečeni natpisi upozorenja i kran, ali prvenstveno zadržati cjelovitost prostora i dvostrano osvjetljenje. Bilo je važno očistiti prostor od nepotrebnih pregrada te afirmirati industrijski karakter interijera. Spremište galerije omeđeno je teškim čeličnim policama koje su prerađene od zatečenih polica iz doba skladišta. Mali priručni bar organiziran je u dijelu prostora koji se otvara prema dvorištu, a pomičnim panelima se po potrebi odvaja ili povezuje s galerijom.
U prostoru se iščitavala već postojeća jaka tema rastera prozora koja je radi potreba raznih izložbi preslikana na strop u vidu rastera opremljenog instalacijama i multimedijom. Raster je nastavljen na pregrade i obloge (staklena opeka, keramika), dok se na prirodnu teksturu zatečenog parketa dodaju elementi akustičnih obloga od drvene prešane vune.
TVRTKA
PROJEKTNI TIM
Margita Grubiša , Marin Jelčić , Daniela Škarica , Ivana Žalac / SKROZ
SURADNICI
Damir Šiljeg (elektroinstalacije) , Marko Zidarić / NADOZID d.o.o. (statika) , Marina Bognar / PERPETUO PROJEKT d.o.o. (instalacije) , Miodrag Gladović (multimedija) , Ema Dunkić / SKROZ
GODINA POČETKA PROJEKTIRANJA
2023
GODINA DOVRŠETKA PROJEKTIRANJA
2023
GODINA POČETKA GRADNJE
2023
GODINA DOVRŠETKA GRADNJE
2024
POVRŠINA OBUHVATA (m2)
290
UKUPNA TLOCRTNA POVRŠINA (m2)
290
PROGRAM/VRSTA
Interijer
Kultura
Izložbe
LOKACIJA
Zagreb

















