Stambeni park Norrøna
O PROJEKTU (TEKST AUTORA) +
Projekt Norrøna boligpark smješten je u sjevernoj Norveškoj, na zapadnoj, manje urbaniziranoj, padini otoka Troms. Program je bio oblikovati životni prostor s do 300 stambenih jedinica, koristeći prednosti lokacije: razmjerno veliku površinu obuhvata, izvanredan pogled na fjord i planine, pad terena.
Volumeni izgradnje postavljeni su perimetralno, kako bi se u sredini formirao zajednički vanjski prostor, zaklonjen od vjetra, a maksimalno izoliran. U projektu zvan „dvorište“, ovaj potpuno pješački prostor čine dječja igrališta, zelene površine, sanjkalište, parkirališta za bicikle, te pristupni i prolazni putevi.
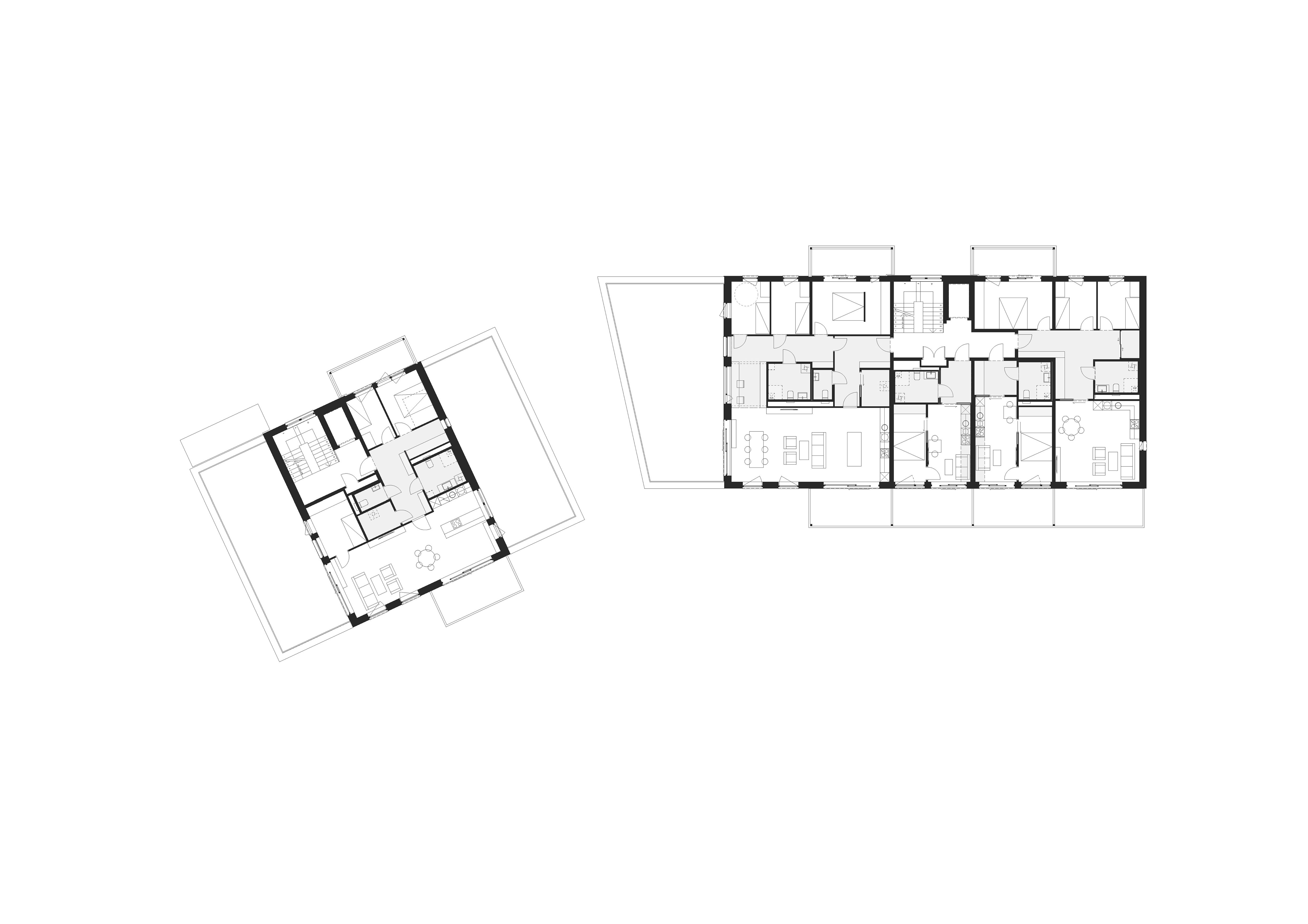
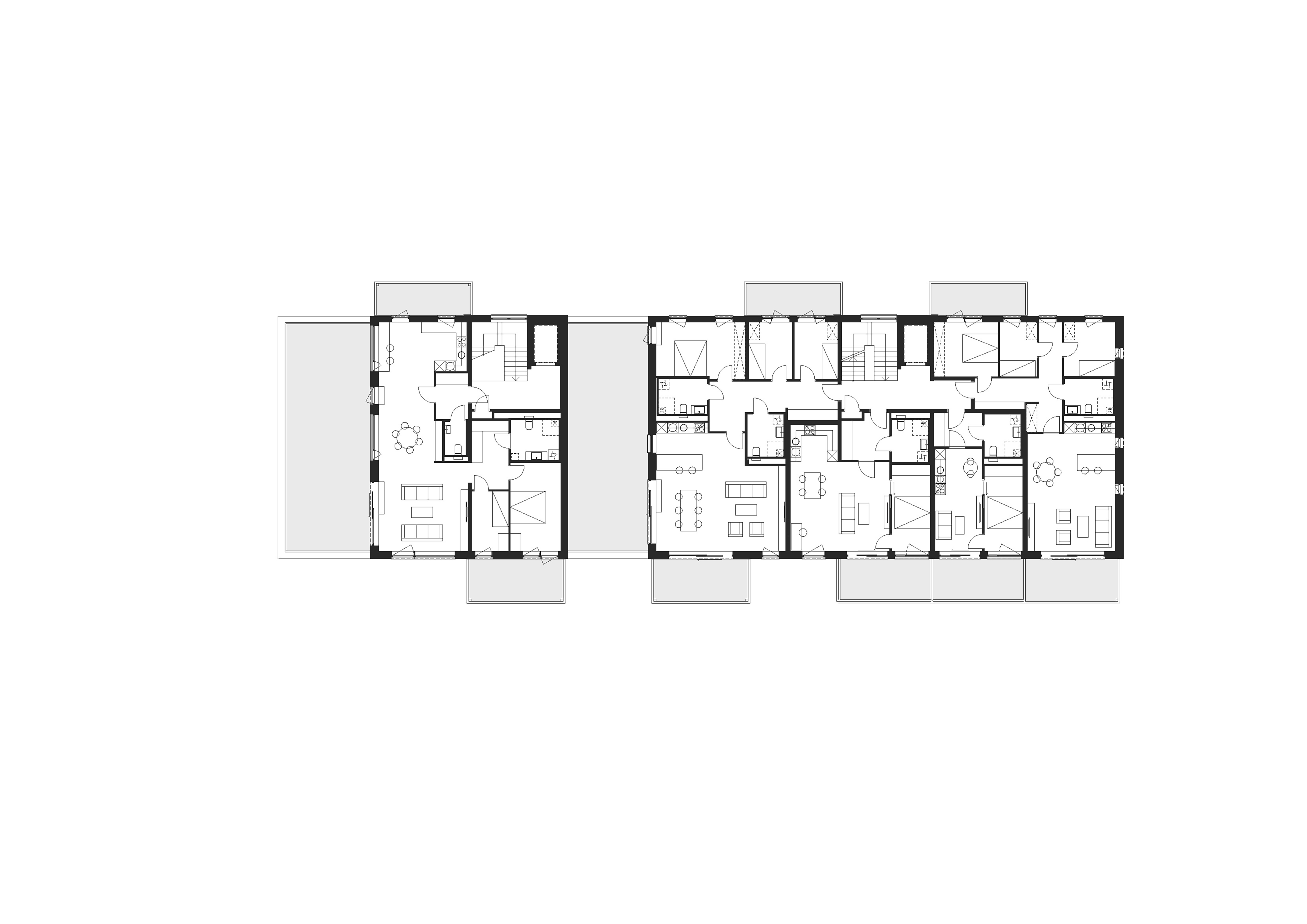
Osam stambenih zgrada lomi se po perimetru te penje i spušta po relativno strmom terenu, dok deveta poprečno djelomično presijeca zajedničko dvorište kako bi se stvorili intimniji prostori i smanjio utjecaj vjetra. Parkiranje je riješeno kontinuiranom podzemnom garažom koja prati nadzemnu izgradnju, s ulazom na vanjskoj strani perimetra.
Stambeni volumeni su terasirani, što omogućuje bolje poglede i insolaciju, kako za korisnike, tako i za susjede. Brojne krovne terase slijede ideju da svaka stambena jedinica mora imati vlastiti vanjski prostor: terasu na krovu, balkon ili vrt u prizemlju. Duž cijelog projekta prizemlja su riješena privatnim vrtovima i terasama, dok stanovi, često dvoetažni, imaju direktan ulaz s terena. Konstelacija vrtova i ostalih privatnih, zajedničkih i javnih otvorenih prostora orijentiranih na zajedničko dvorište ima za cilj stvaranje susjedstva.
Kontinuirani konstruktivni raster, tlocrtni lomovi i vertikalno terasiranje volumena, orijentacija, želja za socijalnom raznolikošću, te direktna komunikacija s pojedinačnim korisnicima rezultirali su velikom raznolikošću stanova i individualiziranim rješenjima.
TVRTKA
PROJEKTNI TIM
Per Olav Pedersen , Susi Matt , Margit Klev , Halvard Bergan Paus , Cathrine Hovden , Baptiste Robin
SURADNICI
Mari Bergset / Lo:le landskap og plan (krajobraz) , TANK design (identitet i grafika) , COWI (statika) , Sweco (strojarstvo)
INVESTITOR
Frabene AS
IZVOĐAČ
Econor AS
GODINA POČETKA PROJEKTIRANJA
2012
GODINA DOVRŠETKA PROJEKTIRANJA
2023
GODINA POČETKA GRADNJE
2017
GODINA DOVRŠETKA GRADNJE
2024
POVRŠINA OBUHVATA (m2)
36000
UKUPNA TLOCRTNA POVRŠINA (m2)
46000
PROGRAM/VRSTA
Stanovanje
Urbanizam
LOKACIJA
Tromsø


















