Poslovno-stambena zgrada sa streljanama
AUTORI
O PROJEKTU (TEKST AUTORA) +
Poslovno-stambena zgrada sa streljanama projektirana je 2017. godine za investitora RITOŠA-trgovine d.o.o.
Zgrada je poput orijentira na ulazu u grad Zagreb s istočne strane. Kružno oblikovanje zgrade proizlazi iz same situacije-neposredne blizine rotora i buduće brze ceste Popovec-M. Bistrica, Zabok. Sjeverozapadno od parcele je Županijska cesta Ž1013, Zagreb-Popovec-Kašina-Varaždin krak lijevo odakle je omogućen kolni ulaz (danas Soblinečka ulica).
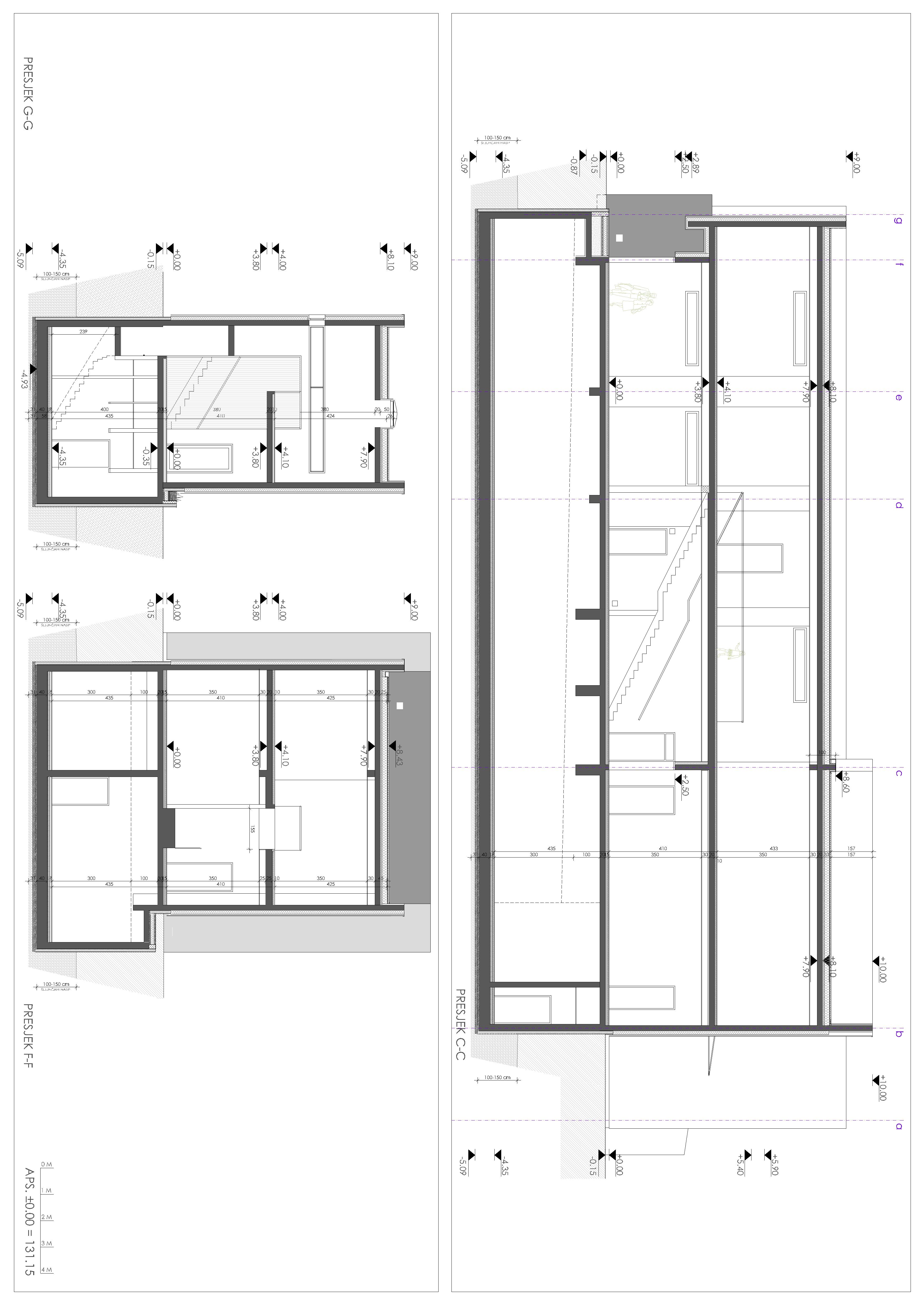
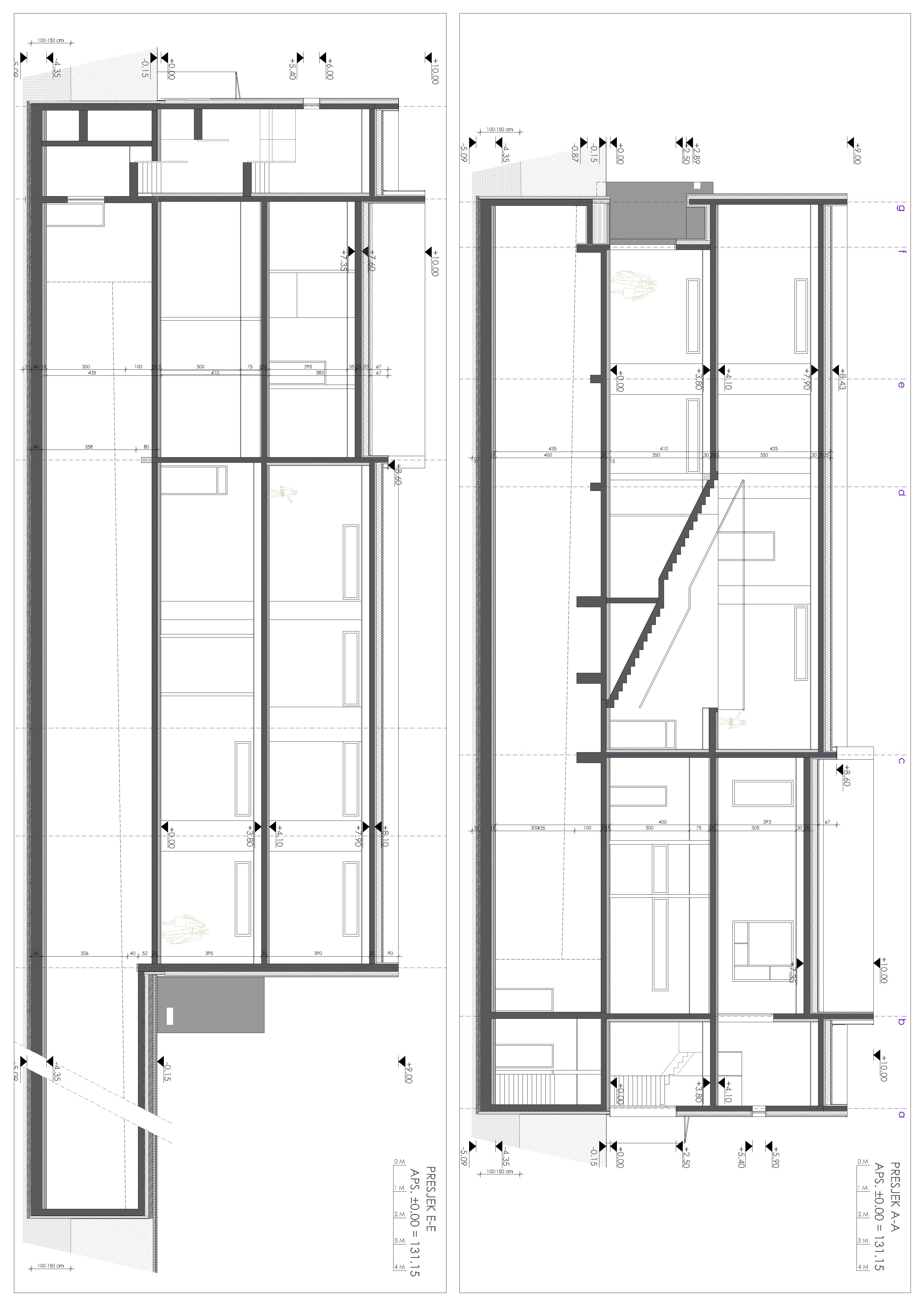
Cijela zgrada sastoji se od tri samostalne funkcionalne jedinice. One su međusobno povezane u jedinstveni objekt.
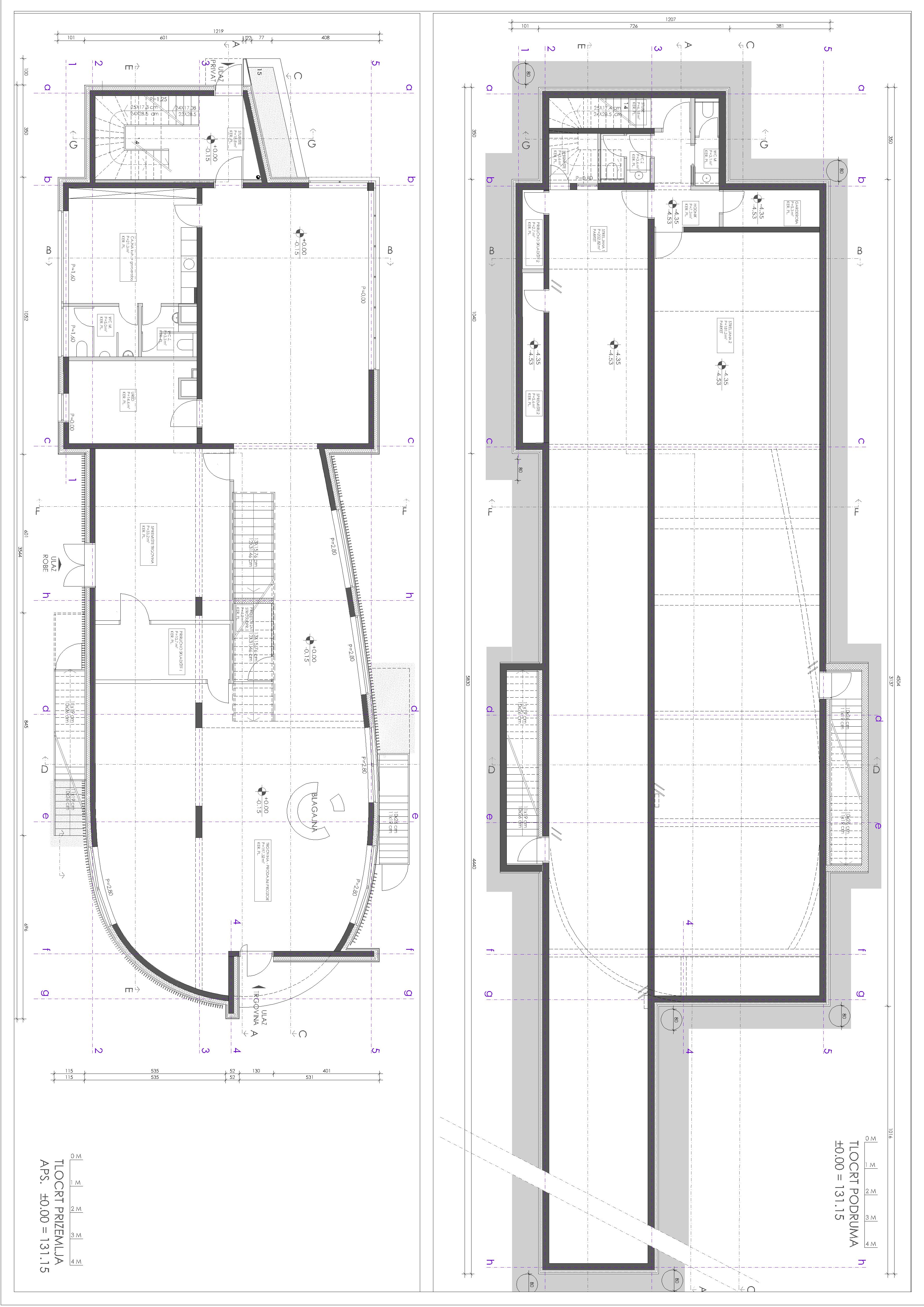
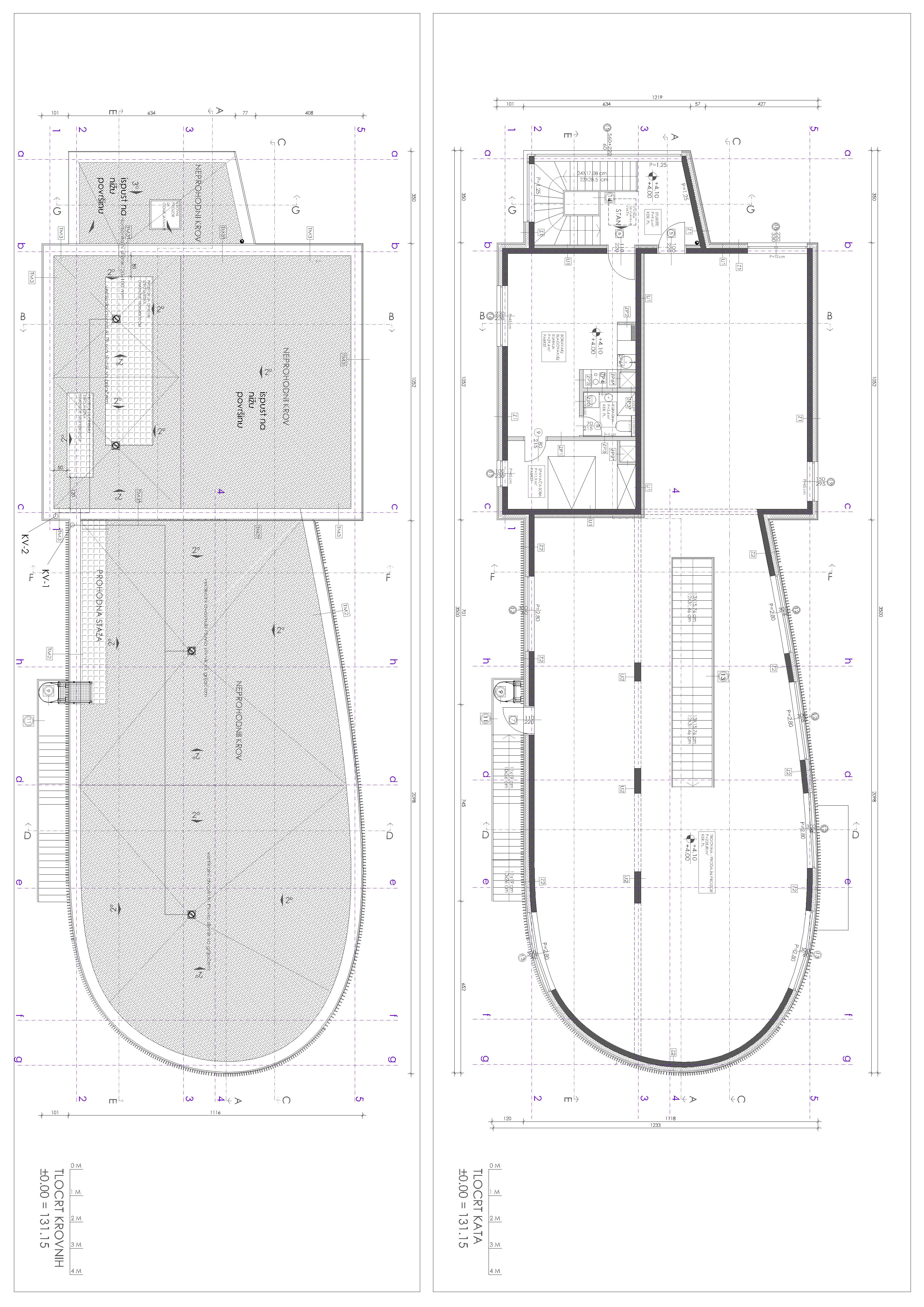
Trgovina opremom za lov i ribolov, što je i primarna djelatnost tvrtke RITOŠA-trgovine, proteže se kroz prizemlje i kat. Trgovina ima zaseban ulaz smješten na jugoistočnom djelu zgrade. Na katu se nalazi i manji stambeni prostor. U podrumu su smještena dva civilna strelišta zatvorenog tipa (od kojih je jedna duljine 45 m) za kratko vatreno oružje svih kalibara i za dugo vatreno oružje s užljebljenom cijevi i prateći prostori.
Predmetna zgrada projektirana je kao zgrada gotovo nulte energije, te ima visoka energetska svojstva i odgovarajući udio energije iz obnovljivih izvora energije.
Konstruktivni sistem čini AB sustav zidova, stupova i greda. Radi lošeg sastava tla bilo je potrebno ostvariti temeljenje na velikoj dubini te se iz tog razloga odlučilo isprojektirati prostore streljana u podrumu.
Kružni dio objekta obložen je vertikalnom ALU konstrukcijom čiji raster doprinosi igri svjetla i sjene.
Ostali dio zgrade obložen je fasadnim ETICS sustavom.
Površina čestice: 2075 m2.
Izgrađenost građevne čestice 18,33 %
Koeficijent iskoristivosti građevne čestice (ki) 0,49
Zelene površine: 30,0 %
TVRTKA
PROJEKTNI TIM
Timea Marochini (glavni projektant), Ljiljana Uroda (projektantica suradnica)
SURADNICI
Emina Ahmetović (projekt konstrukcije) , Milan Bobanac (projekt hidroinstalacija) , Ines Vlahović (projekt fizike) , Milivoj Martinko (elektrotehnički projekt) , Željko Mužević (projekt zaštite na radu i projekt zaštite od požara)
INVESTITOR
Ritoša trgovine d.o.o.
IZVOĐAČ
MICPRO d.o.o.
GODINA POČETKA PROJEKTIRANJA
2017
GODINA DOVRŠETKA PROJEKTIRANJA
2023
GODINA POČETKA GRADNJE
2023
GODINA DOVRŠETKA GRADNJE
2024
POVRŠINA OBUHVATA (m2)
1232
UKUPNA TLOCRTNA POVRŠINA (m2)
380
UKUPNA VRIJEDNOST INVESTICIJE BEZ PDV-A (kn)
2000000
PROGRAM/VRSTA
Poslovanje
LOKACIJA
Sesvete















