Rekonstrukcija, prenamjena i dogradnja bivše škole s dvorištem u restoran s kušaonicom vina
O PROJEKTU (TEKST AUTORA) +
Restoran Stara škola / La Vecchia Scuola smješten je u sjevernom dijelu Istre, u mjestu Krasica. Zgrada nekadašnje škole, koja datira iz vremena Austro-Ugarske, jedna je od brojnih jednostavnih dvoetažnih tipskih zgrada koje su u doba austrougarske vladavine izgrađene po manjim mjestima u Istri. Danas u mjestu ne postoji potreba za osnovnom školom pa je Stara škola obnovljena, a kasnija dogradnja iz 1950-tih srušena te su u njenim gabaritima dograđeni novi prostori restorana s kušaonicom vina i pratećim prostorima.
Razlika između starog i novog dijela zgrade jasno je vidljiva u raspodjeli prostora, a zatim i u prostornom postavu i odabiru materijala.
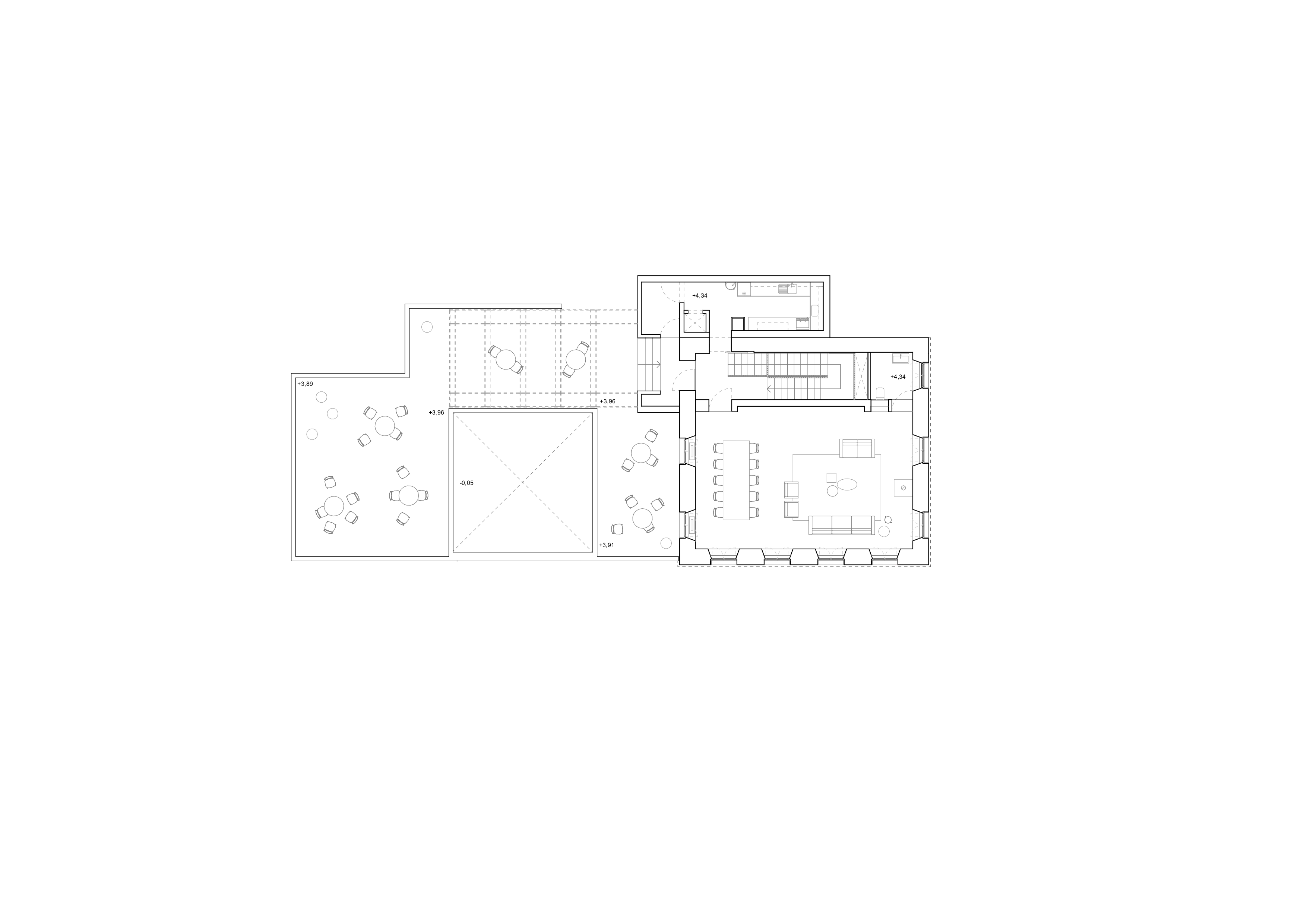
U staroj zgradi, nekada su bile zbornica i učionica. Učionica je prenamijenjena u glavnu restoransku blagovaonicu, a zbornica na katu u lounge prostor za manje grupe posjetitelja. Prilikom obnove rekonstruiranog dijela zadržali su se izvorni elementi i materijali kao što su drveni podovi, krovište i stubište, drvene grilje, žbukana pročelja sa vijencima i profilacijama.
U dograđenom dijelu nižu se ostali prostori – natkrivena terasa kao produžetak blagovaonice, šank i lounge – formirajući potkovu oko centralnog atrija koji je čvrsto određen arkadama s po četiri luka, a u središtu je posađeno stablo duda. Pod zemljom je kušaonica vina s obzirom da su podrumska temperatura i uvjeti stabilni, a djelomično su ukopani kuhinja, svi prateći prostori kuhinje i gospodarski dio. Vizualni kontakt s kuhinjom izvana ostvaruje se preko „think-tanka“ koji je prema želji glavne kuharice smješten kako bi dobio pogled prema vanjskom prostoru vrtnih terasa, a kuhinja prirodno svjetlo, a koji je namijenjen prostoru za osmišljavanje novih jela, menija i sastanke osoblja kuhinje.
Dogradnja unosi suvremeni jezik kroz vidljivi pigmentirani beton. Njegovi slojeviti uzorci evociraju istarsko tlo – tašel čija boja odgovara pigmentu u betonu. Oblikovanje zidova s lučnim otvorima u betonskim fasadama pronalazi izvor u tradicionalnim istarskim loggiama, u kojima se nekad odvijao politički i društveni život. Danas je to prostor restorana. Atrij kojeg okružuju arkade predstavlja glavni vanjski prostor restorana i pruža gostima ugodan ambijent za druženja zaklonjen od pogleda i buke. Veliki stakleni otvori prostora koji ga okružuju omogućuju prirodno osvjetljenje i vizualnu povezanost s vanjskim prostorom. Na krovu dogradnje nalazi se sunčana terasa s pergolom.
Vanjski prostori, uključujući terase i vrt, povezuju prostor s prirodom i nude različite manje prostore za druženja. Vanjske terase prate pad terena, pogled s krova dogradnje pruža se do mora.
TVRTKA
PROJEKTNI TIM
Irena Mažer Hranuelli / mažer arhitektura, Ana Penavić , Zvonimir Marčić (arhitektonski projekt), , , , ,
SURADNICI
Nino Gregorin / Tenzor d.o.o. (projekt konstrukcije) , Ivan Đurđević / Slimel d.o.o. (projekt elektroinstalacija) , Mario Josipović / Termo oblikovanje d.o.o. (projekt termotehničkih instalacija) , Damir Keglević / apz hidria d.o.o. (projekt vodovoda i odvodnje) , Josip Radeljić / Inspekting d.o.o. (projekt ZOP i ZNR) , Zoran Divjak / Dekode d.o.o. (projekt tehnologije kuhinje)
INVESTITOR
Spicules resort d.o.o.
IZVOĐAČ
UGO gradnja
GODINA POČETKA PROJEKTIRANJA
2022
GODINA DOVRŠETKA PROJEKTIRANJA
2023
GODINA POČETKA GRADNJE
2023
GODINA DOVRŠETKA GRADNJE
2024
POVRŠINA OBUHVATA (m2)
1329
UKUPNA TLOCRTNA POVRŠINA (m2)
513
PROGRAM/VRSTA
Interijer
LOKACIJA
Krasica














