Gallerina
AUTORI
O PROJEKTU (TEKST AUTORA) +
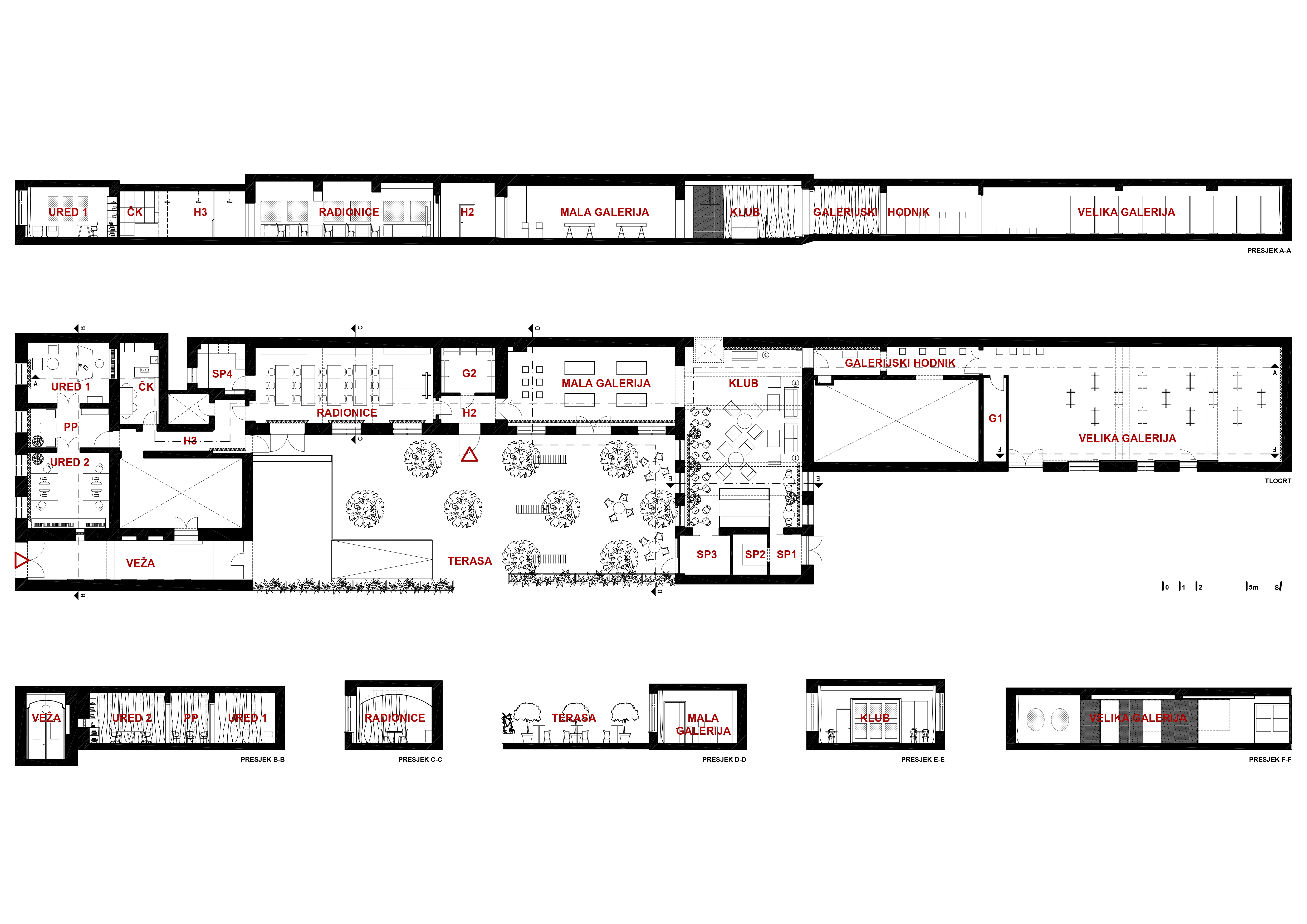
Strogi centar Zagreba. Donjogradski blok. Uska ulična fasada koja se beskonačno proteže u dvorišnu dubinu. Zatečeni uređeni prostor tek onoliko koliko je potrebno da bi bio siguran i čist. Impresivna povijest građevine sadržava jedan internat, jednu tiskaru i jedan zečji magazin.
Sadašnjost nudi kulturu u svim svojim divnim oblicima – izložbe likovnog postava, fotografije, vizualne instalacije, projekcije filmova, književne večeri i (moja) jutra poezije, predstave, koncerte – one na pianinu i one nešto intenzivnije. Nostalgično oblikovanje odaje počast zgradi s početka XX.stoljeća, toplina grije iz mnoštva drvenih galerijskih postamenata, a melankoliju prizivaju plišane zavjese boje trule višnje, starog zlata i prašnjave zelene. Radionice za najmlađe, zbor za srednju dob, a za one najstarije – folklor. Drveni kubus unutar zatečenog kubusa. Ukutijavanje.
Nitko ne zna što nam donosi budućnost, no Goranka Matić (i ovdje izložena) fotografski je bilježila rađanje Novog vala i zapravo sudjelovala u kreiranju njihove budućnosti. Sigurna sam da će neka nova lica isto tako dokumentirati budućnost koja se dešava upravo sada i mi ćemo se u našoj budućnosti diviti njihovoj interpretaciji sadašnjosti.
TVRTKA
SURADNICI
Domagoj Perković (strojarske instalacije)
INVESTITOR
SKD Prosvjeta
IZVOĐAČ
Riviera Dekor d.o.o. , ViK iverali d.o.o. , Orto Forma d.o.o.
GODINA POČETKA PROJEKTIRANJA
2022
GODINA DOVRŠETKA PROJEKTIRANJA
2023
GODINA POČETKA GRADNJE
2024
GODINA DOVRŠETKA GRADNJE
2024
POVRŠINA OBUHVATA (m2)
471
UKUPNA TLOCRTNA POVRŠINA (m2)
471
PROGRAM/VRSTA
Interijer
Kultura
Javni prostor
LOKACIJA
Zagreb









