Nova zgrada Regionalnog centra kompetentnosti Ruđera Boškovića
O PROJEKTU (TEKST AUTORA) +
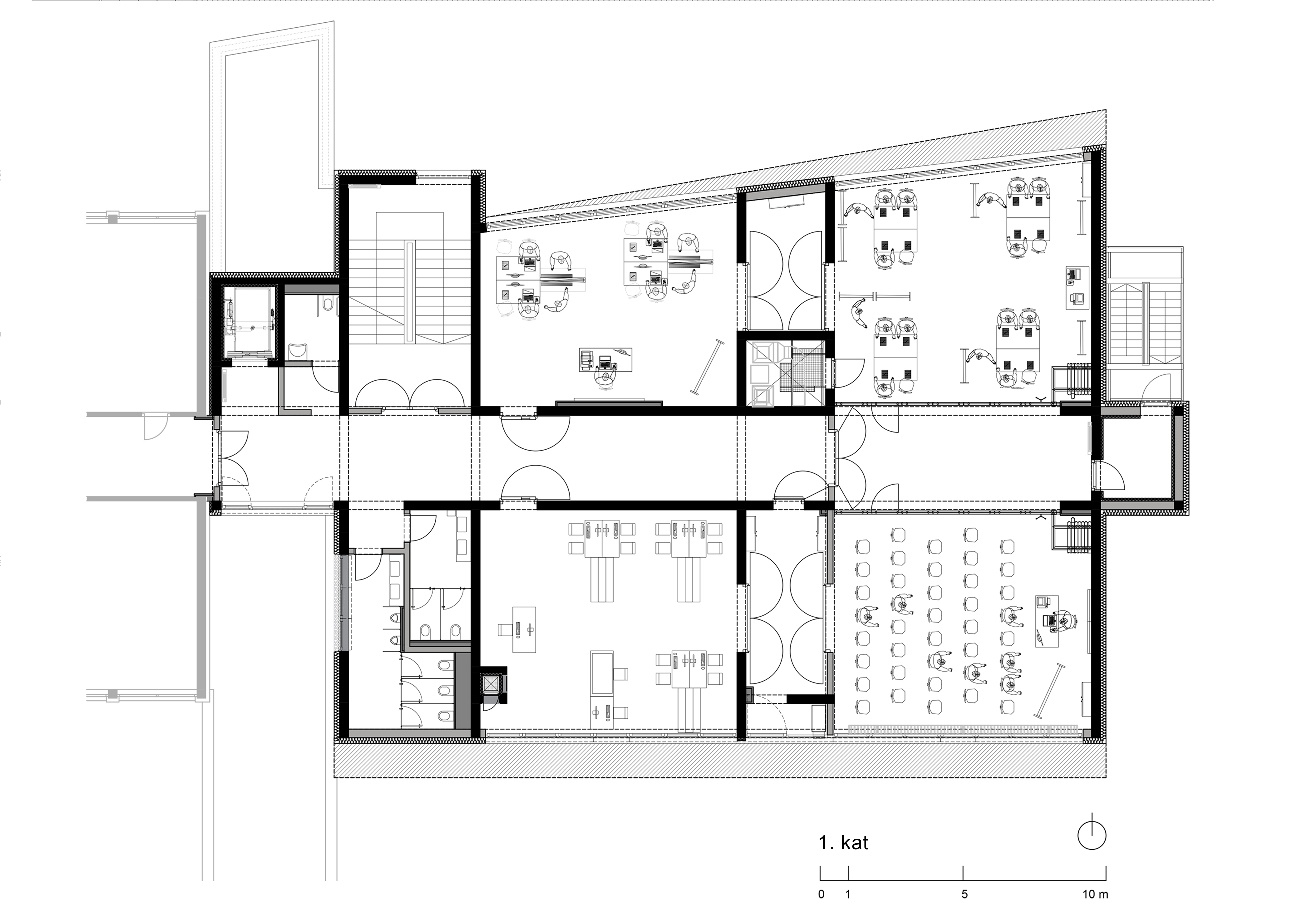
Nova zgrada RCK Ruđera Boškovića prva je javna zgrada obrazovne namjene energetskog standarda pasivne kuće (energetski razred A+) u Hrvatskoj. Oblikovanje eksterijera proizašlo je iz težnje za korištenjem sunčeve energije na pasivan način. Istaci i lođe na južnom pročelju onemogućavaju ulazak ljetnih, a omogućavaju prihvat zimskih zraka sunca te njihovu akumulaciju. Vanjsko oblikovanje proizlazi i iz funkcionalnih zahtjeva i zahtjeva zaštite od požara. Istake istočnog pročelja u funkcionalnom smislu čine sigurni sektori za evakuaciju osoba s invaliditetom, dok je „toranj“ koji se nastavlja na novi sjeverni ulaz nastao kao rezultat ostvarivanja pristupačnosti dizalom ravnom krovu postojećeg dijela škole.
Lepezasto isticanje sjevernog pročelja projektantska je gesta kojom se iščekuje produženje Ulice grada Vukovara s čijim je budućim koridorom paralelno sjeverno pročelje 2. kata. Realiziran je i višenamjenski školski trg okružen postojećim zgradama i novom zgradom.
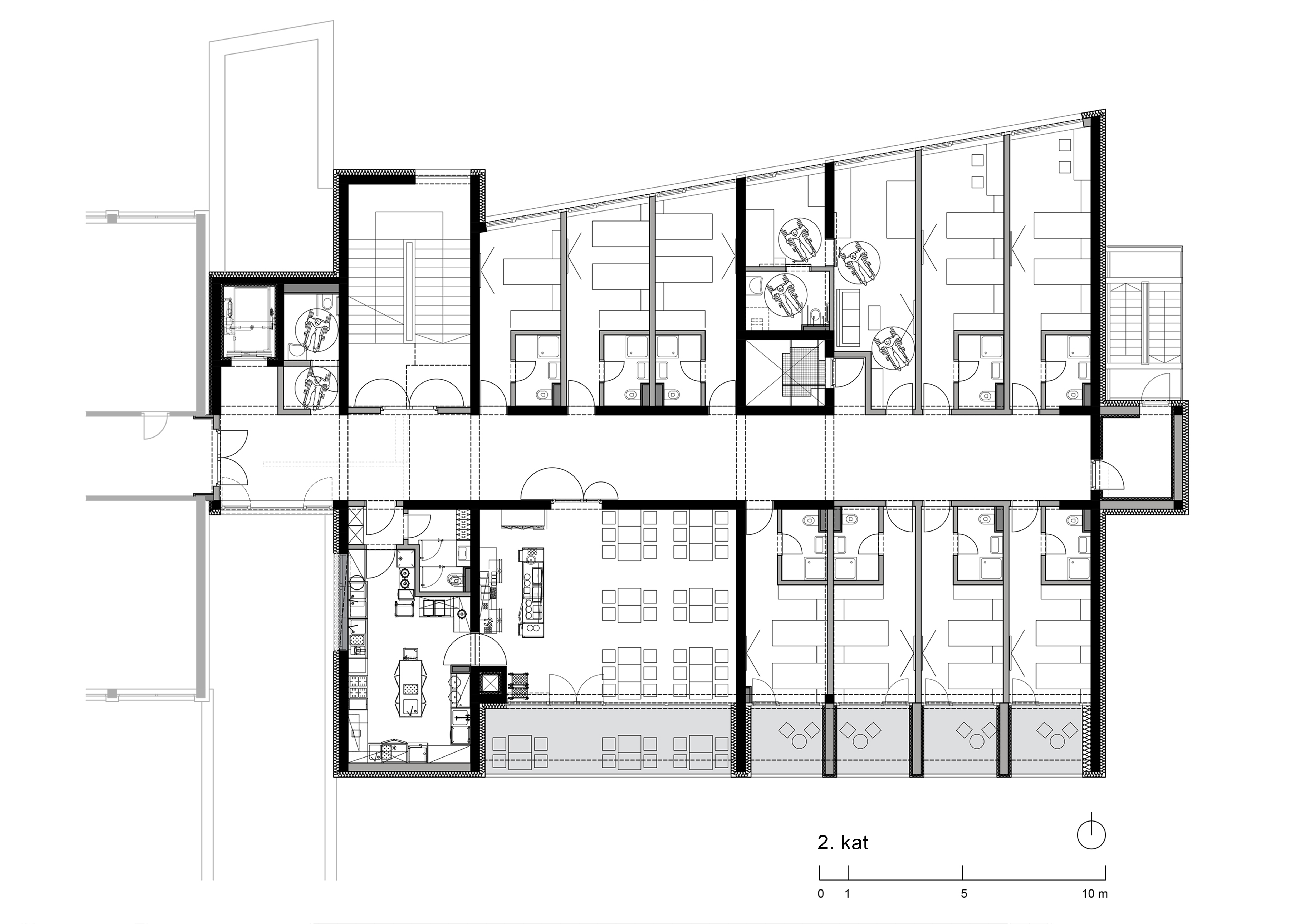
Nova zgrada će se osim za nastavu srednjeg strukovnog obrazovanja koristiti i komercijalno te iz tog razloga sadrži i akademis na 2. katu – sobe za smještaj gostujućih polaznika i predavača te pripadajuću blagovaonicu i kuhinju.
RCK Ruđera Boškovića regionalni je centar kompetentnosti u području elektrotehnike i računalstva te je težnja projekta bila oblikovati interijer na način da se svi strojarski i elektrotehnički sustavi zgrade ostave vidljivima te se tako zgrada ujedno koristi i za potrebe nastave. Takvo oblikovanje rezultiralo je industrijskim stilom interijera, s otkrivenim betonom, nadžbuknim instalacijama elektrotehnike, vidljivim cijevima ventilacije itd.
Strojarski sustav zgrade izrazito je kompleksan jer će se koristiti i u znanstvene svrhe, a zgrada je u potpunosti automatizirana.
INVESTITOR
Tehnička škola Ruđera Boškovića u Zagrebu
IZVOĐAČ
MDK GRAĐEVINAR d.o.o.
GODINA POČETKA PROJEKTIRANJA
2019.
GODINA DOVRŠETKA PROJEKTIRANJA
2021.
GODINA POČETKA GRADNJE
2022.
GODINA DOVRŠETKA GRADNJE
2024.
POVRŠINA OBUHVATA (m2)
31176 m2 površina parcele
UKUPNA TLOCRTNA POVRŠINA (m2)
1870 m2 bruto
PROGRAM/VRSTA
Odgoj i obrazovanje
LOKACIJA
Zagreb


















