Proizvodni pogon Kampusa Rimac
Nominacija za nagradu Viktor Kovačić 2024.
OBRAZLOŽENJE ŽIRIJA +
O PROJEKTU (TEKST AUTORA) +
Povod izgradnji Kampusa Rimac objedinjavanje je svih segmenata tvrtke na jednom mjestu. Smješten u Svetoj Nedelji, blizu Zagreba, Kampus obuhvaća poslovne, razvojne i proizvodne dijelove, uz prateće sadržaje za posjetitelje i zaposlenike.
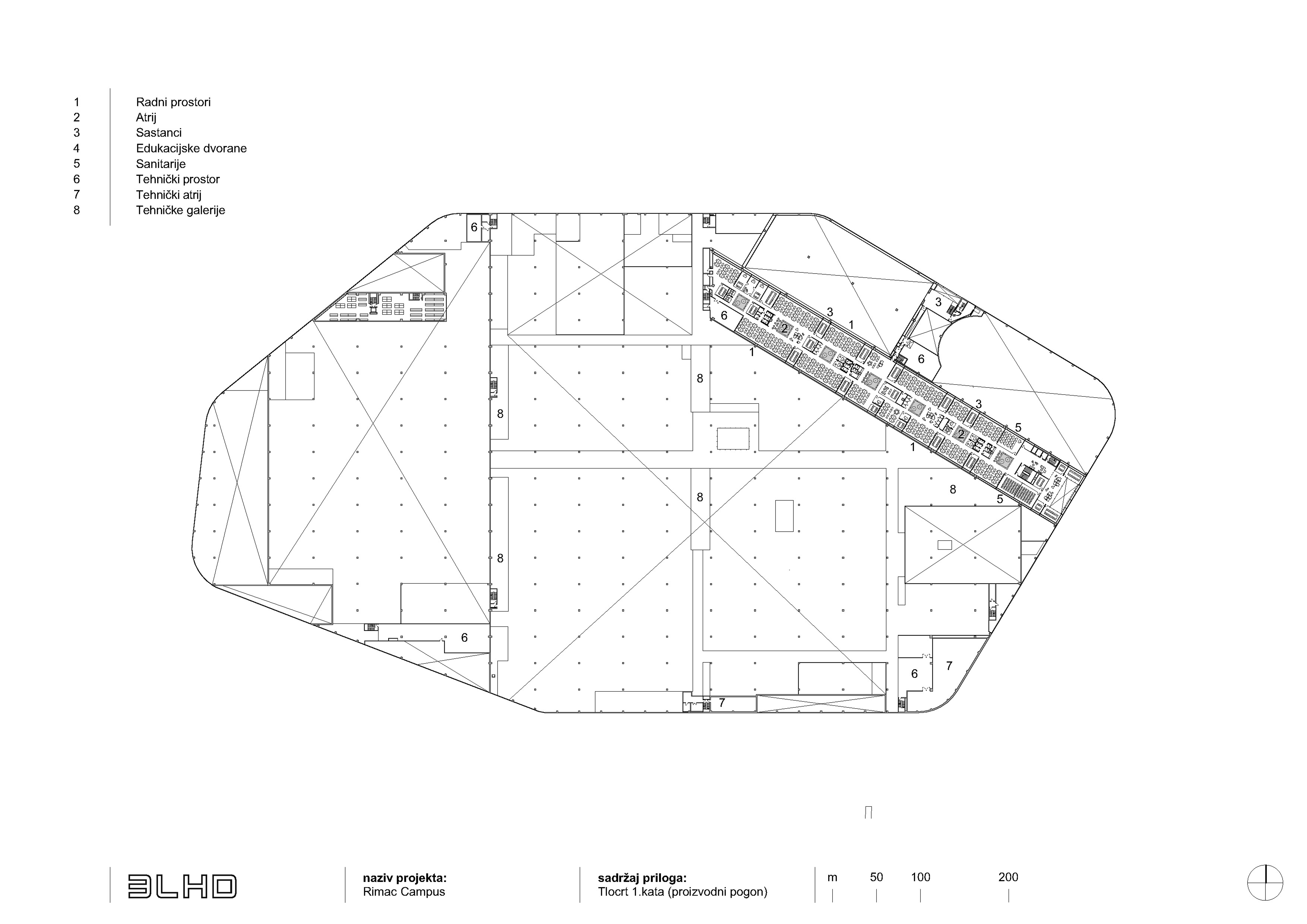
Proizvodni pogon ima površinu od preko 75 000 metara kvadratnih. Zgrada je koncipirana poput tvornice showrooma – proizvodni procesi vidljivi su kroz staklene izloge i postaju dio obilaska i prezentacije. Brza realizacija osigurana je tehnologijom izvedbe industrijskih zgrada, odnosno kombinacijom prefabriciranih armiranobetonskih i čeličnih elemenata. Odjeli su projektirani kao svojevrsne kuće u kući, visine 6 metara, s međuprostorom za instalacije. Na križanju glavnih osi nalazi se središnji atrij i proširenje komunikacija s velikom kuhinjom i zajedničkom blagovaonicom kao mjestom okupljanja i druženja. Uvođenje atrija omogućuje prirodno osvjetljenje i svježi zrak, te ugodniju mikro klimu i atmosferu u dubini zgrade.
Glavni oblikovni element je kontinuirana ovojnica od profiliranog lima ukupne duljine od jednog kilometra. Aluminijski lim je izabran jer je lagan i jednostavan za slaganje na pročelju, te omogućuje prilagođavanje zakrivljenosti na uglovima. Istovremeno osigurava refleksiju i dematerijalizaciju ogromnog volumena proizvodnje otvarajući temu nove monumentalnosti i odnosa spram prostora.
Kampus Rimac spaja visoku tehnologiju s prirodnim okolišem, stvarajući dinamičan prostor koji prihvaća promjene i prilagođava se budućem razvoju, s naglaskom na održivost i integraciju tehnologije, prirode i zajednice.
TVRTKA
PROJEKTNI TIM
Saša Begović , Marko Dabrović , Tatjana Grozdanić Begović , Silvije Novak , Paula Kukuljica , Nevena Kuzmanić , Dragana Šimić , Sanja Jasika Lovrić , Duje Katić , Krunoslav Szoersen , Dora Kodrić , Ivana Marić , Domagoj Osrečak , Mia Kozina , Luka Cindrić , Roko Guberina , Marko Ramov , Jelena Prokop , Tena Knežević , Nives Krsnik Rister , Leon Lazaneo , Tamara Janjić , Tamara Paulina Pavković , Nevenka A. Krželj , Josip Babec Šuša , Viktorija Genzić , Alen Pučar , Lucija Ptiček , Monika Prinčić , Ida Ister , Tomislav Soldo , Andrej Filipović
SURADNICI
Tomislav Šolto , Miljenko Zekić , Davor Vilupek , Matija Kokot , Maja Milat , Duška Jelić / Arhimetrik (suradnici projektnog tima)
INVESTITOR
Rimac Technology d.o.o.
IZVOĐAČ
FACIES d.o.o.
GODINA POČETKA PROJEKTIRANJA
2019
GODINA DOVRŠETKA PROJEKTIRANJA
2021
GODINA POČETKA GRADNJE
2021
GODINA DOVRŠETKA GRADNJE
2024
POVRŠINA OBUHVATA (m2)
197575
UKUPNA TLOCRTNA POVRŠINA (m2)
95329
UKUPNA VRIJEDNOST INVESTICIJE BEZ PDV-A (kn)
120000000
PROGRAM/VRSTA
Sport i rekreacija
Poslovanje
Turizam
Javni prostor
Urbanizam
Ostalo
LOKACIJA
Sveta Nedelja















