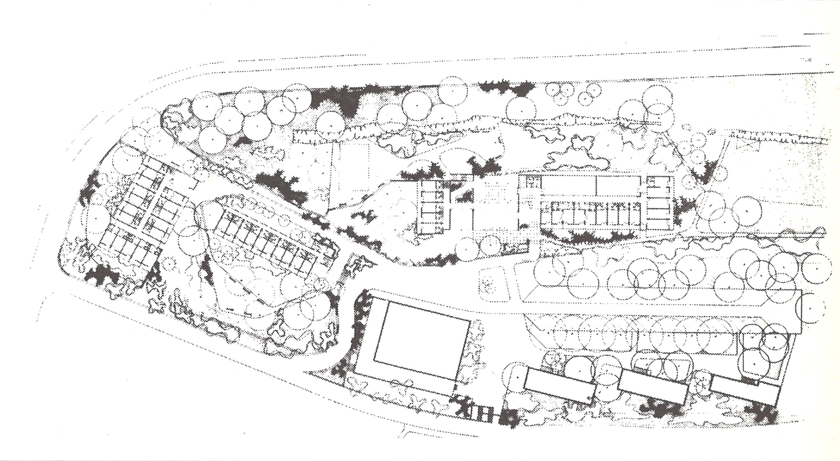
Natječaj za hotelsko naselje u Trsteniku

VRSTA

pozivni, gradski

PROGRAM

Turizam

OBJAVA

01.01.1962.

RASPISIVAČ

Hotelsko poduzeće Split, preko Ugostiteljske komore

NAGRAĐENI RADOVI