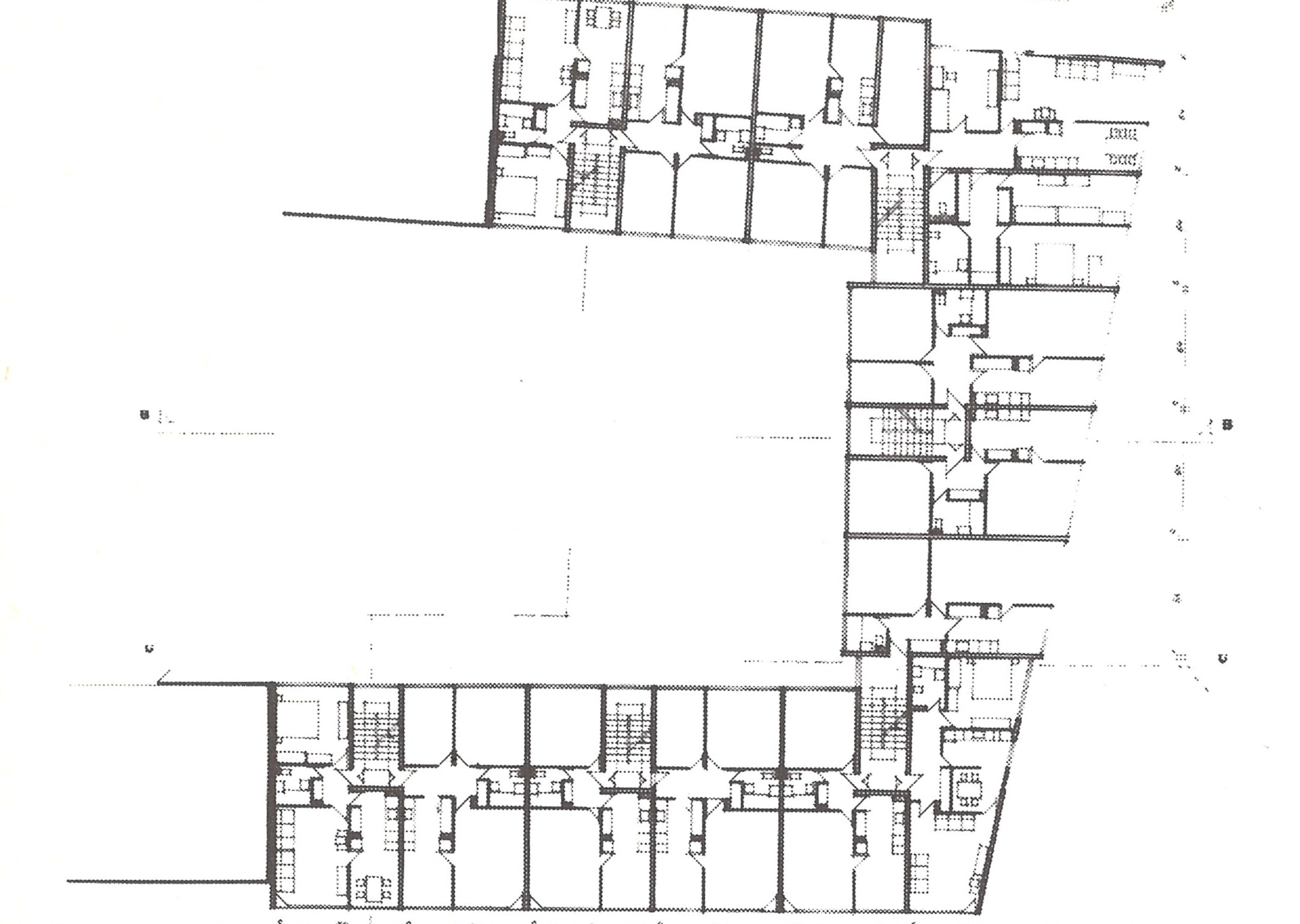
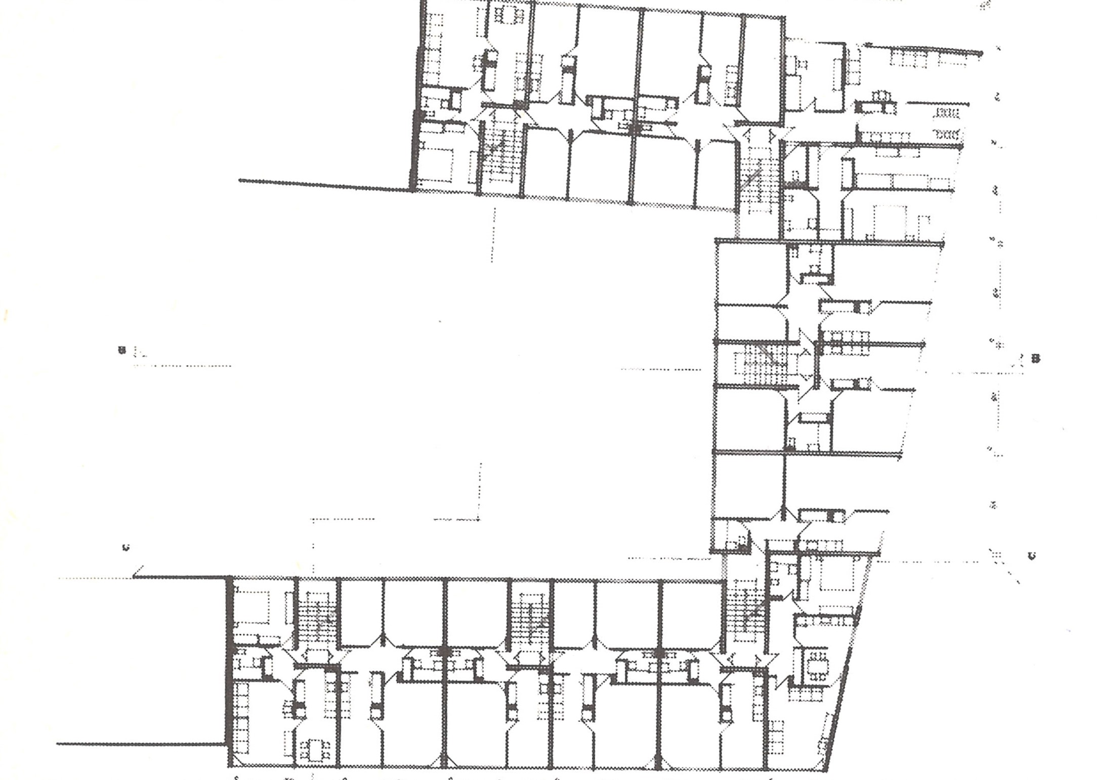
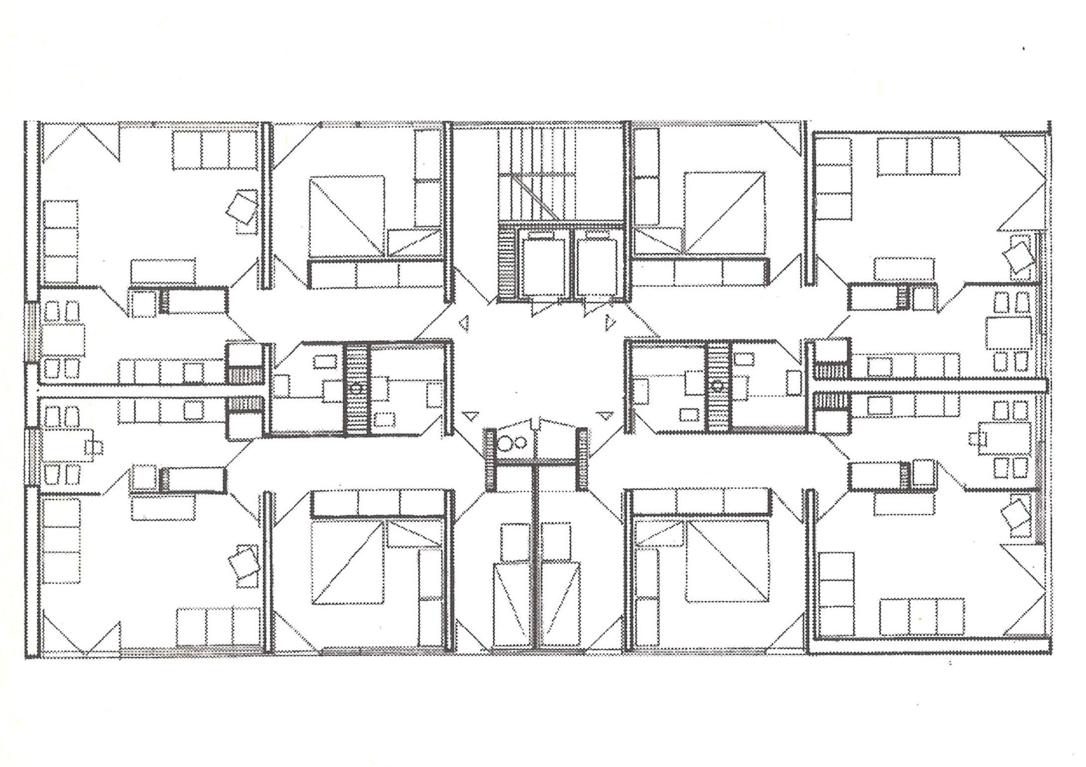
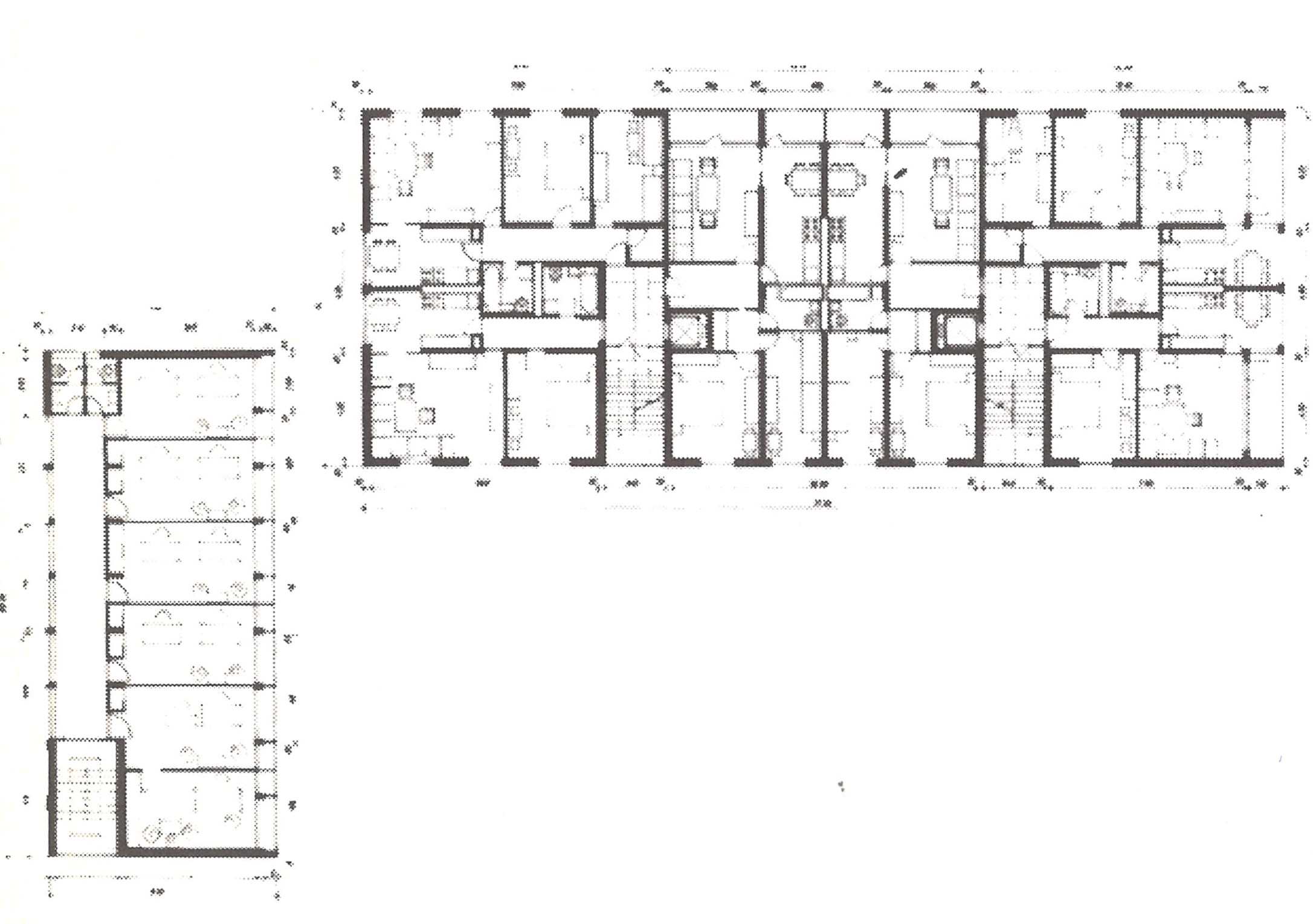
Natječaj za stambene objekte E-247, E-313 i E-318

VRSTA
pozivni, gradski
PROGRAM
Stanovanje
OBJAVA
11.04.1962.
RASPISIVAČ
Općinski fond za stambenu izgradnju – Split
NAGRAĐENI RADOVI –
E-247 1. nagrada
Ivo Radić
E-313 nagrada
Ivo Radić
E-313 nagrada
Zlatibor Lukšić
E-318 nagrada
Lovro Perković
RADNA TIJELA –
Ocjenjivački sud
Jakov Trumbić (predsjednik), Kazimir Ostrogović, Mirjam Baldasar, Josip Vojnović, Leo Monterisi



