Natječaj za Poslovno-stambeni blok u Osijeku

VRSTA

Pozivni natječaj

PROGRAM

Stanovanje, Poslovanje

OBJAVA

01.01.1959.

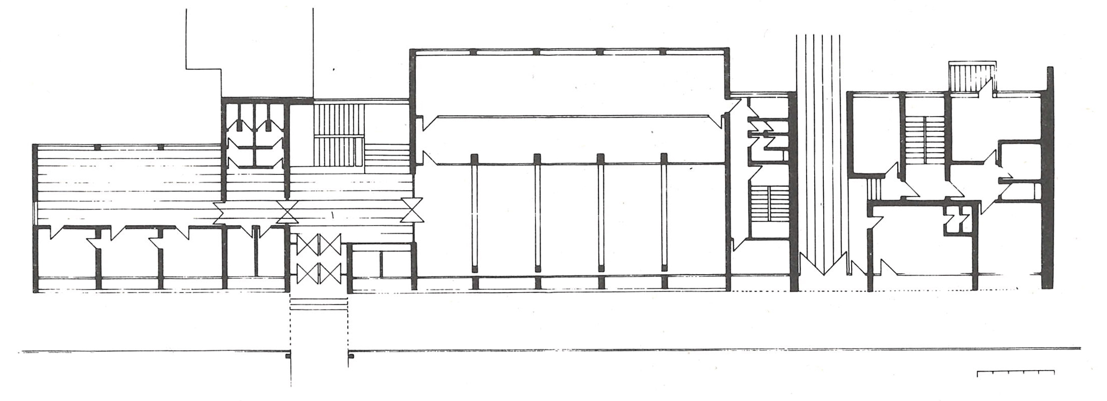
NAGRAĐENI RADOVI