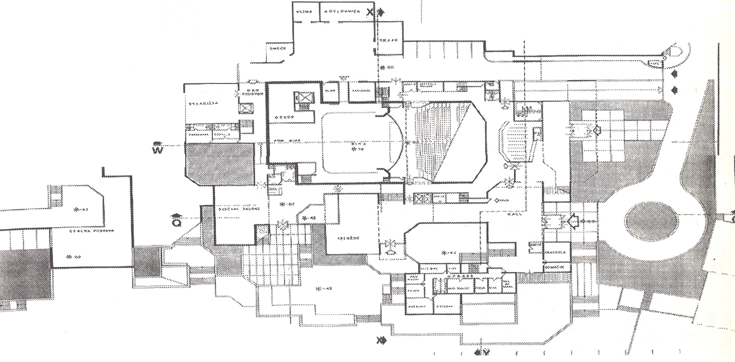
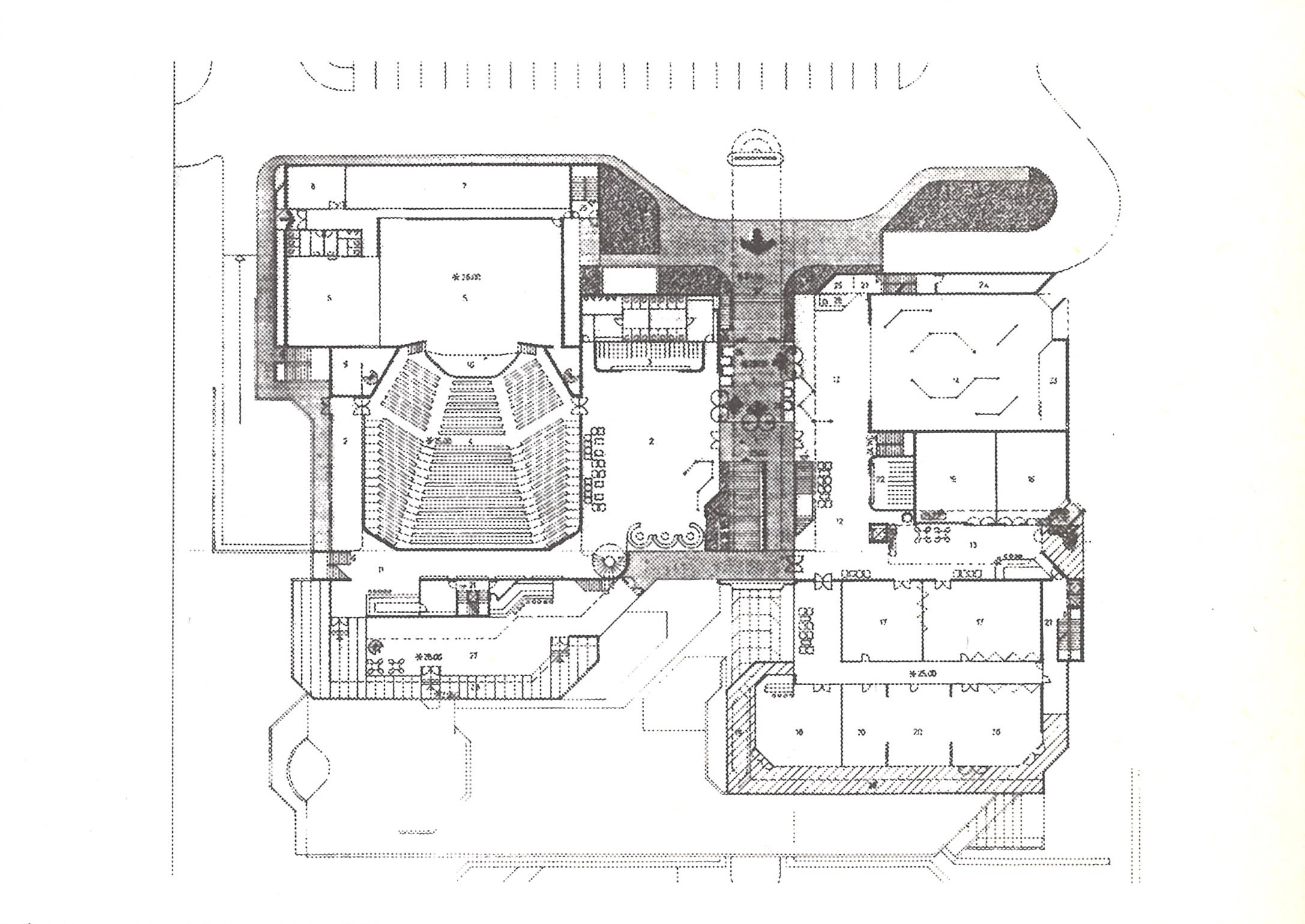
Natječaj za arhitektonsko-urbanističko rješenje Doma JNA i galerije umjetnina u Splitu

VRSTA
Pozivni natječaj
PROGRAM
Kultura, Ostalo
OBJAVA
16.07.1979.
RASPISIVAČ
VP 7345 Split
NAGRAĐENI RADOVI –
Natječajni rad
Zdravko Mahmet, Boris Morsan, Aleksander Laslo
otkup
Boris Bego
otkup
Jerko Rošin
otkup
Germano Mitrović
otkup
Ante Rožić
otkup
Aljoša Žanko
RADNA TIJELA –
Ocjenjivački sud
Miodrag Radosavljević (predsjednik), Mihajlo Zorić (zamjenik predsjednika), Petar Bogunović (član), Vinko Perko (član), Ante Njegovan (član), Petar Šimić (član), Nikola Ivanović (član), Eduard Besak (član), Žarko Turketo (član), Boris Magaš (član), Ivan Žižić (član), Radomir Noveljić (izvjestilac), Blaž Mičunović (izvjestilac)













