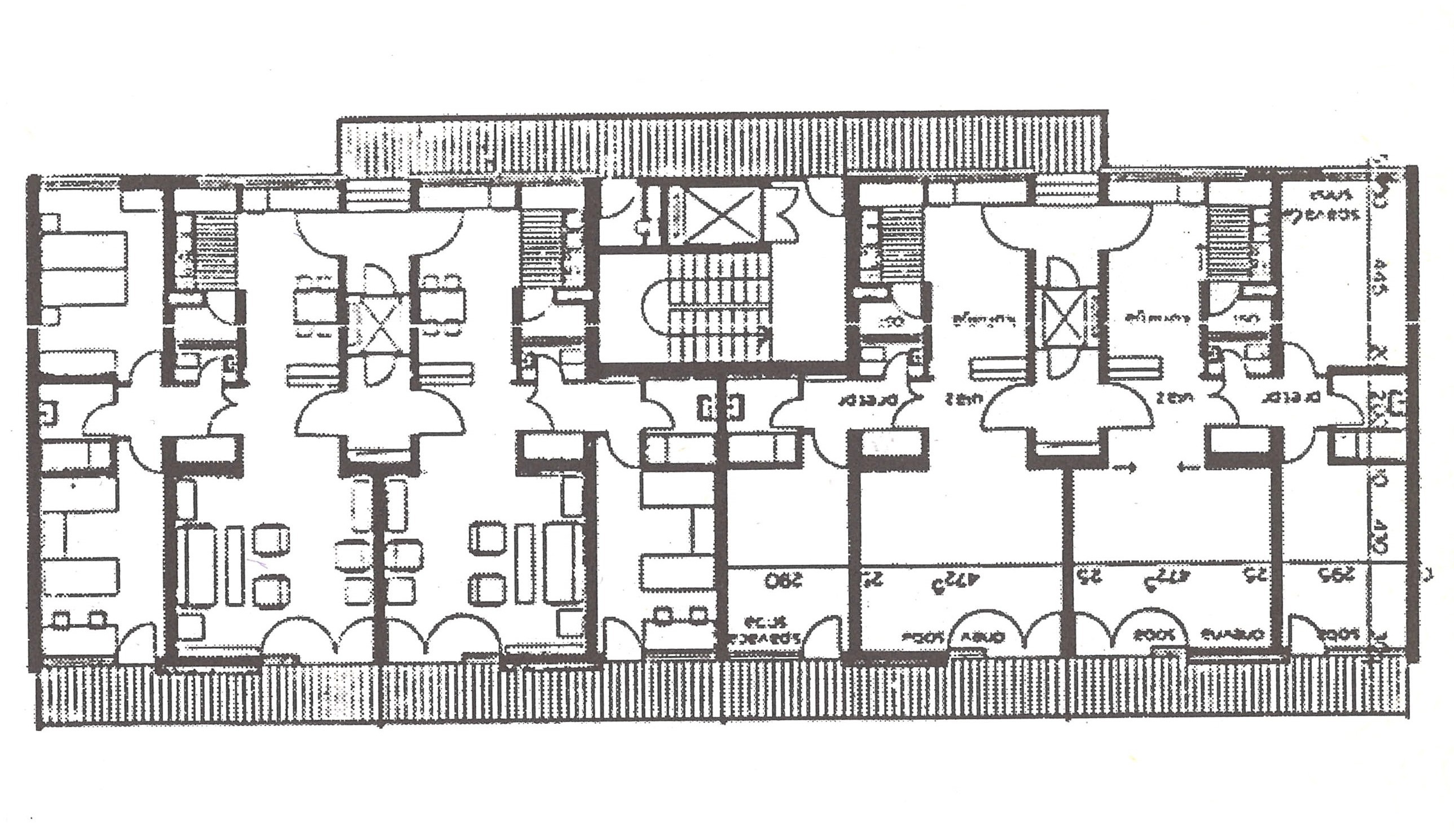
Natječaj za izradu projekta stambenih nebodera u predjelu Spinut u Splitu

VRSTA
Interni, pozivni natječaj
PROGRAM
Stanovanje
OBJAVA
01.01.1964.
RASPISIVAČ
Vojno-građevinska direkcija, Split
NAGRAĐENI RADOVI –
RADNA TIJELA –
Ocjenjivački sud
Janko Bobetko (predsjednik), Drago Vidiček, Vladimir Jaman, Vladimir Turina, Branko Žeželj, Zdenko Sila, Ante Srdarević, Mladen Vodička (zamjenik člana)




