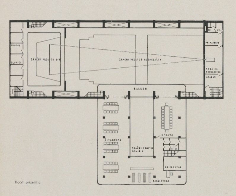
Natječaj za projekte kino dvorana s domom kulture / Kino dvorana za 500 ljudi s domom kulture

VRSTA
Uži natječaj među projektnim zavodima FNRJ za projekt kinematografskih dvorana
PROGRAM
Tipski projekt, Kultura
OBJAVA
01.01.1947.
RASPISIVAČ
Savezni komitet za kinematografiju u Beogradu
OSTALI RADOVI +




