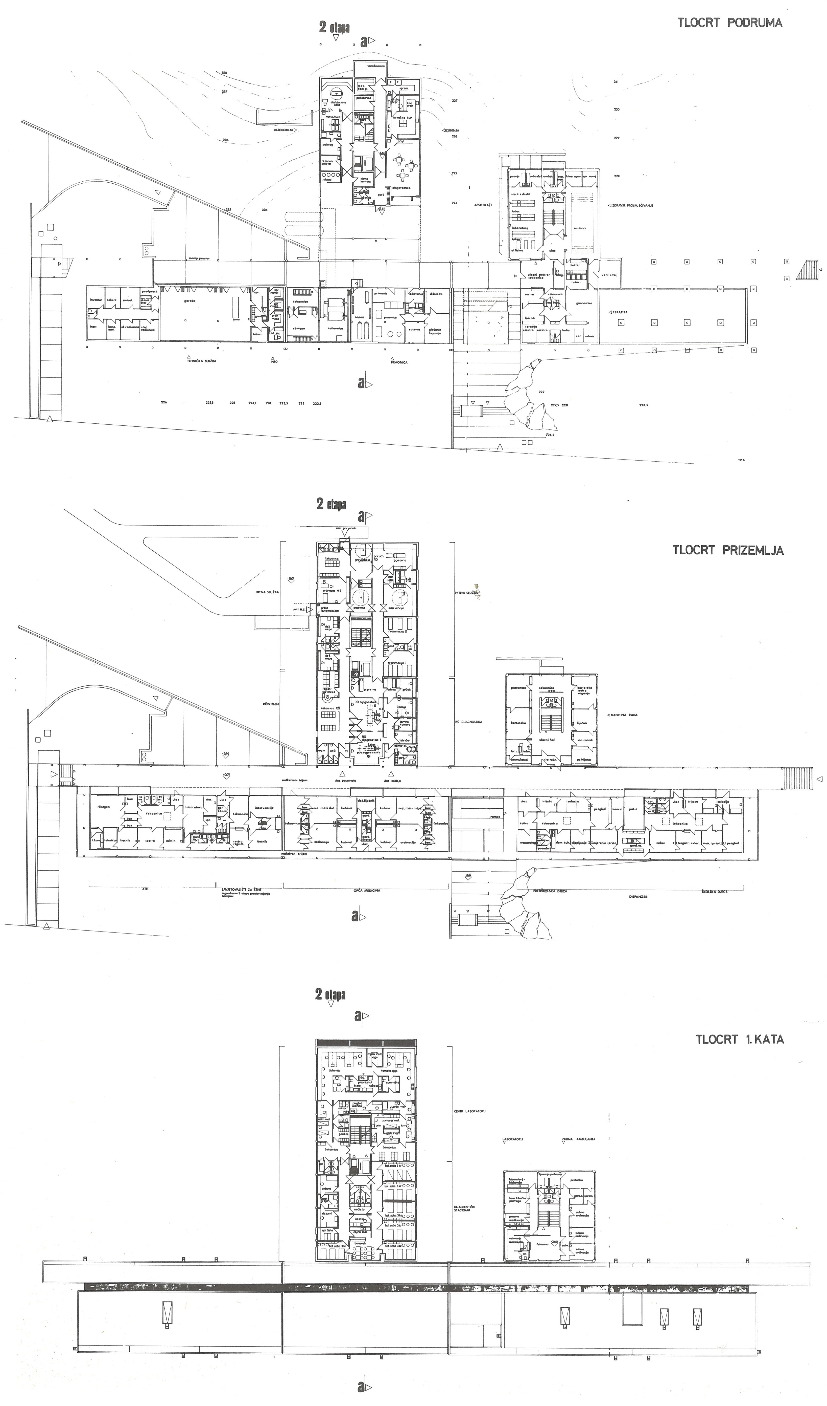
Natječaj za izradu idejnog rješenja Doma narodnog zdravlja u Labinu

VRSTA
Opći, jugoslavenski, anonimni natječaj
PROGRAM
Zdravstvo
OBJAVA
20.03.1963.
RASPISIVAČ
Dom narodnog zdravlja u Labinu
NAGRAĐENI RADOVI –
I. nagrada
Mladen Vodička, Boris Magaš, Izidora Lovrić, Stojan Zafauk
II. nagrada
Julije De Luca, Marija Kargačin, Grozdan Cezner, Dragica Jakopčić
Otkup
Stjepan Milković, Zdravko Gmajner, Božo Kondres, Anđelko Resnik
Otkup
Franka Bihler, Andrija Kajtna, Željko Žlof
Otkup
Drago Bradić, Duška Bradić-Jednak
Otkup
Ljubica Seršić, Emil Seršić, Matija Salaj, Ljubo Perić
Otkup
Željko Mišić-Pažin, Đuro Mirković
RADNA TIJELA –
Ocjenjivački sud
Antun Ulrich (predsjednik), Selimir Dumengjić (član), Ivan Kosić (član), Stanko Kristl (član), Zvonimir Kuhar (član), Zdenko Sila (član), Vladimir Turina (član), Teodor Verbanac (član), Petar Žic (član), Aleksandar Dragomanović (zamjenik), Duško Rakić (zamjenik)















