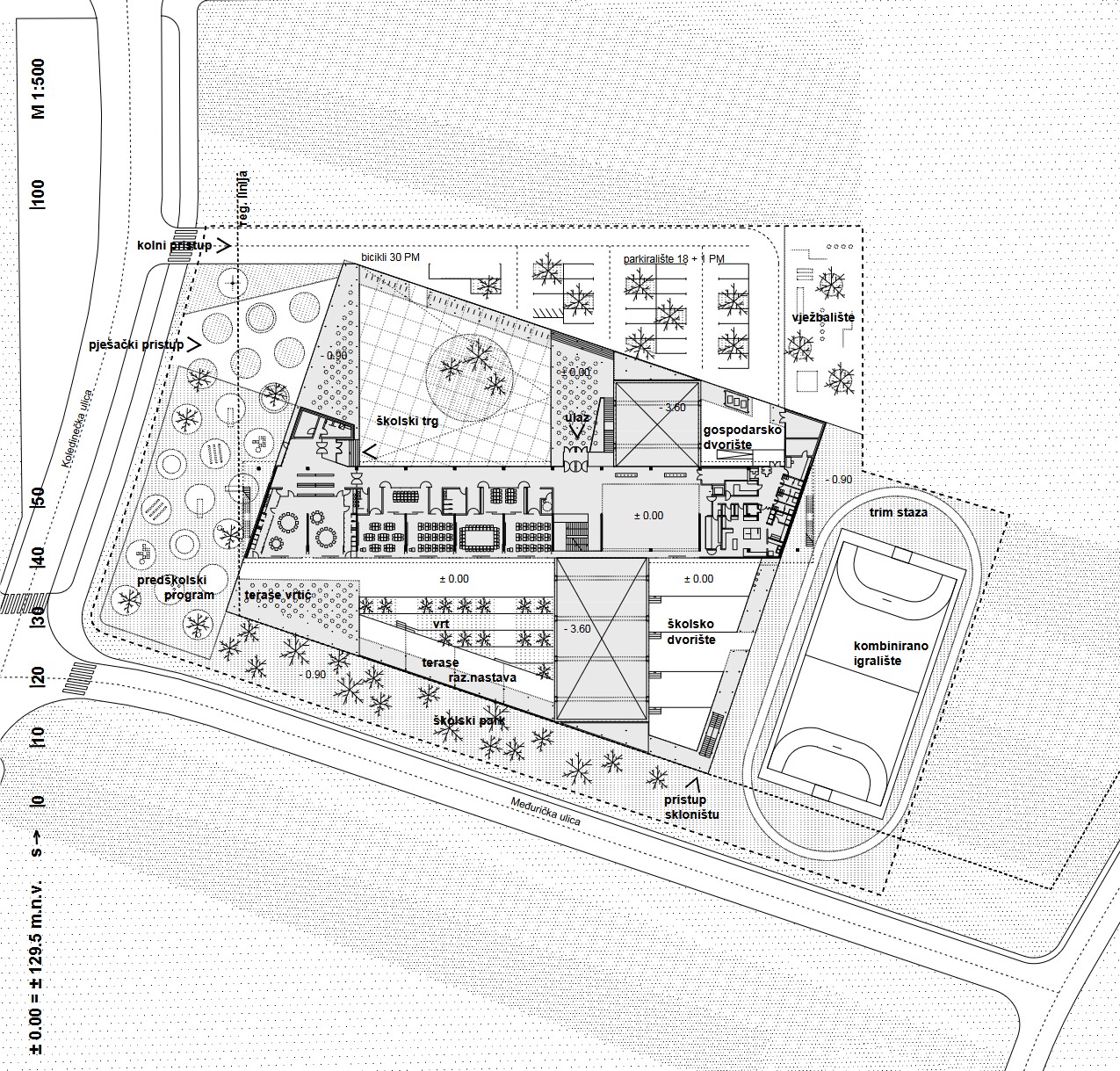
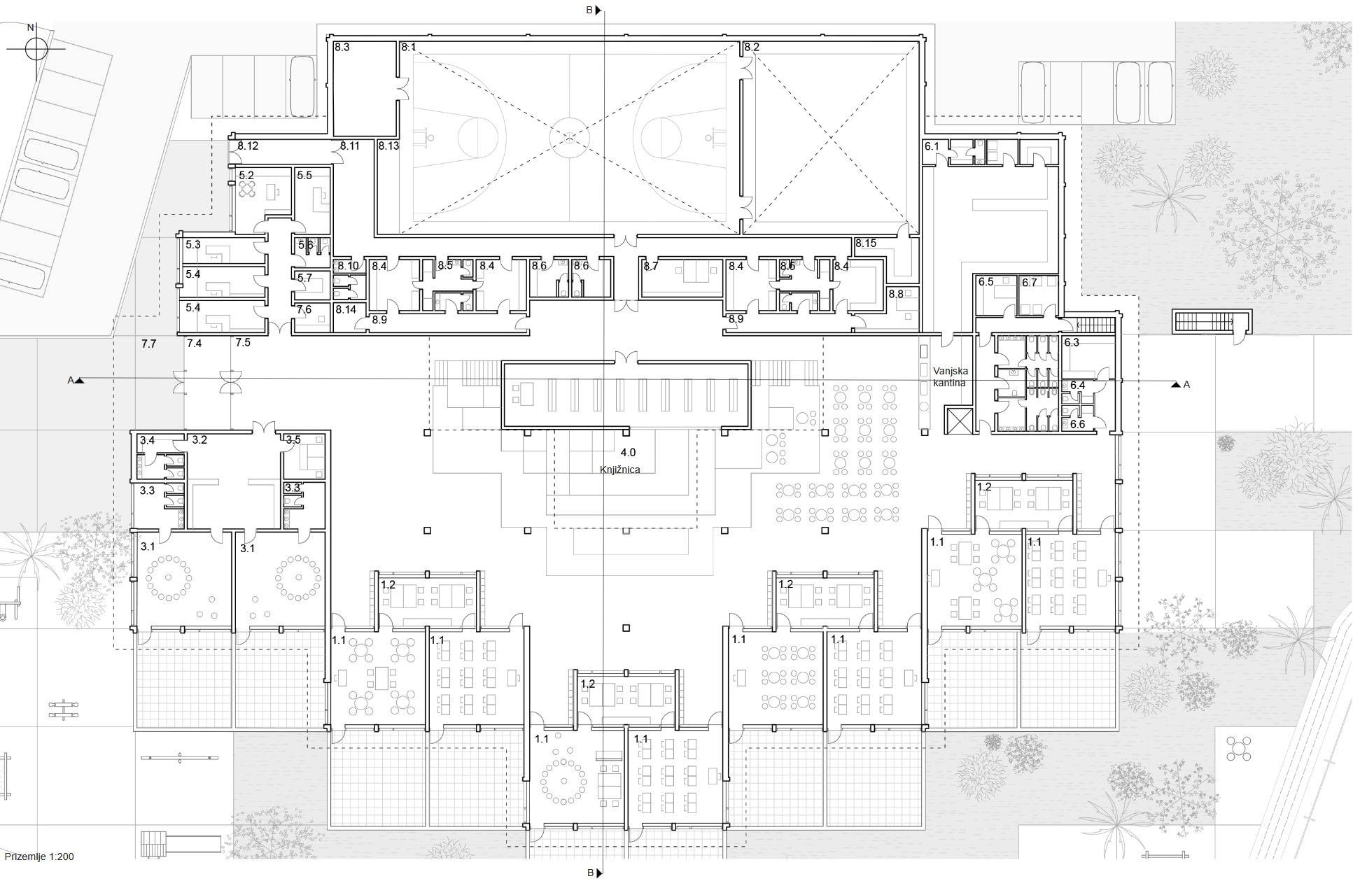
Natječaj za idejno arhitektonsko-urbanističko rješenje Osnovne škole Dubrava – centar

VRSTA
javni, opći, jednostupanjski, anonimni, za realizaciju, I. stupnja složenosti
PROGRAM
Odgoj i obrazovanje
OBJAVA
29.10.2025.
RASPISIVAČ
Grad Zagreb
NAGRAĐENI RADOVI –
1. nagrada
Mateo Liović, Kata Marunica, Mirta Mesić, Nenad Ravnić, Filip Vidović, Mariia Nikolaienko, Marin Piršić
2. nagrada
Ivan Jovičević, Dušan Đurović, Petar Laus, Sara Tomić, Milica Doderović, Dušan Ivanović
3. nagrada
Tin Nekoksa, Hana Perić, Vanja Rister
4. nagrada
Burton Hamfelt, Marysia Oplatek, Maja Zubak, Sucre Wanga, Noyan Azbun
5. nagrada
Stefan Đorđević, Dalia Dukanac, Milan Karaklić
RADNA TIJELA –
Ocjenjivački sud
Antun Sevšek (predsjednik), Marija Burmas, Željko Golubić, Boris Gregurić, Sanda Radočaj, Patrik Mićanović (zamjenik člana)
Tajnik natječaja
Tomislav Soldo
Tehnička komisija
Tajana Levojević, Marta Turk












































