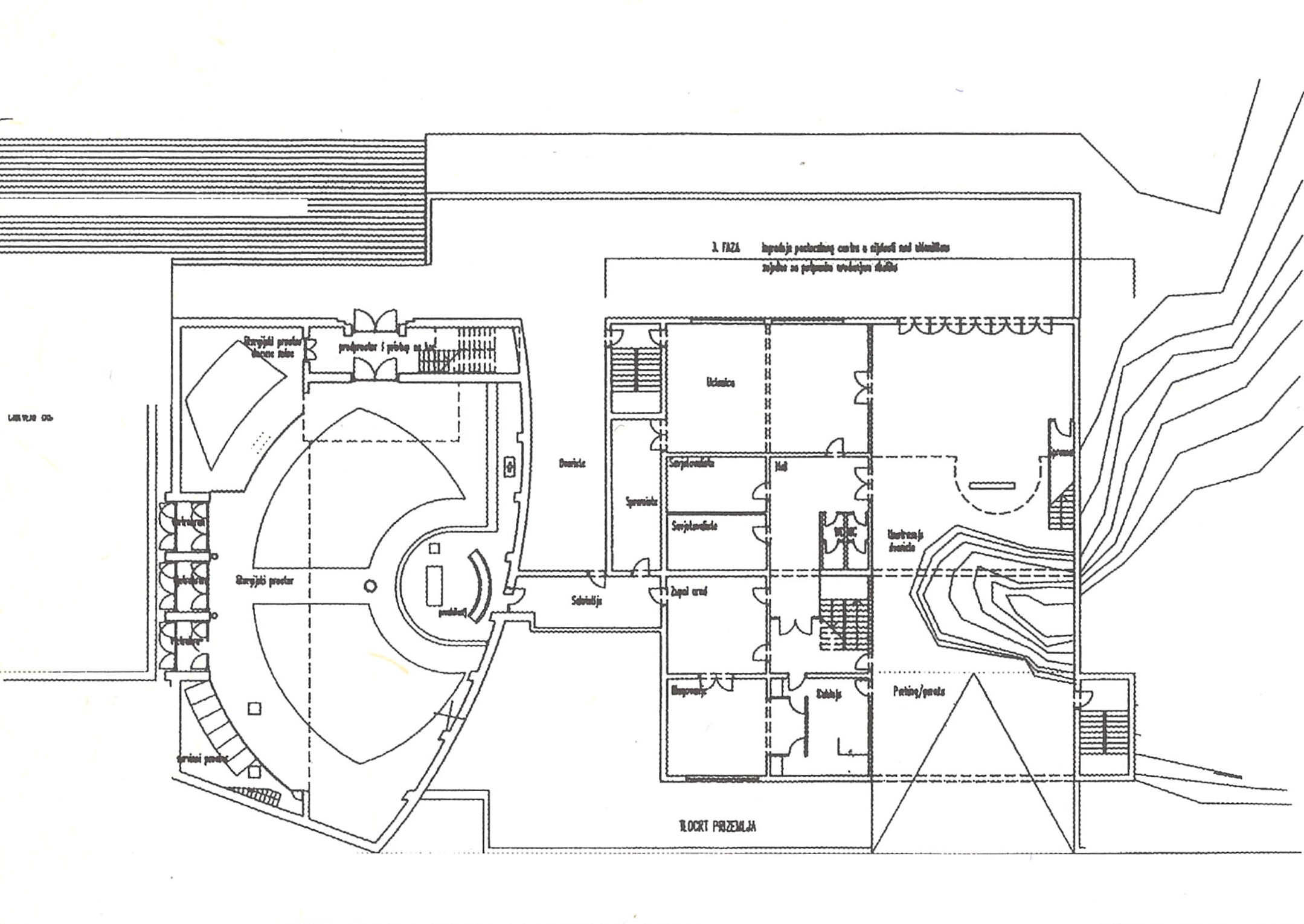
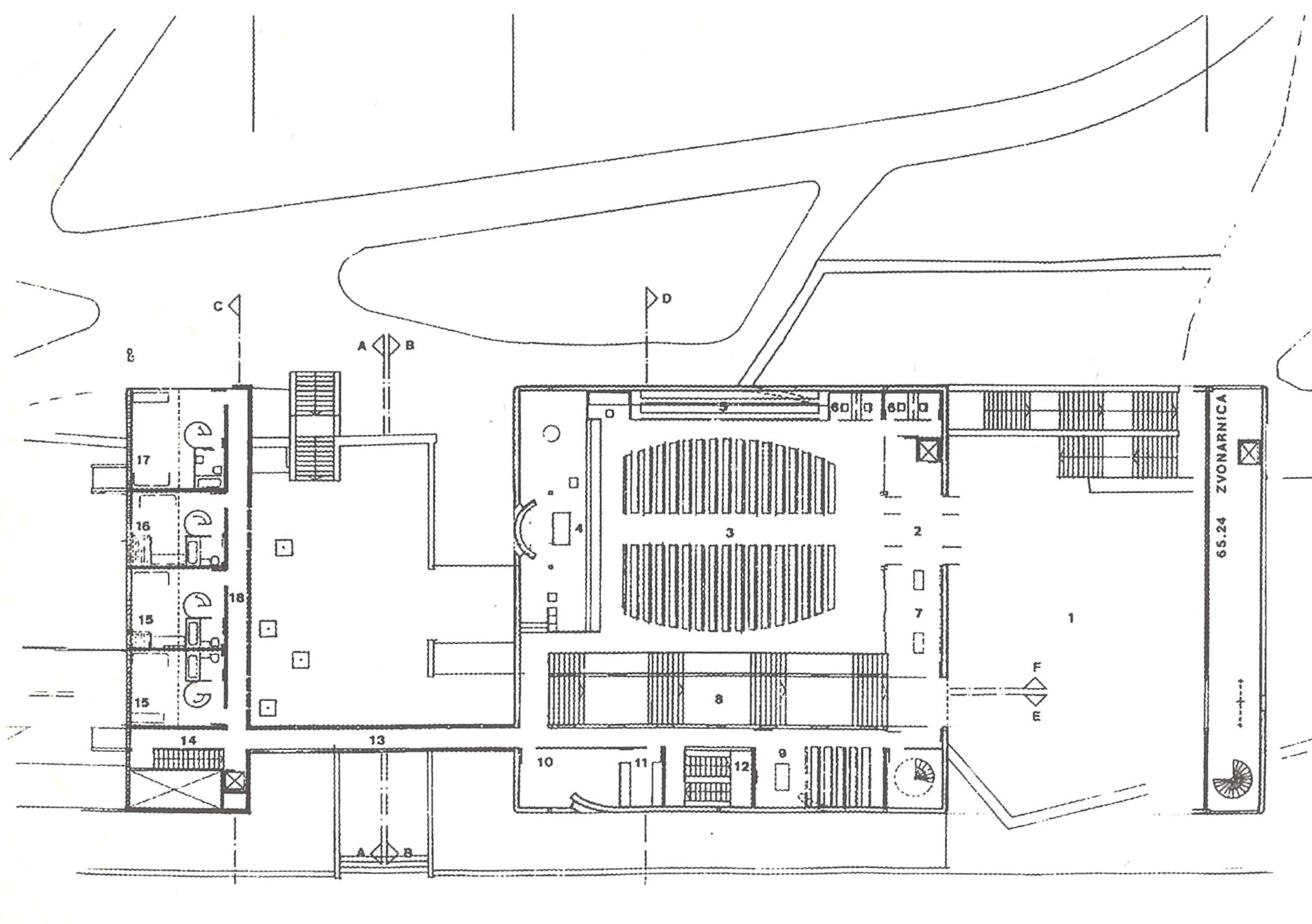
Natječaj za pastoralni centar župe sv. Josipa na Mertojaku

VRSTA
pozivni i opći, državni
PROGRAM
Religija
OBJAVA
10.06.1994.
RASPISIVAČ
Nadbiskupski ordinarijat u Splitu
NAGRAĐENI RADOVI –
1. nagrada
Neno Kezić, Eugen Širola
2. nagrada
Ivana Crnošija, Damir Mioč, Zvonimir Prlić
3. nagrada
Bojan Bodrožić
RADNA TIJELA –
Ocjenjivački sud
Josip Delić (predsjednik), Draško Bižaca, Nikola Bašić, Vinko Peračić, Emil Šverko, don Ivan Čotić (zamjenik člana), Darovan Tušek (zamjenik člana), Ivan Madunić (izvjestitelj)





