Prijava
HR / EN
O nama
Mreža
Vijesti
Nagrade
Nagrade UHA-e
Nagrada Vladimir Nazor
Izložbe
Godišnja izložba ostvarenja
Natječaji
Izdanja
Čovjek i prostor
Arhitektura
Sva izdanja
Karta
Pretraga
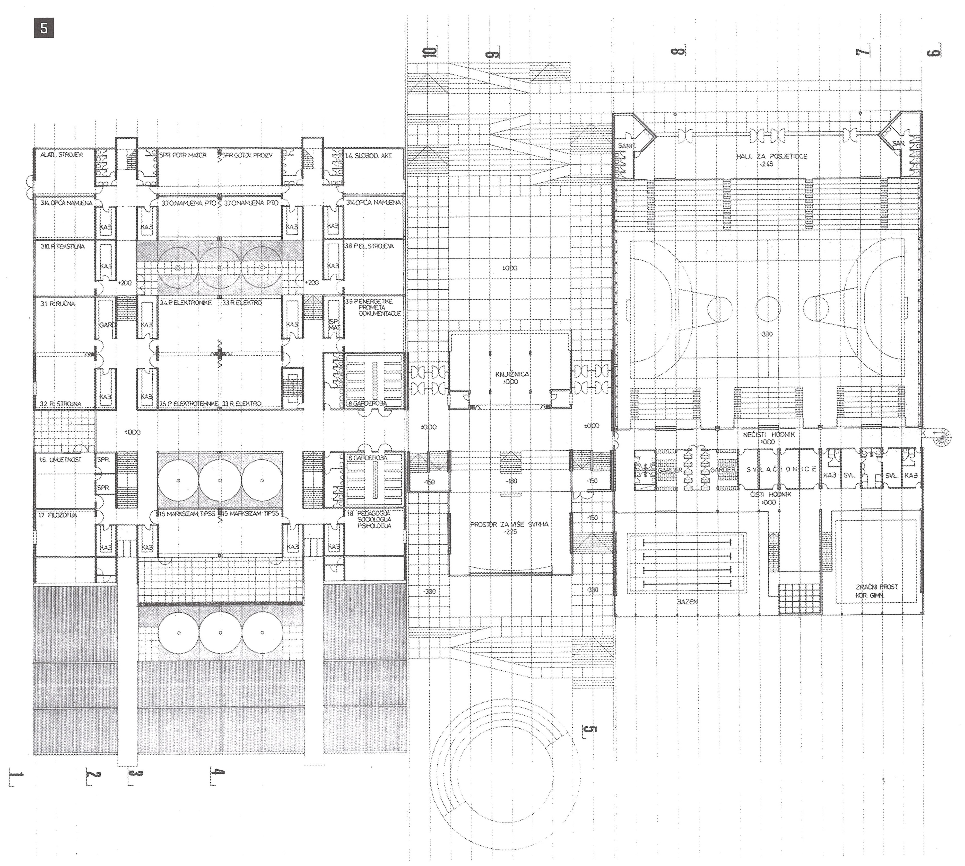
Natječaj za Srednjoškolski centar CUO u Imotskom
PROGRAM
Odgoj i obrazovanje
OBJAVA
01.01.1979.
OSTALI RADOVI
+
1.
Hildegard Auf-Franić