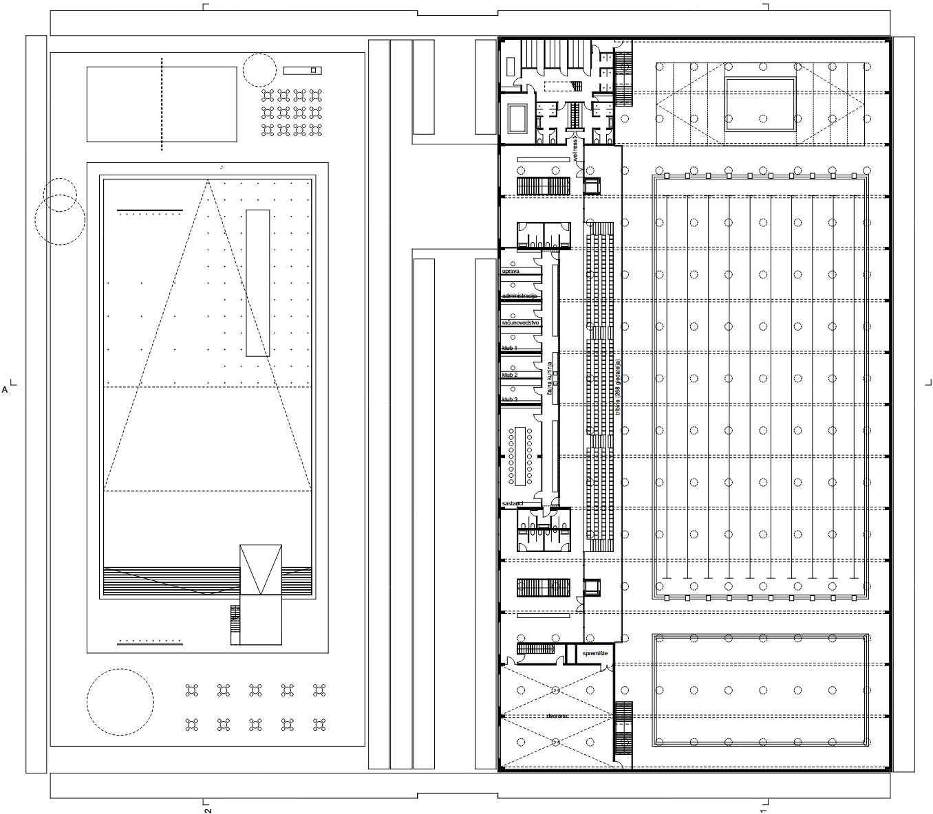
Natječaj za izradu idejnog rješenja za Gradski bazen Zaprešić

VRSTA
otvoreni, javni, opći, anonimni, jednostupanjski za realizaciju, II. stupnja složenosti
PROGRAM
Sport i rekreacija
OBJAVA
18.08.2025.
RASPISIVAČ
Grad Zaprešić
NAGRAĐENI RADOVI –
1. nagrada
Vedran Pedišić, Dino Špadina, Erick Velasco Farrera, Stipe Gašpar, Boris Baljkas, Matej Mauhar, Željko Bertić
2. nagrada
Frane Stančić, Hana Marisa Mohar, Marija Katarina Novak, Romana Dusper, Tomislav Tabain
3. nagrada
Anita Karaman, Dora Komenda, Ana Krstulović, Dino Bakić, Boris Trogrlić, Dinko Žuvela, Niko Žuvela
4. nagrada
Lea Pelivan, Toma Plejić, Luka Bosnić, Fran Hodalj, Domagoj Leko, Matija Poštenik, Izvor Simonović-Majcan
5. nagrada
Dominik Lovrečić, Nina Barać
pisano priznanje
Vedran Vuletić, Mislav Klarić, Nikola Škarec, Naii Klarić, Josip Vidović, Tomislav Češljaš, Dario Orkić, Srećko Lačen, Igor Jašarević, Tomislav Šmintić
pisano priznanje
Vladimir Kasun, Darko Latin, Tin Heljić, Ivo Andričić, Ema Kokot, Klara Krišto, Barbara Lončarić, Barbara Mandić
RADNA TIJELA –
Ocjenjivački sud
Vjera Bakić (predsjednica), Zoran Boševski, Tomislav Kušan, Elena Tikvić, Matija Fegeš, Miran Pokupec (zamjenik člana), Marina Penezić (stručna savjetnica)
Tajnica natječaja
Fani Frković
Tehnička komisija
Ana Boljar, Ana Komadina


























































































