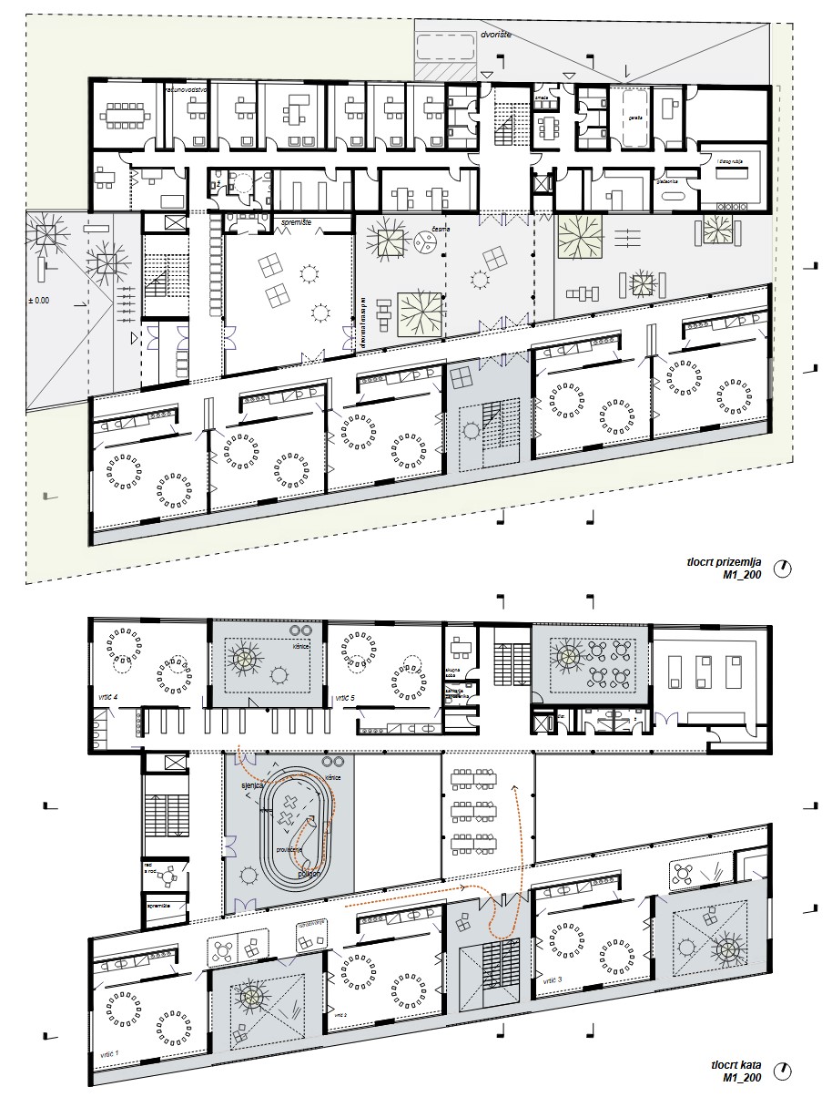
Projektni natječaj za za izradu idejnog arhitektonsko-urbanističko rješenja centralnog dječjeg vrtića na području Ribnjak u Omišu

OBJAVA
04.04.2024.
RASPISIVAČ
GRAD OMIŠ, GRADSKO POGLAVARSTVO
NAGRAĐENI RADOVI –
1. nagrada
Mia Depolo, Nika Dželalija, Franjo Kovačević, Marin Penava, Krešimir Renić
2. nagrada
Ivan Sučić, Matej Sučić, Nikola Kačan
3. nagrada
Branka Juras, Zdenko Pavičić, Luči Plosnić, Segor Garber
4. nagrada
Hrvoje Arbanas, Mario Kralj, Dora Lončarić, Martin Mertz, Mario Peko, Luka Šen
5. nagrada
Dražen Juračić, Jelena Skorup Juračić, Marija Grković, Zvonimir Pavković
RADNA TIJELA –
Ocjenjivački sud
Nikola Popić (predsjednik), Ivo Tomasović (zamjenik predsjednika), Zora Lelas Ković, Bojan Baletić, Ante Mardešić, Nenad Kondža (zamjenik člana), Stipe Žuljević-Mikas (stručni savjetnik za investiciju)
Tajnica natječaja
Andrea Vukojić
Tehnička komisija
Ivica Jandrić, Lucija Megla














