Godišnja izložba
ostvarenja

Centar za posjetitelje Arsia, Raša

Foto: Mateo Gobo
Foto: Mateo Gobo
Foto: Mateo Gobo
Foto: Mateo Gobo
Foto: Mateo Gobo
Foto: Mateo Gobo

Autori:

Saša Putinja
Kristina Bartolić
Kristian Vrbica

Tvrtka:

Projektni tim:

Suradnici:

Investitor:

Općina Raša

Izvođač:

De Conte, Labin

Godina početka projektiranja:

2018

Godina dovršetka projektiranja:

2018

Godina početka gradnje:

2019

Godina dovršetka gradnje:

2019

Površina obuhvata:

200 m2

Ukupna tlocrtna površina:

200 m2

Program / vrsta:

Interijer
Odgoj i obrazovanje
Kultura
Turizam
Javni prostor
Izložbe

Lokacija:

Raša

O projektu (tekst autora):

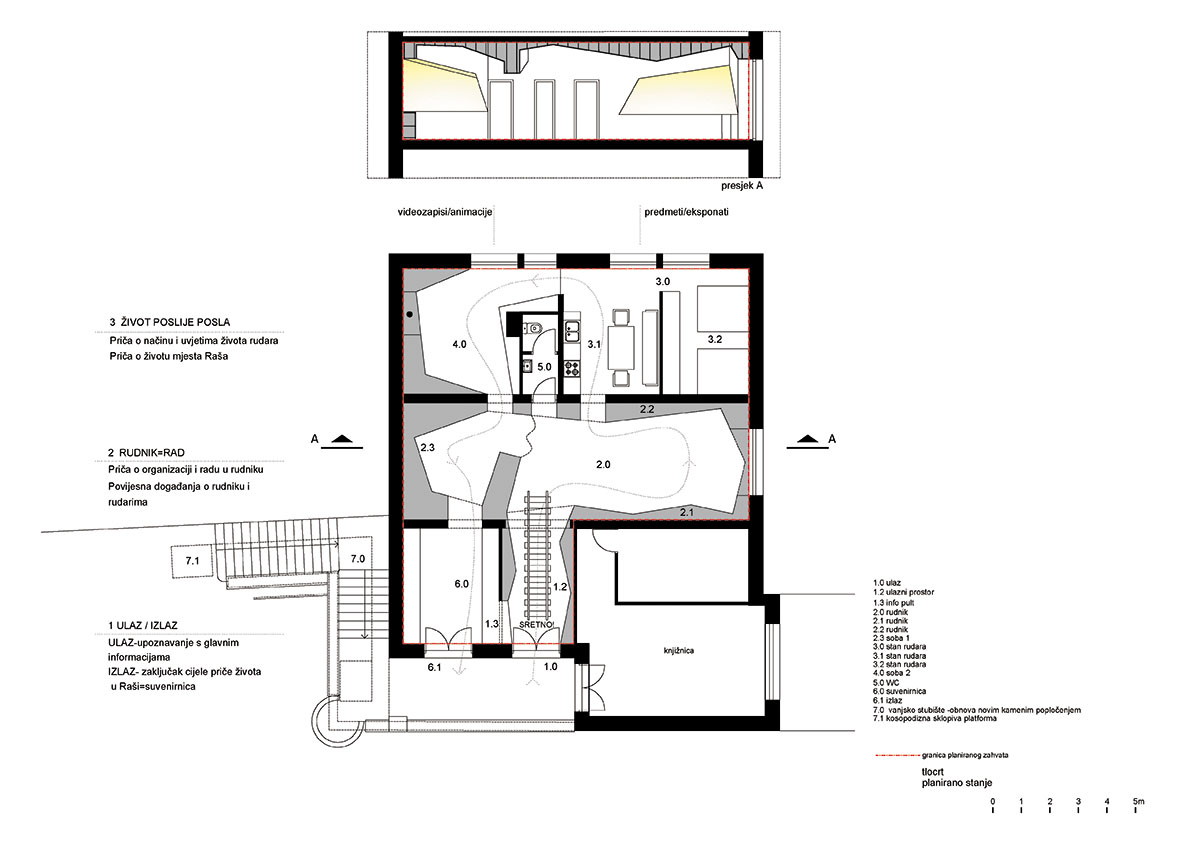
Objekt se nalazi u mjestu Raša, u Istri, na glavnom mjesnom trgu. Inicijativom Općine o osnivanju centra za posjetitelje prezentirana je slojevita i bogata povijest te autentičnost ovo rudarskog kraja.

Glavne smjernice prilikom projektiranja prostora u postojećem objektu bile su: maksimalno iskorištavanje zatečenog prostora sa minimalnim rušenjem postojećih zidova; smisleno i sadržajno povezivanje svih prostorija kroz jednu priču -prezentacija rudnika, nekadašnja tehnologija rudarstva; autentičan stan rudara; prezentacija nekadašnjeg života u mjestu; zbivanja i događaji poznatog rudnika u Raši; -suvenirnica za kupnju suvenira. Glavna ideja centra jest ispričati priču života rudara misao vodiljom posao-kuća-posao kroz igru svjetla i tame te života samoga mjesta, osmišljenih kroz 3 cjeline: 1. Glavni ulaz koji asocira polumračni ulaz u rudnik sa zidovima u obliku kamenih stijena te tračnicama koje vode u dubinu rudnika. 2. Rudnik, prostor koji je taman i mračan sa diskretnijim i prigušenijim osvjetljenjem u kojem se nalaze niše, asocija na pukotine stijena odakle je vađen ugljen. U tom su dijelu prezentirani alati, oprema, te cjelokupna organizacija rudnika. 3. Stan rudara koji prezentira prostornu organizaciju i opremljenost, atmosferu i ugođaj doma. Prostor stana sadrži dvije sobe sa skromnim namještajem i rasvjetom. U sljedećoj prostoriji, (dio cijeline 3) se nalaze projekcijski ekrani koji pričaju priču mjesnog života od njegovog nastanka pa do danas. Manja prostorija koja slijedi (dio cijeline 2) je ponovni povratak u rudnik u kojoj se na projekcijskim ekranima prikazuju zbivanja i informacije u samom rudniku Raša, od njegovog razvoja, dostignuća, pa do nesreća i katastrofa. Prostor suvenirnice je zaključak svih cjelina u kojima se mogu kupiti razni autentični suveniri ovoga kraja.

Ovim rješenjem dobivena je svojevrsna  turistička atrakcija koja osim što posjetitelje educira i informira, pruža cijelokupni osjetilni doživljaj mjesta Raša svjetlosnim, zvučnim i vizualnim efektima multimedije.

Impressum
Udruženje hrvatskih arhitekata

Trg bana J. Jelačića 3/1
Zagreb 10 000-HR

MB 03223043
OIB 01152649489

IBAN HR6223600001101550751

tel  +385 (1) 48 16 151
fax  +385 (1) 48 16 197
tajnistvo@uha.hr
Radno vrijeme 9-17h

Copyright © UHA