Godišnja izložba
ostvarenja

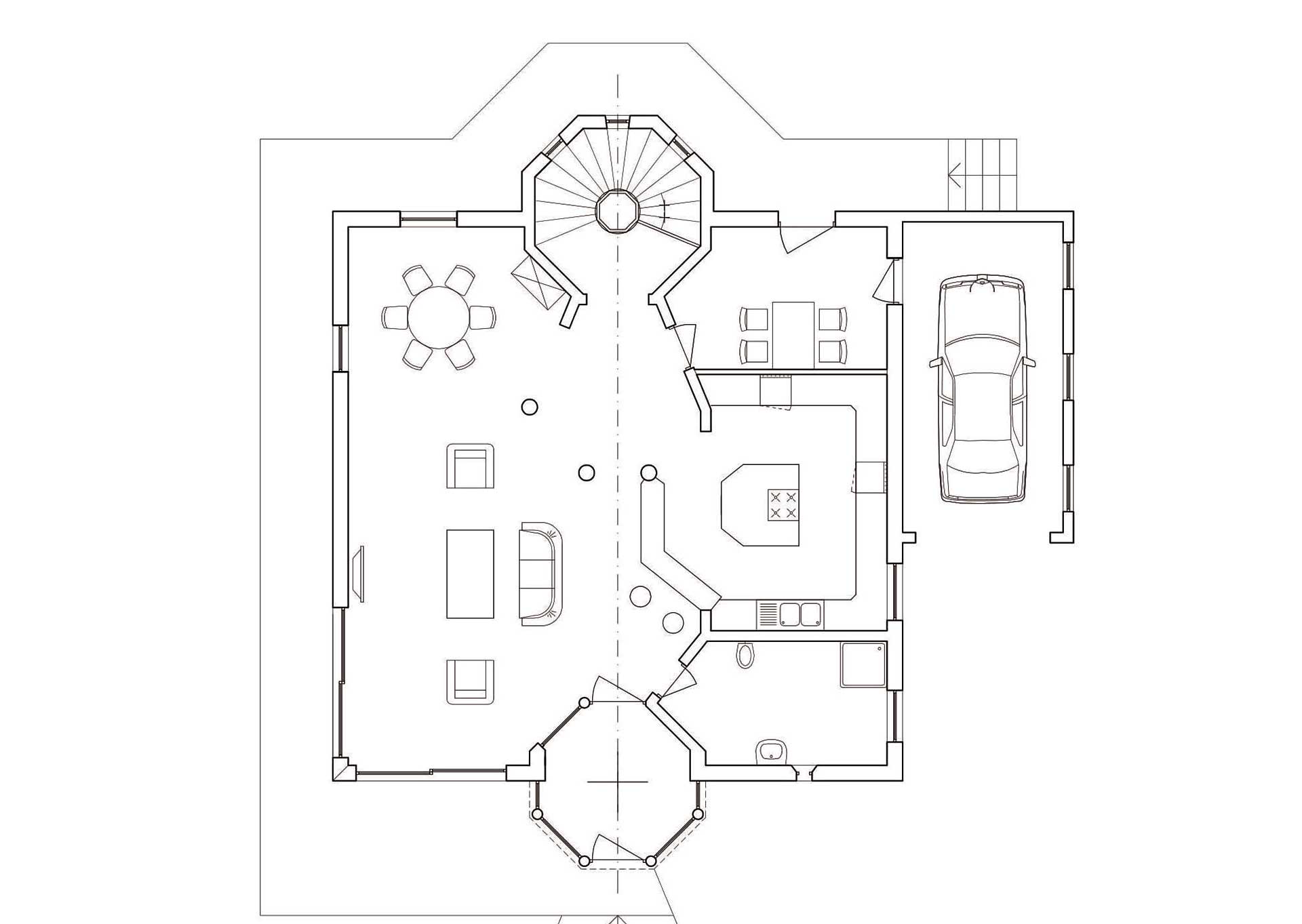
Obiteljska kuća - Veliko Trgovišće

Foto: Ati Salvaro
Foto: Ati Salvaro
Foto: Ati Salvaro
Foto: Ati Salvaro
Foto: G.Š.
Foto: Ati Salvaro

Autori:

Ati Salvaro

Tvrtka:

Projektni tim:

Suradnici:

Investitor:

G.Š.

Izvođač:

G.Š.

Godina početka projektiranja:

2010

Godina dovršetka projektiranja:

2011

Godina početka gradnje:

2012

Godina dovršetka gradnje:

2020

Površina obuhvata:

1650 m2

Ukupna tlocrtna površina:

300 m2

Ukupna vrijednost investicije bez PDV-a:

1.000.000

Program / vrsta:

Stanovanje

LOKACIJA:

Veliko Trgovišće

O projektu (tekst autora):

Zagorje je puno dvoraca, kurija i hiža. Gospodska kuća osovljena je kvadratno, na 11x11 metara. Iz osnovnog kvadra ističu se dva nasuprotna poluosmerokutna rizalita, koji napinju os bipolarne kuće, pravcem jugoistok-sjeverozapad. U prednjem polu je glavni ulaz u kuću, gdje je formiran osmerokutni ulazni hall. Na suprotnoj strani, simetrično, je stubište, sazdano samo od gazišta iz punog drva. Nad osnovnim volumenom je zamišljen piramidalni krov. Piramida najbolje čuva pod sobom, što su znali još stari Egipćani. Izveden je pak krov s minisljemenom. U prizemlju je američki integrirani dnevni boravak, blagovanje i kuhinja sa šankom. Kružni nosivi stupovi u prostoru omogućuju prostranost bez zidova, i perceptivnu igru njihovog prividnog razmicanja, koje se doživljava kretanjem kroz prostoriju. Dnevni boravak je povezan izravno s okolnim terenom pokretnim staklenim stijenama. Iznad ulaznog prostora na katu je jacuzzi, s pogledom na Medvednicu. Rijetko kupaonice dobivaju pogled iz kade u obiteljskim kućama, i to panoramski. Namjera je bila tvorba mjesta za tjelesnu i vizualnu ugodu. Osim spavaonica na katu je i garderobna soba s okom Polifema. Otvori su različitih širina, od sasvim uskih, u toaletima, do velikih kliznih staklenih ploha, koje omogućuju izravno povezivanje s okolnim terenom. Uski kupaonski prozori šire se u koso debljinom zida, kako je nekad bilo normalno, da bi dostavili što više svjetla. Potezi uspravnih i vodoravnih traka uvučeni su i obojani tamno, rasčlanjujući pročelja u željenom ritmu Garaža je posebni pridodani volumen, povezana toplom vezom s kućom čiji je dio.

 

Impressum
Udruženje hrvatskih arhitekata

Trg bana J. Jelačića 3/1
Zagreb 10 000-HR

MB 03223043
OIB 01152649489

IBAN HR6223600001101550751

tel  +385 (1) 48 16 151
fax  +385 (1) 48 16 197
tajnistvo@uha.hr
Radno vrijeme 9-17h

Copyright © UHA