Godišnja izložba
ostvarenja

Kuća Frankola

Foto: Aleksandar Paris
Foto: Aleksandar Paris
Foto: Aleksandar Paris
Foto: Aleksandar Paris
Foto: Aleksandar Paris
Foto: Aleksandar Paris

Autori:

Aleksandar Paris

Tvrtka:

A.P.-ARH. d.o.o.

Projektni tim:

Suradnici:

Esmeralda Kresina , Katja Bobanović

Investitor:

Marino Frankola

Izvođač:

PMP Čakovec

Godina početka projektiranja:

2013.

Godina dovršetka projektiranja:

2015.

Godina početka gradnje:

2015.

Godina dovršetka gradnje:

2020.

Površina obuhvata:

1024 m2

Ukupna tlocrtna površina:

557 m2

Program / vrsta:

Stanovanje

LOKACIJA:

Volosko

O projektu (tekst autora):

KUĆA FRANKOLA - VOLOSKO

 

 

Potrebe investitora:

Kuća s tri stambene jedinice. Dvije manje za prodaju i jedna komforna za investitora.

 

KONCEPT

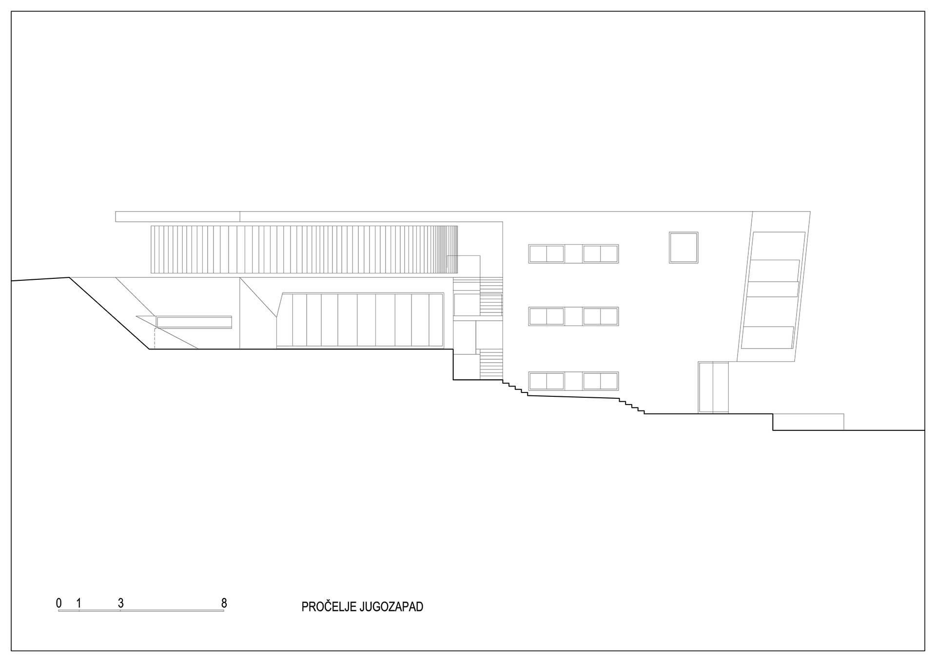
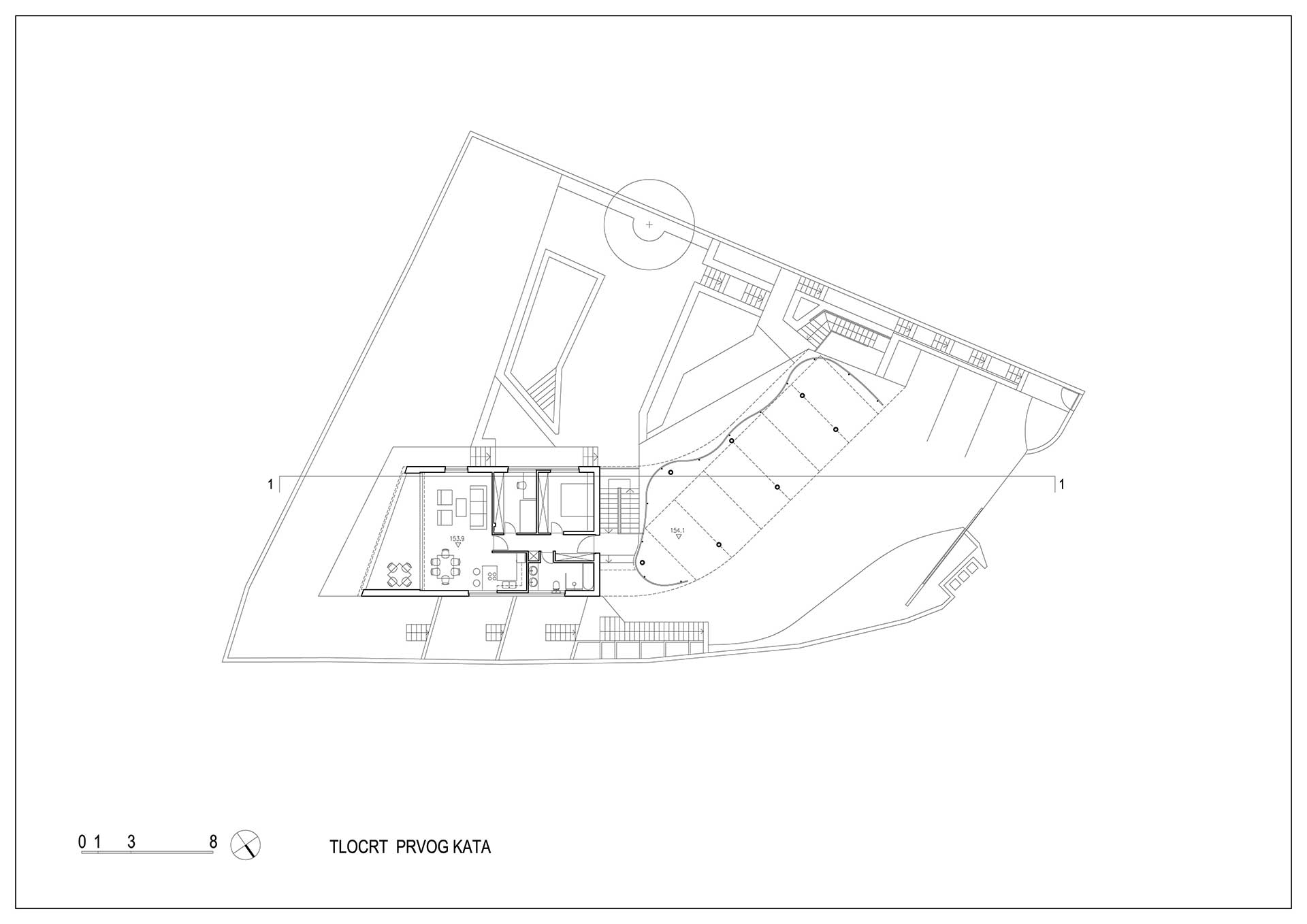
Čestica je u padu od jugozapada prema jugoistoku. Visinska razlika iznosi cca 6m.

Pristup čestici je s gornje strane. Postojeći teren je podzidima podijeljen u 7 kaskada, visinske razlike od cca 75cm.

 

Projektom se pokušalo “pohvatati” neke od postojećih kaskada i uklopiti se u tu kaskadnu strukturu, ali tako da svaka stambena jedinica dobije maksimalno intiman vanjski prostor, a isto tako da svaka stambena jedinica dobije što kvalitetniju vizuru na Kvarner. Investitor je inzistirao na kontaktu s terenom i na zajedničkom prostoru s bazenom, koji se “dogodio” u centru čestice. Kako bi se to uspjelo ostvariti, promet u mirovanju je morao biti riješen što bliže ulazu, u protivnom bi se čestica trošila na “taracanje” komunikacijama i manipulativnim prostorom za vozila.

Rezultat navedenih datosti i zahtjeva je taj da je na najvišoj etaži smješten parking za osam vozila (šest natkrivenih) i manji stan s najboljim pogledom, ali bez izravnog kontakta s terenom. Ispred parkinga vijuga prozračna barijera, koja blokira vizualni kontakt parkinga i intimnog središnjeg prostora dvorišta. Na srednjoj etaži je smješten investitorov stan koji je najkomforniji, isto tako s dobrim pogledom iz dnevne sobe i iz spavaćeg trakta, s najboljim kontaktom s terenom i najboljim prisupom zajedničkom vanjskom prostoru uz bazen. U najnižoj etaži smješten je treći, ponovno skromniji stan s najlošijim pogledom, ali jednako dobrim kontaktom s terenom kao i srednji stan.

 

ENERGETSKI ASPEKT I MATERIJALI

Građevina je zamišljena kao objekt niske energetske potrošnje. Vanjski zidovi su izvedeni od kvalitetne opeke i armiranog betona obloženi Etics sistemom debljine min 15cm. Staklene površine izvedene su od trostrukog low-e stakla. Stropne konstr. su armiranobetonske. Kaskade su obložene lokalnim kamenom.

Sistem grijanja i hlađenja izveden je u stropnim kasetnim elementima iznad sp. Stropova i u podu. Izvor energije je toplinska pumpa sistem voda-zrak.

Impressum
Udruženje hrvatskih arhitekata

Trg bana J. Jelačića 3/1
Zagreb 10 000-HR

MB 03223043
OIB 01152649489

IBAN HR6223600001101550751

tel  +385 (1) 48 16 151
fax  +385 (1) 48 16 197
tajnistvo@uha.hr
Radno vrijeme 9-17h

Copyright © UHA