Godišnja izložba
ostvarenja

Stambena zgrada Gajeva/Gupčeva, Zabok

Foto: Jure Živković
Foto: Jure Živković
Foto: Jure Živković
Foto: Jure Živković
Foto: Jure Živković
Foto: Jure Živković

Autori:

Marin Mikelić
Tomislav Vreš

Tvrtka:

MVA / Mikelić Vreš Arhitekti d.o.o.

Projektni tim:

Marin Mikelić , Tomislav Vreš , Anita Kovačić

Suradnici:

Medina Ćevapović , Hana Dašić , Roko Marušić , Jelena Ćaćić , Dragan Garić / Brod Konzalting d.o.o - projekt konstrukcije , Goran Tomek / TT inženjering d.o.o. - strojarski projekti , Tomislav Fistrić / Fistel Konzalting d.o.o. - elektrotehnički projekti , Nikola Cindrić / Otis dizala d.o.o. - projekt dizala , Andrea Milardović / Krešo Geo d.o.o. - projekt zaštite građevinske jame , Dunja Šprem Banović / Zagorje Pro-Kon d.o.o. - projekt cestovnog priključka , Marko Mlinarić / Moja Međa d.o.o. - geodetski projekt , Željko Mužević / Flamit d.o.o. - elaborat zaštite od požara

Investitor:

MDK Građevinar d.o.o.

Izvođač:

MDK Građevinar d.o.o.

Godina početka projektiranja:

2019.

Godina dovršetka projektiranja:

2019.

Godina početka gradnje:

2019.

Godina dovršetka gradnje:

2020.

Površina obuhvata:

1.818 m2

Ukupna tlocrtna površina:

4.585 m2

Program / vrsta:

Stanovanje

LOKACIJA:

Zabok

O projektu (tekst autora):

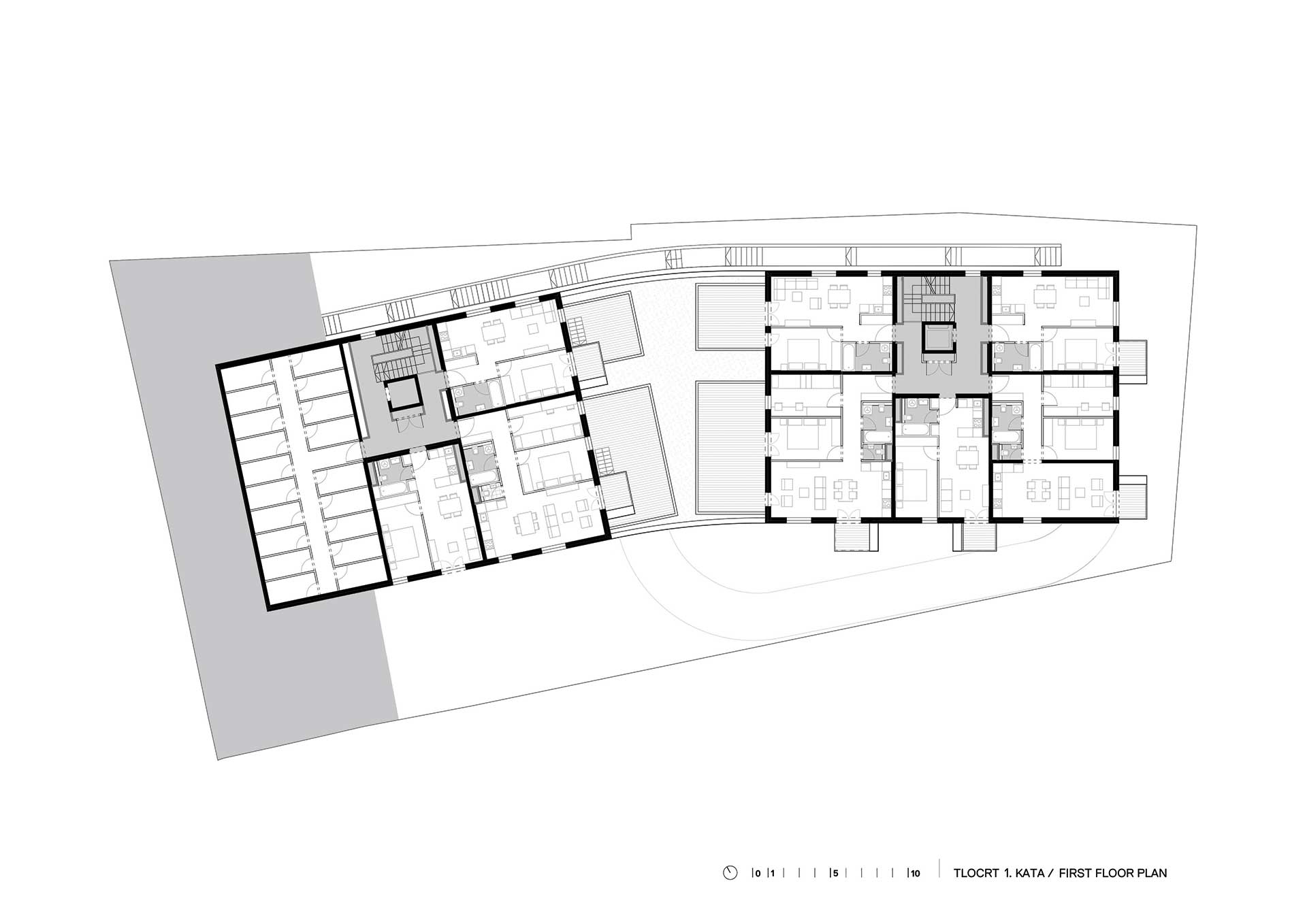
Stambena zgrada s 45 stanova nalazi se na strmoj parceli razapetoj između dvije ulice u samom središtu grada Zaboka. 

Opsežan program organiziran je u tri cjeline: dva odvojena stambena volumena povezuje djelomično ukopana baza s garažom i servisnim prostorima. Stambeni volumeni visinski su izmaknuti i pristupačni direktno s dviju obodnih prometnica. Ulazi smješteni na dvije razine međusobno su povezani vanjskim stubištem koje se proteže duž cijelog istočnog pročelja zgrade i postaje nova, prijeko potrebna javna pješačka komunikacija.

Karakteristična stambena etaža sastoji se od pet stanova okupljenih oko komunikacijske jezgre. Stanovi su kompaktni i fleksibilni – unutar stana nema konstruktivnih zidova, servisne prostorije grupirane su uz zajedničke komunikacije, a uz pročelje se nižu prostori za boravljenje i spavanje. Zadnja etaža sadrži penthouse stanove okružene prostranom krovnom terasom. 

Temu fleksibilnosti podržava i oblikovni koncept – izduženi vertikalni otvori omogućuju tlocrtne varijacije i naknadne izmjene prostorne organizacije unutar stanova. 

Pojavnost zgrade obilježena je alteriranjem pozicija otvora i balkona. Sama materijalizacija, koja se temelji na vertikalnom profiliranju fasadne žbuke, iskaz je stava da se uz malo dodatnog truda sa 'običnim' i 'svakodnevnim' materijalom može (i mora) napraviti više.

Impressum
Udruženje hrvatskih arhitekata

Trg bana J. Jelačića 3/1
Zagreb 10 000-HR

MB 03223043
OIB 01152649489

IBAN HR6223600001101550751

tel  +385 (1) 48 16 151
fax  +385 (1) 48 16 197
tajnistvo@uha.hr
Radno vrijeme 9-17h

Copyright © UHA