Godišnja izložba
ostvarenja

POS Vis

Nominacija za nagradu Drago Galić 2022.

Foto: Ante Mardešić
Foto: Ante Mardešić
Foto: Ante Mardešić
Foto: Ante Mardešić
Foto: Ante Mardešić
Foto: Ante Mardešić

Autori:

Jani Mardešić

Tvrtka:

a+u

Projektni tim:

Ante Mardešić , Jani Mardešić , Mate Acalinović

Suradnici:

Darko Fadić / Tredecim d.o.o. (projektant konstrukcije i fizike zgrade) , Ante Mustapić / Volt-ing d.o.o. (projektant elektroinstalacija) , Ivo Žuvela / Tub d.o.o. (projektant vodovoda i kanalizacije) , Vlado Nigojević / Tub d.o.o. (projektant termoinstalacija) , Ivica Vidjak / Sektor F d.o.o. (elaborat zaštite od požara)

Investitor:

Agencija za pravni promet i posredovanje nekretninama (APN)

Izvođač:

Tehno-elektro d.o.o.

Godina početka projektiranja:

2016.

Godina dovršetka projektiranja:

2017.

Godina početka gradnje:

2020.

Godina dovršetka gradnje:

2022.

Površina obuhvata:

2.697 m2 m2

Ukupna tlocrtna površina:

1.346 m2 m2

Program / vrsta:

Stanovanje

LOKACIJA:

Vis

Obrazloženje stručnog žirija:

"Slika s mora presudna je za gradove na obali. Izuzetno prirodno okruženje, određeno morem, topografijom i vegetacijom, izgradnjom se može unaprijediti ili radikalno narušiti. Nažalost, svjedoci smo brojnih recentnih urbanističkih i arhitektonskih realizacija koje samoljubivo ili nezainteresirano nepovratno remete prostor i kulturu obalnih mjesta i gradova. Iskaču iz mjerila, soliraju rasporedom masa, materijala i boja, unose kontraste, a da pritom ne stvaraju nove kvalitete. Više odnose nego donose prostoru u koji ulaze. Ovaj primjer višestambene zgrade u Viškom portu, suprotno tim učestalim pojavama, radi sve da se uklopi u gustoću, strukturu, kolorit i ritam naselja, a da pritom ne izgubi vlastiti suvremeni integritet. Pronalazi arhitektonsku formulu kojom stvara nove, dosad u tom prostoru nekorištene volumene i uspješno ih uklapa u kontekst. Razdvaja opsežan program u tri odvojena i izmaknuta volumena. Strukturom krovova dodatno usitnjava dobivene mase. Bojom i oblikom odvaja bijelu dvoetažnu bazu od crvenog nadgrađa, što odgovara bojama okolnih kamenih pročelja i krovova obloženih kupama. Stvara središnji zajednički pješački prostor sličan takvima u povijesnom dijelu naselja. Programski predstavlja iznimku u krajoliku opterećenom apartmanskim blokovima i vilama koje se pretežno danas grade na otocima. Poticana stambena izgradnja pruža mogućnost pristojnog stanovanja za ‘obične’ građane. Bez toga, oni bi, ako već nemaju vlastite nekretnine, bili osuđeni na supstandardno življenje ili suočavanje s nedohvatljivim cijenama stanova koje određuju turizam i investicije u nekretnine. Zanimljivo je da se takva socijalna stanogradnja, koja je, kako znamo, financijski strogo ograničena, uspijeva kvalitetom svoje arhitekture uzdignuti iznad razine komercijalnih projekata u svojoj okolini. Strmi teren zahtjevne sjeverne orijentacije uvjetovao je stvaranje niza terasa i vrtova otvorenih zajedničkom korištenju, što je prilika za interakciju među susjedima. Vegetacija u tim vrtovima tek treba upotpuniti ambijent sklopa i dodatno doprinijeti njegovom uklapanju u sliku Visa s mora." Dinko Peračić

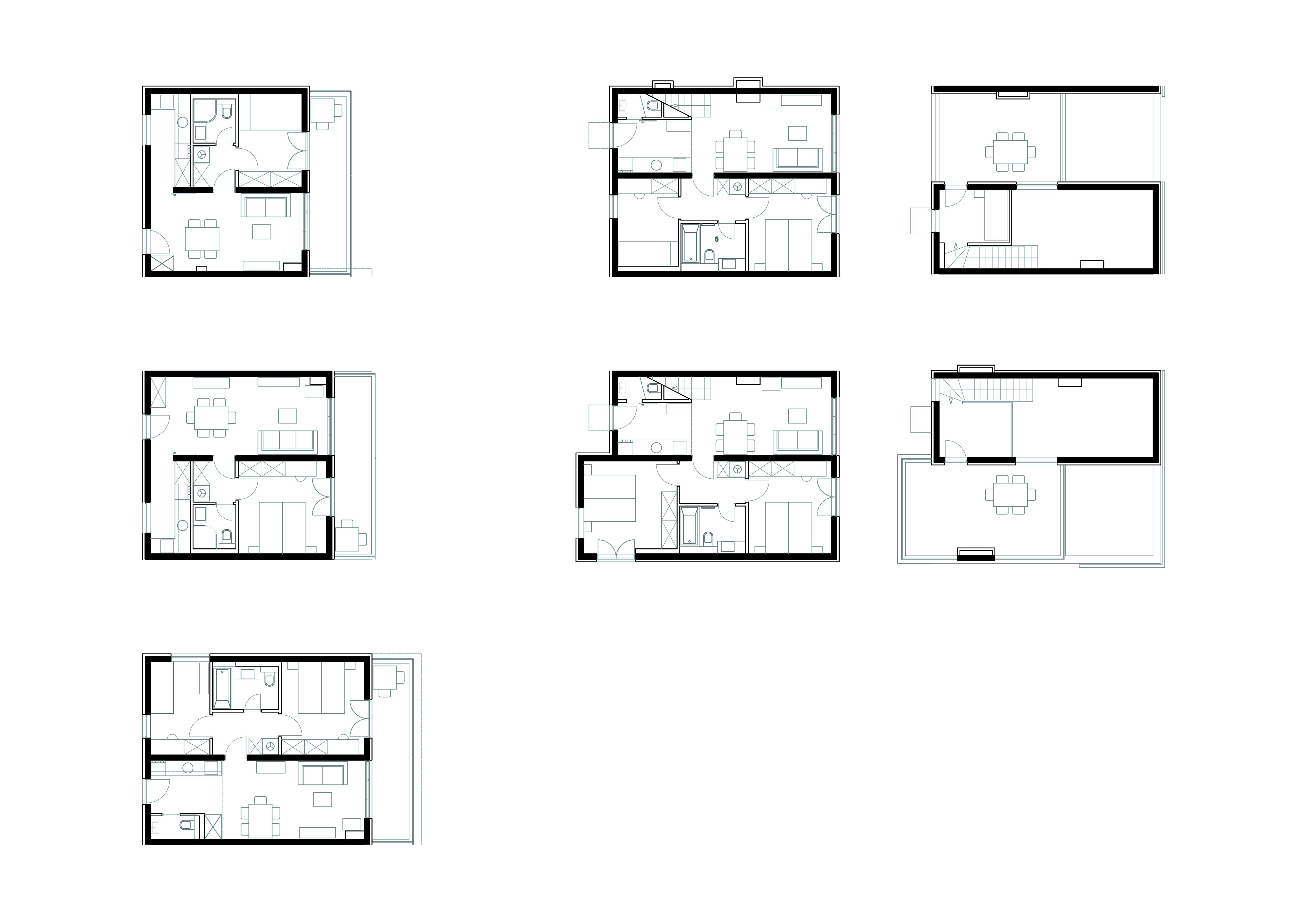
O projektu (tekst autora):

Građevine su smještene između zaobilaznice i rive u gradu Visu. Pješačka ulica čini centralnu os na parceli oko koje su grozdoliko smještene zgrade te ih povezuje s parkiralištem. Na jakom postamentu visine dvije etaže postavljeni su razvedeni volumeni drugog kata, potkrovlja i vanjskih spremišta. Ritam jednostrešnih i ravnih krovova povećava dinamiku razvedenih volumena te približava građevine mjerilu dalmatinskog grada. Jednostrešni krovovi imaju isti nagib kao i teren - 18 stupnjeva - kako bi se zgrade i topološki uklopile u kontekst. Jasna distinkcija monumentalnog i razvedenog naglašena je različitim bojama. Glavni pogled, prema sjeveru i uvali grada, puca na poluotok Prilovo, nekada centar rimske Isse, sada crkvu Sv. Jerolima i groblje uz franjevački samostan. S juga se na postamentu formira privid dalmatinske ulice katnosti P+1 sa zajedničkim terasama, te vanjska stubišta koja su ujedno i svjetlici.

Impressum
Udruženje hrvatskih arhitekata

Trg bana J. Jelačića 3/1
Zagreb 10 000-HR

MB 03223043
OIB 01152649489

IBAN HR6223600001101550751

tel  +385 (1) 48 16 151
fax  +385 (1) 48 16 197
tajnistvo@uha.hr
Radno vrijeme 9-17h

Copyright © UHA