Godišnja izložba
ostvarenja

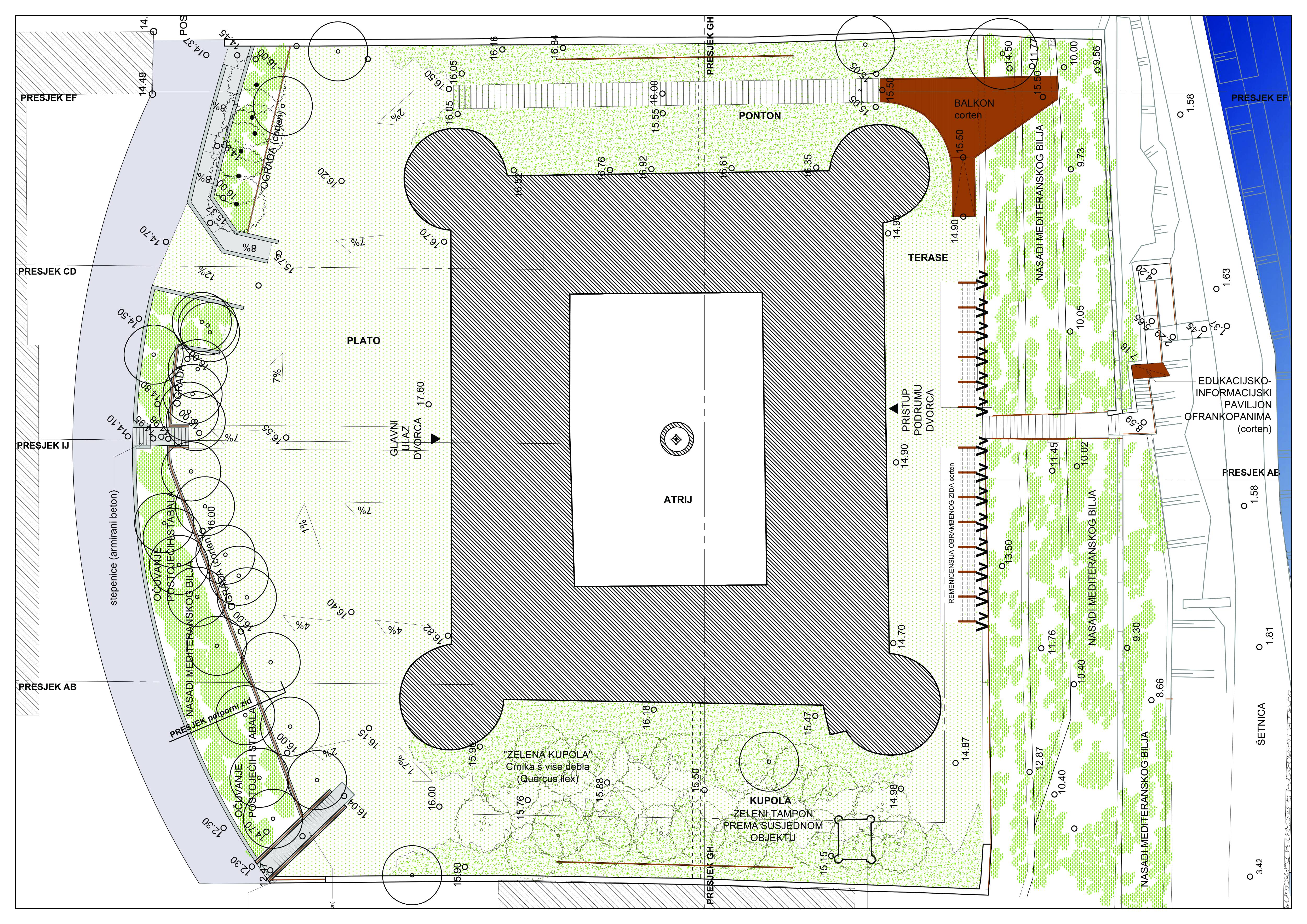
Uređenje okoliša dvorca Nova Kraljevica

Foto: Francois Vahe
Foto: Francois Vahe
Foto: Francois Vahe
Foto: Francois Vahe
Foto: Francois Vahe
Foto: Francois Vahe

Autori:

Krešimir Rogina
Francois Vahé

Tvrtka:

R/INovacija

Projektni tim:

Želimir Frančišković / MAX-ing d.o.o.

Suradnici:

Bernarda Ivančan / R/INovacija d.o.o.

Investitor:

Grad Kraljevica

Izvođač:

Fidal d.o.o.

Godina početka projektiranja:

2018.

Godina dovršetka projektiranja:

2022.

Godina početka gradnje:

2021.

Godina dovršetka gradnje:

2022.

Površina obuhvata:

5040 m2

Ukupna tlocrtna površina:

5040 m2

Program / vrsta:

Kultura
Turizam
Javni prostor

LOKACIJA:

Kraljevica

O projektu (tekst autora):

U sklopu projekta Kulturno-turističke rute „Putovima Frankopana“, uređenje okoliša dvorca Nova Kraljevica je bila najveća komponenta. Projekt je podijeljen na četiri zone, uređenje: platoa, terasa, pontona i zelene kupole. Prijedlog je sadržavao četiri rješenja s četiri različite atmosfere za četiri pročelja dvorca. Ideja pristupnog platoa je bila stvoriti veliki otvoreni prostor za događanja redefinirajući identitet prostora uz maksimalno poštivanje konfiguracije postojećeg terena sa zadržavanjem postojeće visoke vegetacije. Usmjeravajući i zadržavajući vizure prema moru planiran je ponton na kraju kojeg je smješten balkon ponad mora. Uz ponton su planirani edukacijsko-informacijski zidovi od kortena. Između dvorca i obale planirano je uređenje terasa s rekonstrukcijom stubišta i izgradnjom manjeg paviljona. Oko fasada dvorca koje nisu orijentirane prema moru planirana je zelena kupola stvaranjem koridora drveća oko dvorca. Paralelno uz zapadno pročelje dvorca planiran je manji model dvorca. U sklopu uređenja okoliša dvorca Nova Kraljevica sačuvani su svi povijeni elementi te su izvedeni novih armirano betonski potporni zidovi, formirana je ulazna rampa, te terasa uz postojeće visoko zelenilo, uređen je ulazni plato, kao i pješačke staze i terase. Nadalje, uređene su zelene površine na bočnim stranama dvorca i terasama prema moru. U okoliš su postavljeni novi arhitektonski elementi izrađeni od kortena.

Impressum
Udruženje hrvatskih arhitekata

Trg bana J. Jelačića 3/1
Zagreb 10 000-HR

MB 03223043
OIB 01152649489

IBAN HR6223600001101550751

tel  +385 (1) 48 16 151
fax  +385 (1) 48 16 197
tajnistvo@uha.hr
Radno vrijeme 9-17h

Copyright © UHA