Godišnja izložba
ostvarenja

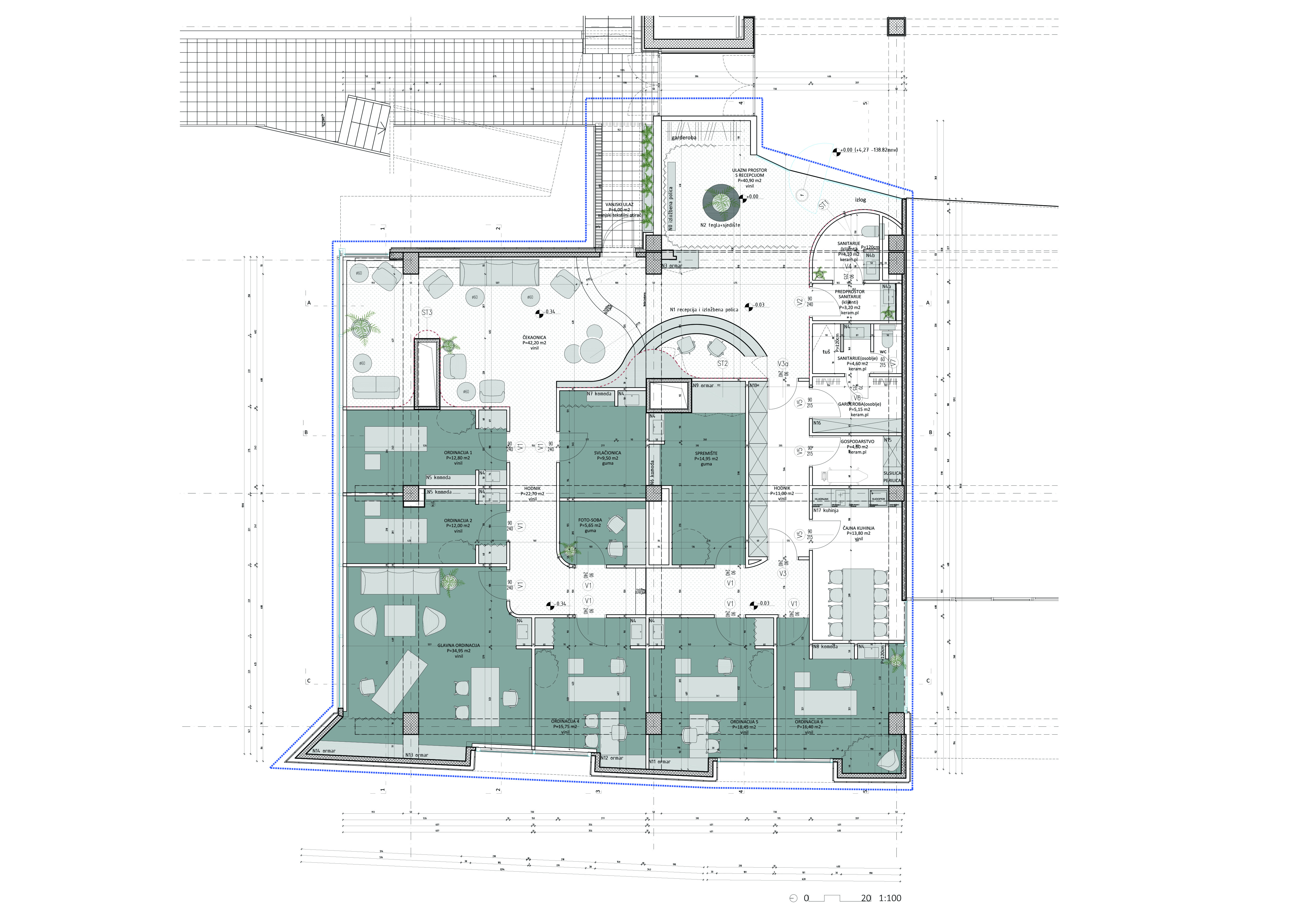
Uređenje Poliklinike Milojević

Foto: Bosnić+Dorotić
Foto: Bosnić+Dorotić
Foto: Bosnić+Dorotić
Foto: Bosnić+Dorotić
Foto: Bosnić+Dorotić
Foto: Bosnić+Dorotić

Autori:

Andrea Hržić Šesnić

Tvrtka:

Arhitektonski atelier Hržić

Projektni tim:

Iva Prtenjača , Ana-Marija Rem Šebek , Iva Štambuk Vlahović / Arhitektonski atelier Hržić

Suradnici:

Investitor:

Poliklinika Milojević

Izvođač:

Brux-grad d.o.o.

Godina početka projektiranja:

2021

Godina dovršetka projektiranja:

2022

Godina početka gradnje:

2021

Godina dovršetka gradnje:

2022

Površina obuhvata:

326 m2

Ukupna tlocrtna površina:

326 m2

Program / vrsta:

Interijer

Lokacija:

Zagreb

O projektu (tekst autora):

Ideja projekta Poliklinike bio je stvoriti ekskluzivni i jedinstven prostor koji će na najbolji način prezentirati duh poliklinike. To je ostvareno prostornom organizacijom, organskim formama i odabirom materijala kojima se postiže ugodan i funkcionalan prostor, koji zadovoljava sve medicinske kriterije.

Prostor se dijeli na ulazni prodajno-izložbeni prostor uokviren zavjesama koje diskretno koloriraju prostor u bojama brenda, prostor čekaonice s recepcijskim pultom i fotografskim kutkom, popraćen umjetninama i prirodnim zelenilom, te niz ordinacija i tretmanskih soba, specijalno projektiranih s obzirom na specifičnosti zahvata koje se u njima odvijaju.

Prostornom organizacijom odvojeni su trakt za zaposlenike od „javnog“ dijela poliklinike, te je jasno odijeljen reprezentativni i servisni dio prostora.

Svi prostorni elementi – zidne obloge, podovi, stropovi, zaštita od sunca i ugradbeni namještaj svojim različitim teksturama doprinose grafizmu unutar pretežno bijelog prostora.

Ekskluzivnost prostora postiže se unikatnim elementima opremanja prostora kroz signalizaciju hodnika i umjetnine na zidovima koje su osmišljene za ovaj prostor, ilustrirajući teksturu kože kroz pojedine tretmane, odnosno apstraktnim načinom prikazuju djelatnosti poliklinike. To je ostvareno kroz ideje dizajnera iz studija Šesnić & Turković, realizaciju akademskih umjetnika Matije Plavčića, Vjerana Palijana i umjetnika u staklu Jeronima Tišljara u suradnji s arhitekticom, te polikliniku čini svojevrsnom galerijom.

Impressum
Udruženje hrvatskih arhitekata

Trg bana J. Jelačića 3/1
Zagreb 10 000-HR

MB 03223043
OIB 01152649489

IBAN HR6223600001101550751

tel  +385 (1) 48 16 151
fax  +385 (1) 48 16 197
tajnistvo@uha.hr
Radno vrijeme 9-17h

Copyright © UHA