Godišnja izložba
ostvarenja

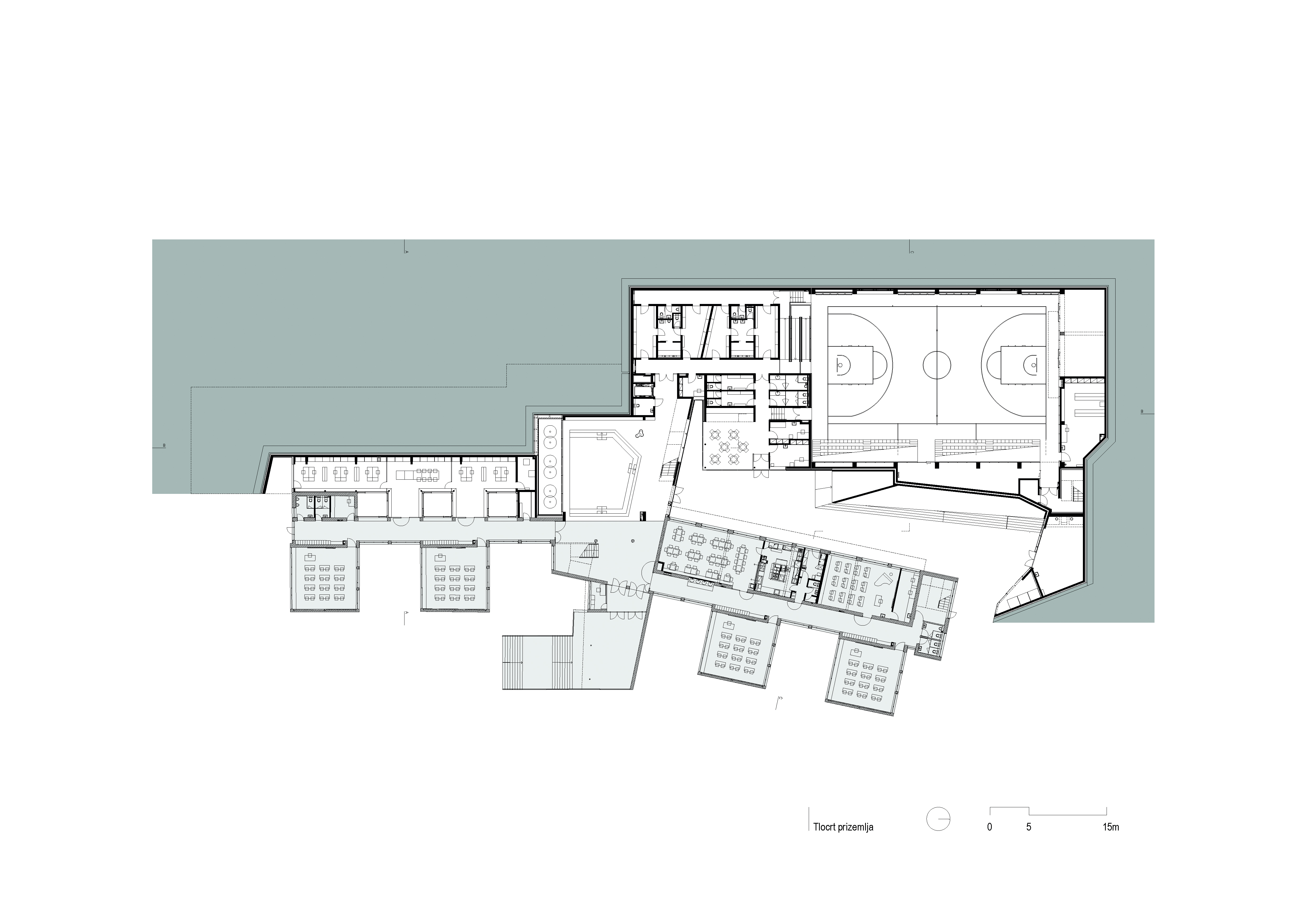
Rekonstrukcija i dogradnja OŠ Ksavera Šandora Gjalskoga u Zagrebu

Nominacija za nagradu Viktor Kovačić 2022.

Foto: Robert Leš
Foto: Robert Leš
Foto: Robert Leš
Foto: Robert Leš
Foto: Robert Leš
Foto: Robert Leš

Autori:

Zoran Boševski
[Boris Fiolić]
Željko Golubić

Tvrtka:

STUDIO BF

Projektni tim:

, Zoran Boševski , Željko Golubić , Kristina Marković , Kristina Škorić , Tena Žic , Ivan Ćurković , Anja Madunić , Danijela Soldo

Suradnici:

Ljubica Đenadija / Tradcon d.o.o. , Mihajlo Šprem / Šprem-Projekt d.o.o. , Mladen Stošić / Elektroplan d.o.o. , Marinko Zečević / Citara d.o.o. , Rok Pietri / Lift Modus d.o.o. , Ivan Matković / Institut IGH d.d. , Nevenka Dubrović / Solido d.o.o. , Goran Tončinić / CTP Projekt , Mateo Biluš / AKFZ Studio d.o.o. , Ana Horvath / Vrtlarica

Investitor:

Grad Zagreb

Izvođač:

Kamgrad d.o.o.

Godina početka projektiranja:

2007

Godina dovršetka projektiranja:

2012

Godina početka gradnje:

2020

Godina dovršetka gradnje:

2022

Površina obuhvata:

7.500m2 m2

Ukupna tlocrtna površina:

GBP 5081m2 m2

Ukupna vrijednost investicije bez PDV-a:

100 mil kn.

Program / vrsta:

Odgoj i obrazovanje

Lokacija:

Zagreb

Obrazloženje stručnog žirija:

"Mala paviljonska škola u Zagrebu arhitekta Željka Žlofa iz šezdesetih godina prošlog stoljeća, stiješnjena na strmom terenu između Mlinarske ulice s donje i Perivoja srpanjskih žrtava s gornje strane, uronjena je u zelenilo i svojim modernističkim arhitektonskim jezikom govori o tadašnjoj kulturi građenja institucija i društvenoj brizi za dobrobit djece i njihovo zdravlje. Suvremena dogradnja s ulice se nenametljivo skriva iza stare škole. Priljubljena uza stražnju fasadu postojeće zgrade, ugrađuje se u brdo projektantski i tehnički kompleksnim zahvatom. Radikalno transformira klasični edukativni prostor škole prevodeći ga u naše vrijeme. Uspostavlja složeni novi introvertirani svijet, u kojem perforacije svjetlarnika, atrija učionica i procijepi dvorišta oblikuju nove unutarnje prostore škole. Komunikacije brojnim proširenjima i otvaranjima prema društvenim i vanjskim prostorima omogućuju izvannastavno neformalno učenje u pretpostavljenoj cjelodnevnoj nastavi. Ovaj karakter ‘edukativnoga grada’ izvrstan je prostorni okvir za isprepletanje aktivnosti, istraživanja i dječjega nepropisanog prisvajanja prostora. Atmosfera dnevnog svjetla i fluidnosti prostora arhitektonski je naglašena upotrebom translucentnih materijala na stijenama pročelja čija suvremenost otvara dijalog s arhitekturom moderne. Iz introvertiranog prostora atrija i dvorišta učenici se penju na krovove škole gdje igrališta, terase i vrtovi postaju vidikovci prema gradu. Konačno, ova škola svoj karakter demokratične institucije i socijalnog aktivatora otkriva formirajući novu javnu komunikaciju preko školske parcele, koja prolazi između perivoja iznad i ulice ispod, a obogaćena je i predavaonicom na otvorenom." Vanja Rister

O projektu (tekst autora):

Osnovna škola Ksavera Šandora Gjalskoga izgrađena je 1961. godine prema projektu arhitekta Željka Žlofa (za biro APB – arhitekta Ive Geršića). Postojeća škola izgrađena je na umjetnom platou između Perivoja srpanjskih žrtava i Mlinarske ulice nakon opsežnih zemljanih radova s učionicama raspoređenima duž ulice po tipologiji češlja koje kao da slijede ritam susjednih obiteljskih kuća.

Projekt je rezultat prvonagrađenog natječajnog rada iz 2007. godine kojim je bilo potrebno ostvariti rekonstrukciju postojeće škole te dogradnju s četiri nove učionice, knjižnicom i dvodijelnom sportskom dvoranom s pratećim sadržajima kako bi se u školi mogla organizirati jednosmjenska nastava.

Na iznimno zahtjevnoj lokaciji sa strmom padinom i malom parcelom dogradnja se priljubljuje uz postojeću školu i ukapa u teren. Slijedeći prostornu logiku postojeće škole zadani program se raspoređuje oko niza atrija, svjetlika i dvorišta s ciljem stvaranja suvremenog edukativnog prostora koji s postojećom školom čini jedinstvenu cjelinu.

Budući da je novogradnja velikim dijelom ukopana u teren, pročelja se izvode od profilit stakla s translucentnom izolacijom kako bi se preko atrija u što većoj mjeri ostvario kontakt s nebom s ciljem stvaranja što ugodnijeg prostora za boravak djece i zaposlenika.

Činjenica da je prošlo 15 godina od projekta do realizacije govori koliko je arhitektura spora djelatnost i da treba na neki način preživjeti vrijeme.

Ono što možda čini ovaj projekt i danas relevantnim je to što se nastojalo stvoriti edukativni prostor koji stavlja u jednakoj mjeri naglasak na onaj formalni dio obrazovanja koji se odvija unutar učionice, kao i na sve one zajedničke prostore druženja i susreta, kako unutar tako i izvan zgrade; svi ti prostorni sklopovi u jednakoj mjeri sudjeluju u procesu obrazovanja.

Impressum
Udruženje hrvatskih arhitekata

Trg bana J. Jelačića 3/1
Zagreb 10 000-HR

MB 03223043
OIB 01152649489

IBAN HR6223600001101550751

tel  +385 (1) 48 16 151
fax  +385 (1) 48 16 197
tajnistvo@uha.hr
Radno vrijeme 9-17h

Copyright © UHA