Godišnja izložba
ostvarenja

Turistički informativni centar u Rastokama

Autori:

Brankica Petrović
Vladimir Petrović

Tvrtka:

ADF d.o.o.

Projektni tim:

Anamarija Rodak / ADF d.o.o.

Suradnici:

Investitor:

Turistička zajednica Grada Slunja

Izvođač:

Građevinski obrt Špelić

Godina početka projektiranja:

2016.

Godina dovršetka projektiranja:

2016.

Godina početka gradnje:

2019.

Godina dovršetka gradnje:

2021.

Površina obuhvata:

600 m2

Ukupna tlocrtna površina:

223 m2

Program / vrsta:

Turizam

Lokacija:

Slunj

O projektu (tekst autora):

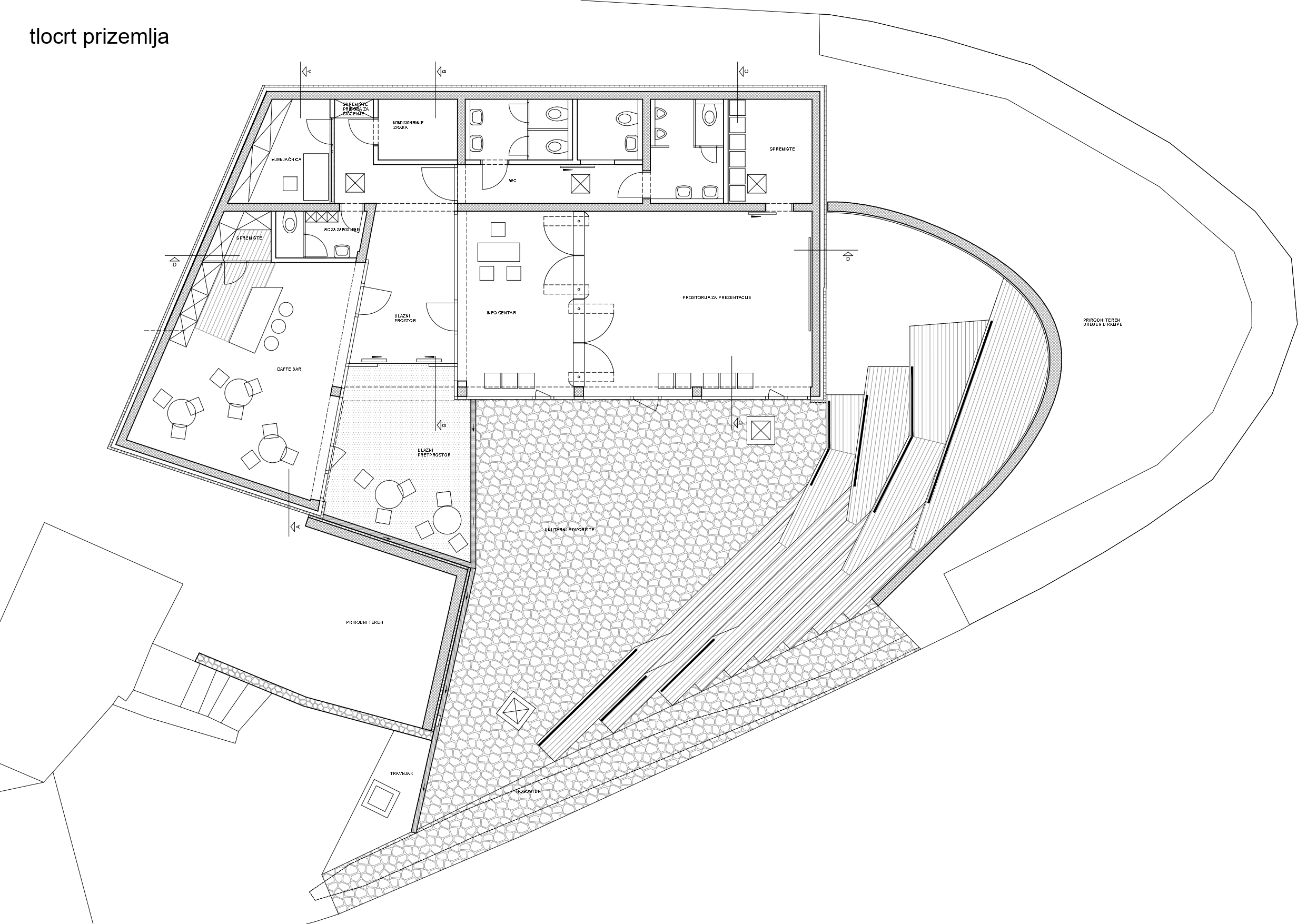
Planirana građevina je poslovne – turističko ugostiteljske namjene. Nalazi na ulazu u Donje Rastoke, kraj Slunja. Ideja projekta je diskretno uklopiti planiranu građevinu unutar prirodnog terena, tj. ukopati je pod zemlju prema konzervatorskim smjernicama bez žrtvovanja kvaliteta kao što su prirodno osvjetljenje i osunčanje, ventilacija te vizure prema Rastokama. Oblikovanjem ulaznog trga i unutarnjeg dvorišta omogućuju se navedene kvalitete, a istovremeno zadovoljava introvertan program konzervatorske podloge. Krov građevine uklopljen je u ozelenjene serpentine koje svojim oblikovanjem prate serpentinu kolnog prilaza i naglašavaju njen specifični oblik. Sama građevina sastoji se od tri osnovna sklopa: snack bara, informacijskog centra i javnog wc-a. Sklopovi su međusobno vezani natkrivenim ulaznim prostorom. Organizacijom sklopa omogućeno je samostalno funkcioniranje pojedinih jedinica neovisno o njihovom radnom vremenu. Kako je građevina ukopana u kosi teren, veći dio njenog volumena prekriven je nasipom zemlje, oblikovan u skladu s okolnim terenom i ozelenjen, a manji dio sjevernog volumena koji se izdiže iz kosine terena prekriven je ravnim ozelenjenim krovom. Izgradnja je započela 2019. godine, a završena je 2021. godine.

Impressum
Udruženje hrvatskih arhitekata

Trg bana J. Jelačića 3/1
Zagreb 10 000-HR

MB 03223043
OIB 01152649489

IBAN HR6223600001101550751

tel  +385 (1) 48 16 151
fax  +385 (1) 48 16 197
tajnistvo@uha.hr
Radno vrijeme 9-17h

Copyright © UHA