Godišnja izložba
ostvarenja

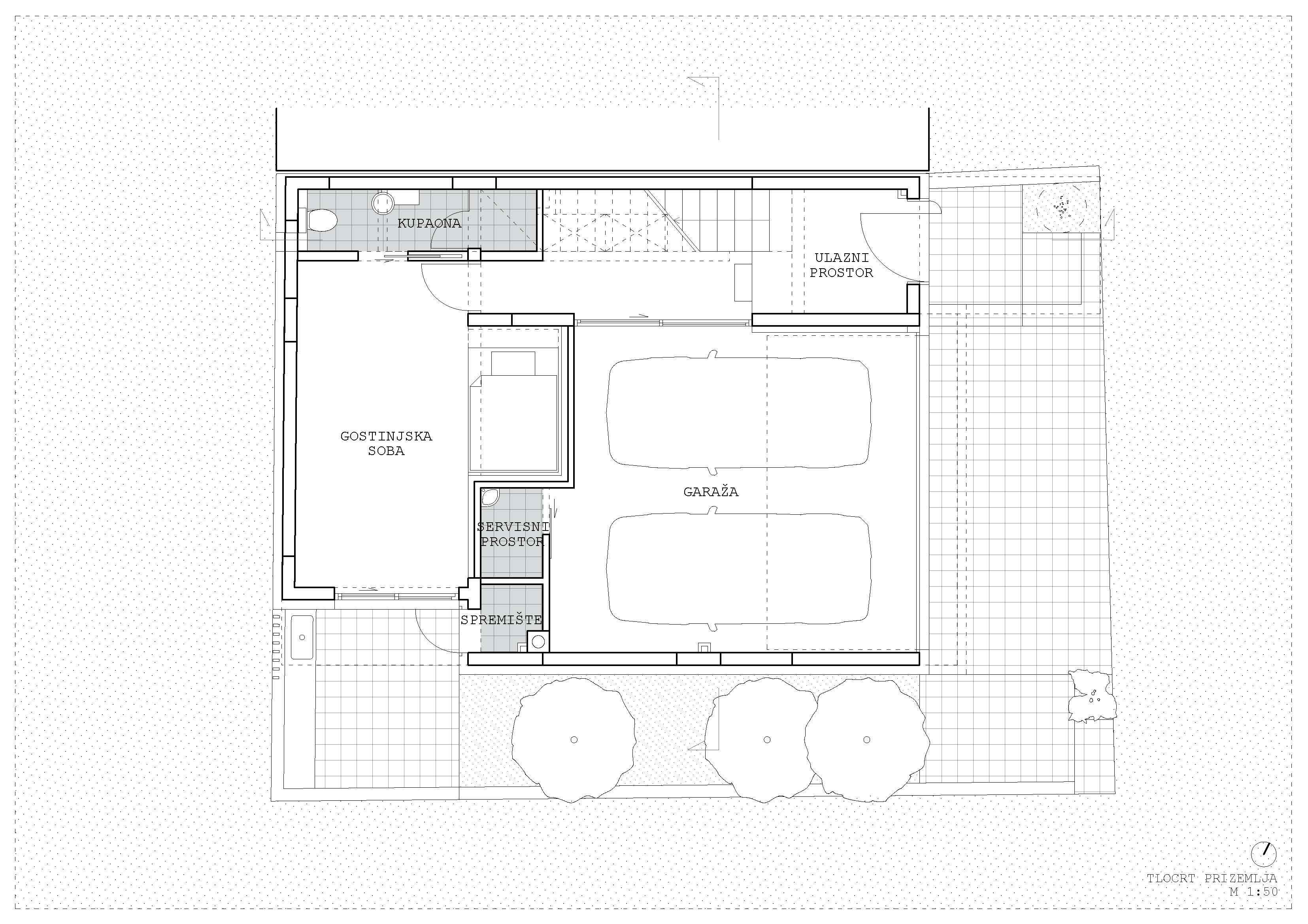
Kuća M

Foto: Eduard Dukić
Foto: Eduard Dukić
Foto: Eduard Dukić
Foto: Eduard Dukić
Foto: Eduard Dukić

Autori:

Sanja Leicher

Tvrtka:

ALTRANS d.o.o.

Projektni tim:

Sanja Leicher , Eduard Dukić / ALTRANS d.o.o.

Suradnici:

Ana Komadina , Luka Berić , Mate Božanić / ALTRANS d.o.o.

Investitor:

Izvođač:

Godina početka projektiranja:

2018

Godina dovršetka projektiranja:

2019

Godina početka gradnje:

2019

Godina dovršetka gradnje:

2021

Površina obuhvata:

134 m2

Ukupna tlocrtna površina:

87,9 m2

Ukupna vrijednost investicije bez PDV-a:

2 000 000

Program / vrsta:

Stanovanje

Lokacija:

Zagreb

O projektu (tekst autora):

Naručen je projekt za malu urbanu rezidenciju za četveročlanu obitelj koja se željela preseliti iz podsljemenske zone bliže centru grada, u ulicu Osredak 7. Parcela ima površinu od svega 134 m2, a kuća je položena na dvije međe – sjevernu i zapadnu. Dio južnog pročelja, sljedeći poziciju postojećeg objekta koji je uklonjen, je manje od tri metra udaljen od međe, dakle, mogućnost otvaranja prozora bila je vrlo ograničena. S obzirom na to da je trebalo pomiriti želju naručitelja za što većom ostvarenom površinom s kvantifikacijama GUP-a, izazov je bio pustiti u kuću dovoljno prirodnog svjetla. To se postiglo izvedbom velikog skylighta nad stubištem smještenim uz sjevernu među, koji je obiljem svjetla ozario sve tri etaže kuće. Činjenica male parcele i potrebe za parkingom minimizirala je zelene površine. “Predvrt” je reduciran na žardinjeru pred ulazom s posađenim bambusom koji, međutim, prodire kroz otvor u strehi, formirajući mali “zen” vrt u kojem se uživa iz dnevnog boravka na prvom katu. Završni sloj pročelja je slip opeka koja svojom bojom i teksturom emanira mirnoću, samozatajnost, pristojnost i, što je naručitelju bilo najvažnije, lijepo stari.

Impressum
Udruženje hrvatskih arhitekata

Trg bana J. Jelačića 3/1
Zagreb 10 000-HR

MB 03223043
OIB 01152649489

IBAN HR6223600001101550751

tel  +385 (1) 48 16 151
fax  +385 (1) 48 16 197
tajnistvo@uha.hr
Radno vrijeme 9-17h

Copyright © UHA