Godišnja izložba
ostvarenja

Studentska menza s paviljonima

Foto: Marius Sabo
Foto: Marius Sabo
Foto: Sandro Lendler
Foto: Sandro Lendler
Foto: Tjaša Kalkan
Foto: Tjaša Kalkan

Autori:

Vedran Pedišić
Antonija Milovac
Tanja Goleš
Iva Marjančević Vuksanić
Mladen Hofmann

Tvrtka:

SANGRAD d.o.o.

Projektni tim:

Suradnici:

Boris Baljkas / BALJKAS - PROJEKTI (konstrukcija) , Marijan Marcijuš / MBT Inženjering (elektroinstalacije) , Goran Tomek / TT INŽENJERING (strojarstvo) , Branimir Cindori / APIN projekt (sprinkler) , Josip Radeljić / INSPEKTING d.o.o. (ZOP) , Božo Soldo (geomehanika)

Investitor:

Sveučilište u Zadru

Izvođač:

Projektgradnja plus d.o.o.

Godina početka projektiranja:

2015

Godina dovršetka projektiranja:

2019

Godina početka gradnje:

2020

Godina dovršetka gradnje:

2022

Površina obuhvata:

3045 m2

Ukupna tlocrtna površina:

1780 (tlocrtna projekcija), 6700 m2 (ukupna površina svih etaža) m2

Program / vrsta:

Ostalo

Lokacija:

Zadar

O projektu (tekst autora):

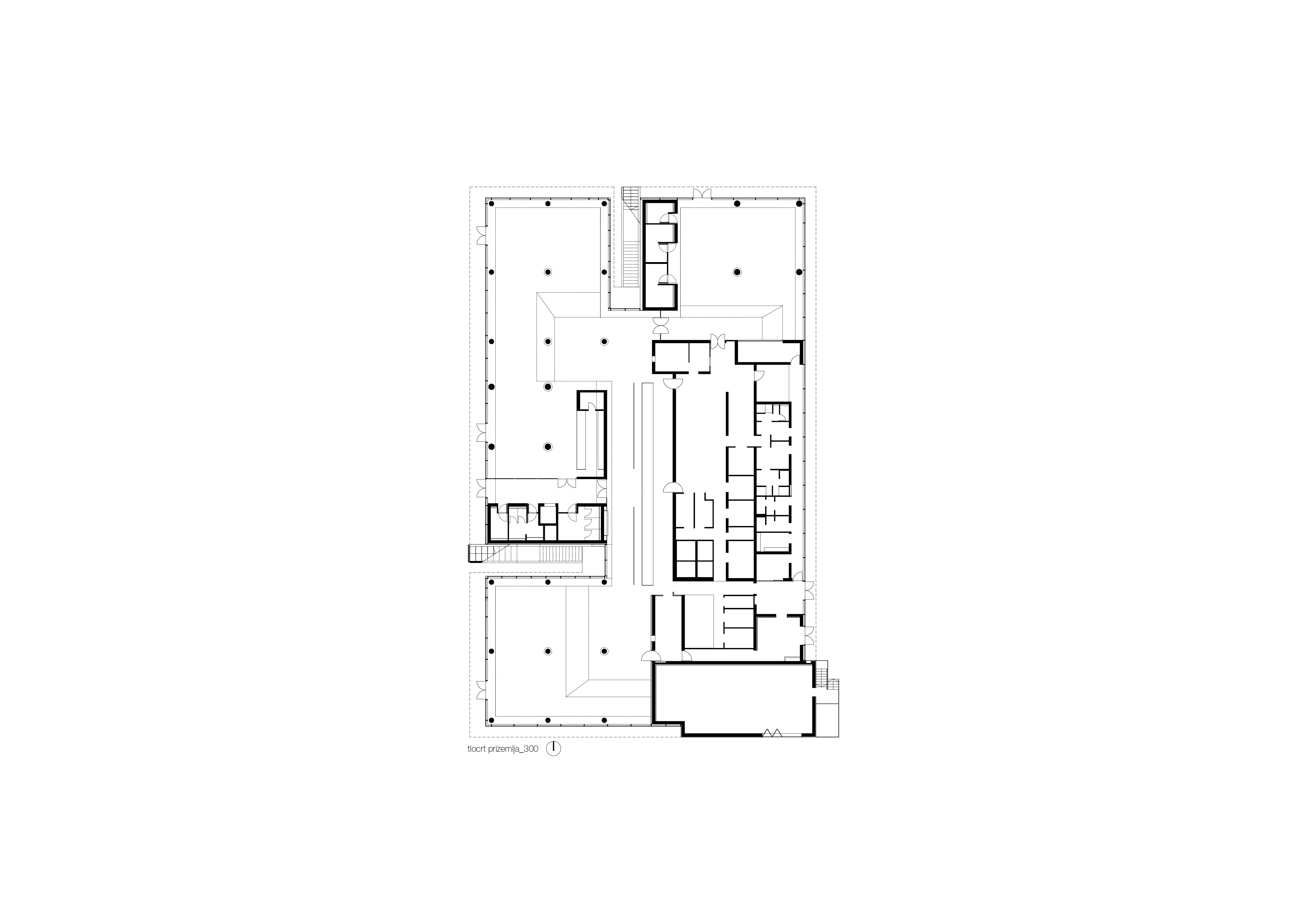
Studentska menza sa studentskim paviljonima sastoji se od tri funkcionalna dijela:

-prvi smješten u prizemlju je u funkciji studentske menze,

-drugi smješten na etažama od 1. do 5. je u funkciji studentskog smještaja, a

-treći smješten u podrumu sadrži tehničke prostore

 

U najvećem dijelu prizemlja građevine smješteni su prostori studentske menze podijeljeni u dva samoposlužna restorana, jedan a la carte restoran i slastičarnicu te prostor kuhinje tj. prostor za pripremu hrane.

 

Sve etaže od 1. do 5. sadrže prostore tj. sobe za smještaj studenata. Uz sobe predviđeni su I dodatni sadržaji: prostori za odmor studenata, čajne kuhinje, praonice I spremišta posteljine te ured uprave I portirnica.

Pristup u smještajne jedinice riješen je preko krovne plohe nad prizemljem na koju se dolazi vanjskim stubištima odnosno dizalom s nivoa terena.

Uz ulazne prostore vezani su zajednički prostori predviđeni za studente. Orijentacija soba slijedi logiku slobodnih vizura unutar kompozicije dijaloga triju paviljona. Vertikalne komunikacije u volumenima slijede logiku jednokrakih stubišta i kružne komunikacije na relaciji stubište – hodnik – sobe.

 

Funkcionalna podjela prostora u građevini jasno je naznačena u vanjskom oblikovanju volumena građevine.

Katovi građevine raspoređeni su u tri zasebna volumena, tzv. paviljona opet u formi kvadrata.

Pročelje prizemlja građevine najvećim dijelom je ostakljena konstrukcija. Pročelja katova su čvrste, pune bijele plohe.

Paradoks „teškoga i masivnoga na laganom i prozračnom“ glavna je tema oblikovanja građevine koja je onda dosljedno provedena kroz sve element vanjskog oblikovanja.

Odabir materijala oslanja se i na likovnost koja prilazi iz okoliša, iz tradicije i kulturnog standarda. Princip je jednoznačan.

Impressum
Udruženje hrvatskih arhitekata

Trg bana J. Jelačića 3/1
Zagreb 10 000-HR

MB 03223043
OIB 01152649489

IBAN HR6223600001101550751

tel  +385 (1) 48 16 151
fax  +385 (1) 48 16 197
tajnistvo@uha.hr
Radno vrijeme 9-17h

Copyright © UHA