Godišnja izložba
ostvarenja

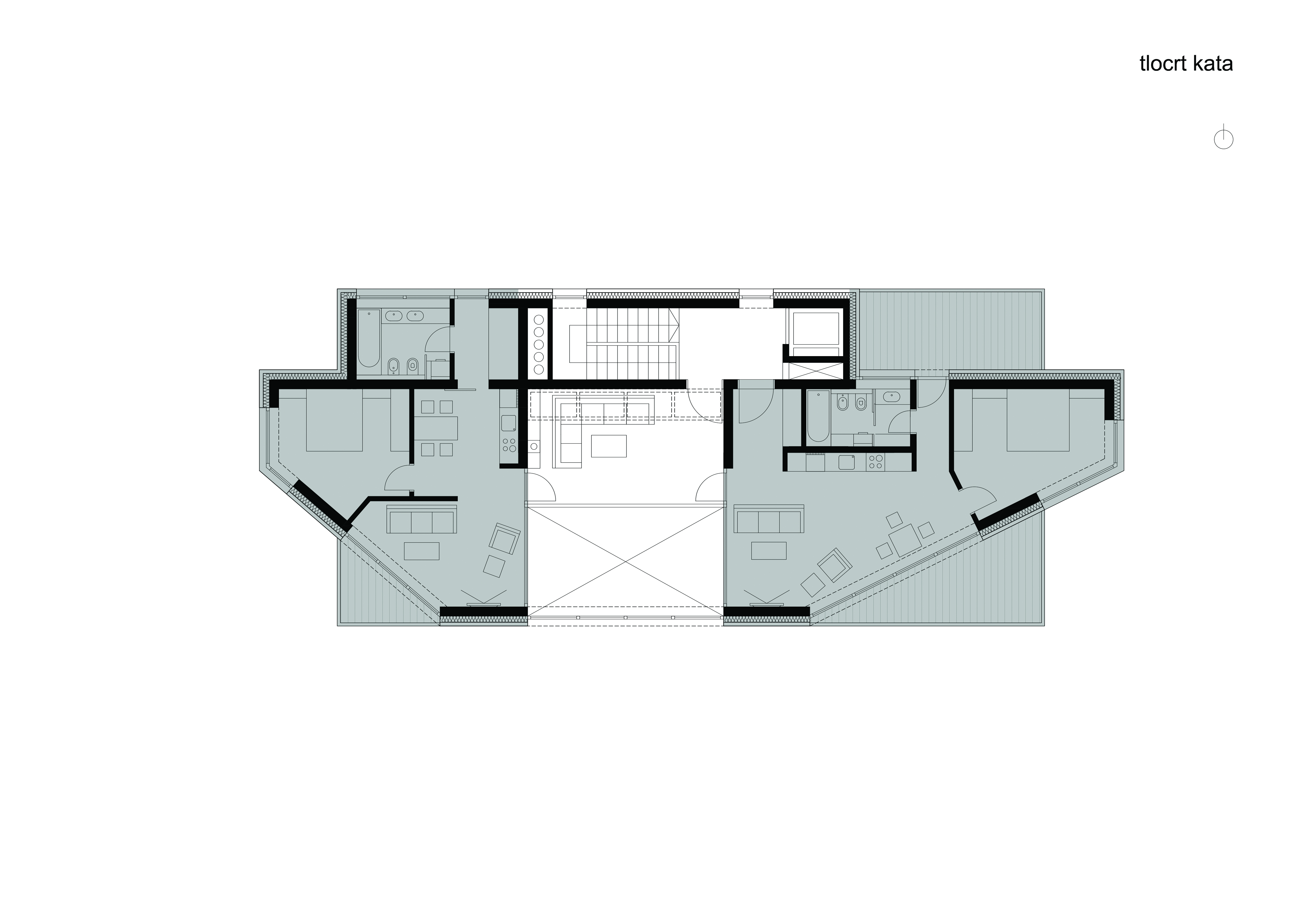
Obiteljska kuća F4

Foto: Mark Miščević
Foto: Mark Miščević
Foto: Mark Miščević
Foto: Mark Miščević
Foto: Mark Miščević
Foto: Mark Miščević

Autori:

Ljubomir Miščević
Mark Miščević

Tvrtka:

Projektni tim:

Suradnici:

Helena Ferkula , Davor Prebeg / PROJEKTNI STUDIO A DVA

Investitor:

Sanja Ferkula , Boris Ferkula

Izvođač:

SA BIŠĆAN

Godina početka projektiranja:

2017.

Godina dovršetka projektiranja:

2019.

Godina početka gradnje:

2019.

Godina dovršetka gradnje:

2021.

Površina obuhvata:

16496 m2

Ukupna tlocrtna površina:

750 m2

Program / vrsta:

Stanovanje

LOKACIJA:

Duga Resa

O projektu (tekst autora):

Kuća F4 u Belajskim Vinicama nedaleko Duge Rese, velika je obiteljska kuća za tri generacije. Smještena je na obiteljskom imanju, na idiličnoj južno orijentiranoj parceli okruženoj šumom.

Kuću funkcionalno i oblikovno čine tri segmenta. Prvi je masivna baza, postament koji definira odnos prema terenu - poluukopana etaža u kojoj su smješteni garaža, vinski podrum i stan za najstariju generaciju obitelji. Drugi je sjeverni volumen maksimalno zatvoren prema oštrom sjevernom vjetru i brijegu. U njemu su smješteni sekundarni prostori - stubište i sanitarije. Treći dio kompozicije su primarni stambeni prostori, svijetli volumen okrenut prema suncu, čije gotovo skulptorsko oblikovanje eksterijera proizlazi iz koncepta interijera sa središnjim dvoetažnim galerijskim zajedničkim prostorom i dvama bočnim „krilima“, odnosno dvama zasebnim stanovima kćeri i sina. Skošenja bočnih krila prate putanju sunca od izlaska do zalaska i otvaraju vrijedne vizure i kreiraju specifične trokutaste terase u jugoistočnom i jugozapadnom uglu.

Eklekticističko oblikovanje spaja tradicijske elemente lokacije (podjela na bazu i nadgrađe, kosi krov) i suvremeni izričaj (velike ostakljene površine, ugaoni prozori, konzolna krila). Načelo simetrije, koje proizlazi iz koncepta s dva bočna krila, negira različit odnos pročelja prema terenu. Kuća se prilagođava zatečenoj topografiji, „izrasta iz tla“, iz čega proizlazi različitost i dinamičnost pročelja koja je dodatno naglašena vanjskim stubištima u funkciji povezivanja interijera i eksterijera.  

U projektu je poseban naglasak stavljen na fleksibilnost (višegeneracijska kuća - mogućnost pregradnje u višestambenu zgradu), energetsku učinkovitost (standard pasivne kuće A+) i pristupačnost (dizalo, kontakt s terenom).

Impressum
Udruženje hrvatskih arhitekata

Trg bana J. Jelačića 3/1
Zagreb 10 000-HR

MB 03223043
OIB 01152649489

IBAN HR6223600001101550751

tel  +385 (1) 48 16 151
fax  +385 (1) 48 16 197
tajnistvo@uha.hr
Radno vrijeme 9-17h

Copyright © UHA