Godišnja izložba
ostvarenja

Priko vode

Foto: Damir Fabijanic
Foto: Damir Fabijanic
Foto: Damir Fabijanic
Foto: Damir Fabijanic
Foto: Damir Fabijanic
Foto: Damir Fabijanic

Autori:

Davor Mateković

Tvrtka:

PROARH

Projektni tim:

Tomislav Stojan , Oskar Rajko / PROARH

Suradnici:

RADIONICA STATIKE

Investitor:

Grad Solin

Izvođač:

MP beton d.o.o.

Godina početka projektiranja:

2015.

Godina dovršetka projektiranja:

2018.

Godina početka gradnje:

2019.

Godina dovršetka gradnje:

2021.

Površina obuhvata:

2178 m2

Ukupna tlocrtna površina:

1725 m2

Program / vrsta:

Odgoj i obrazovanje

LOKACIJA:

Solin

O projektu (tekst autora):

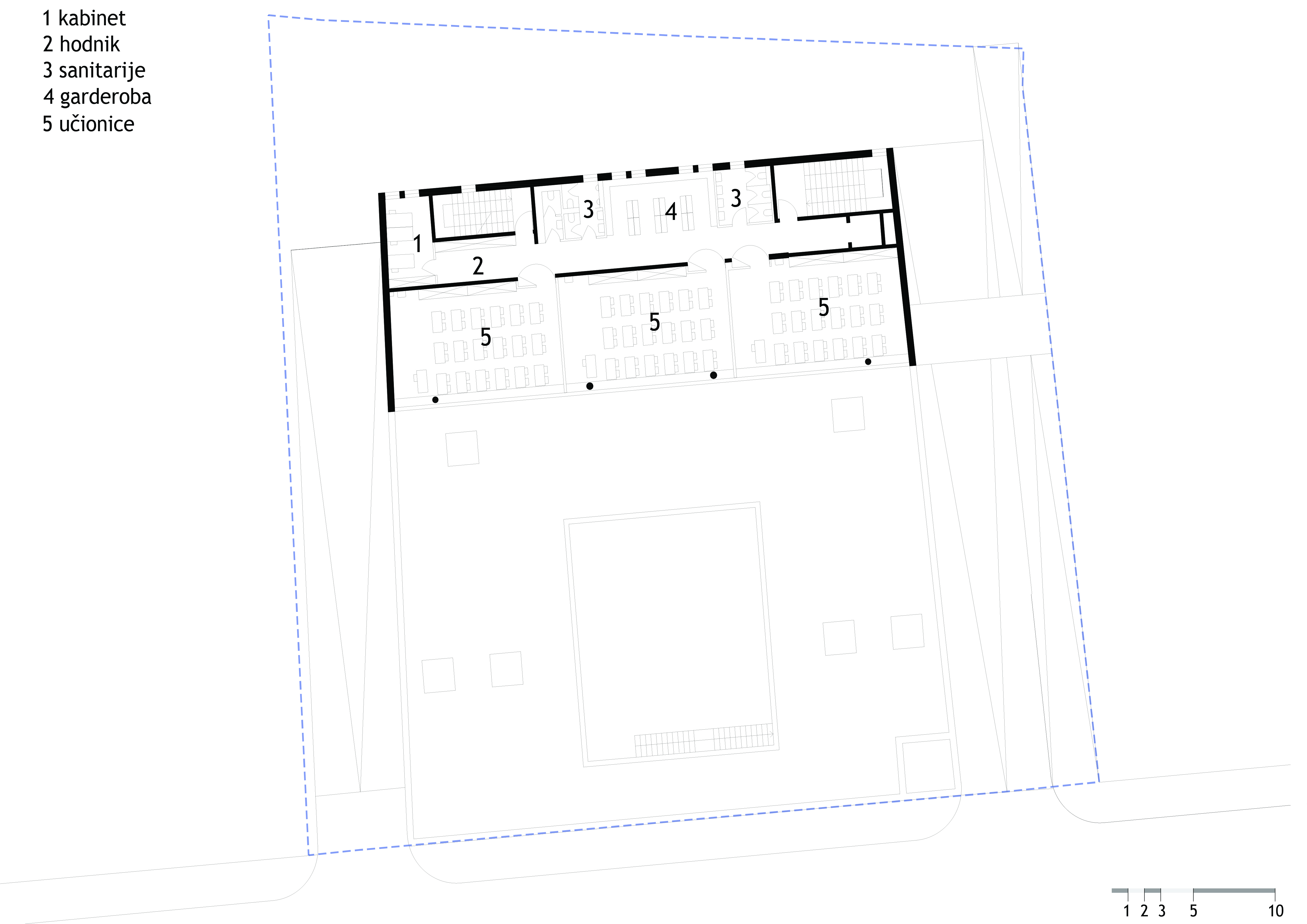
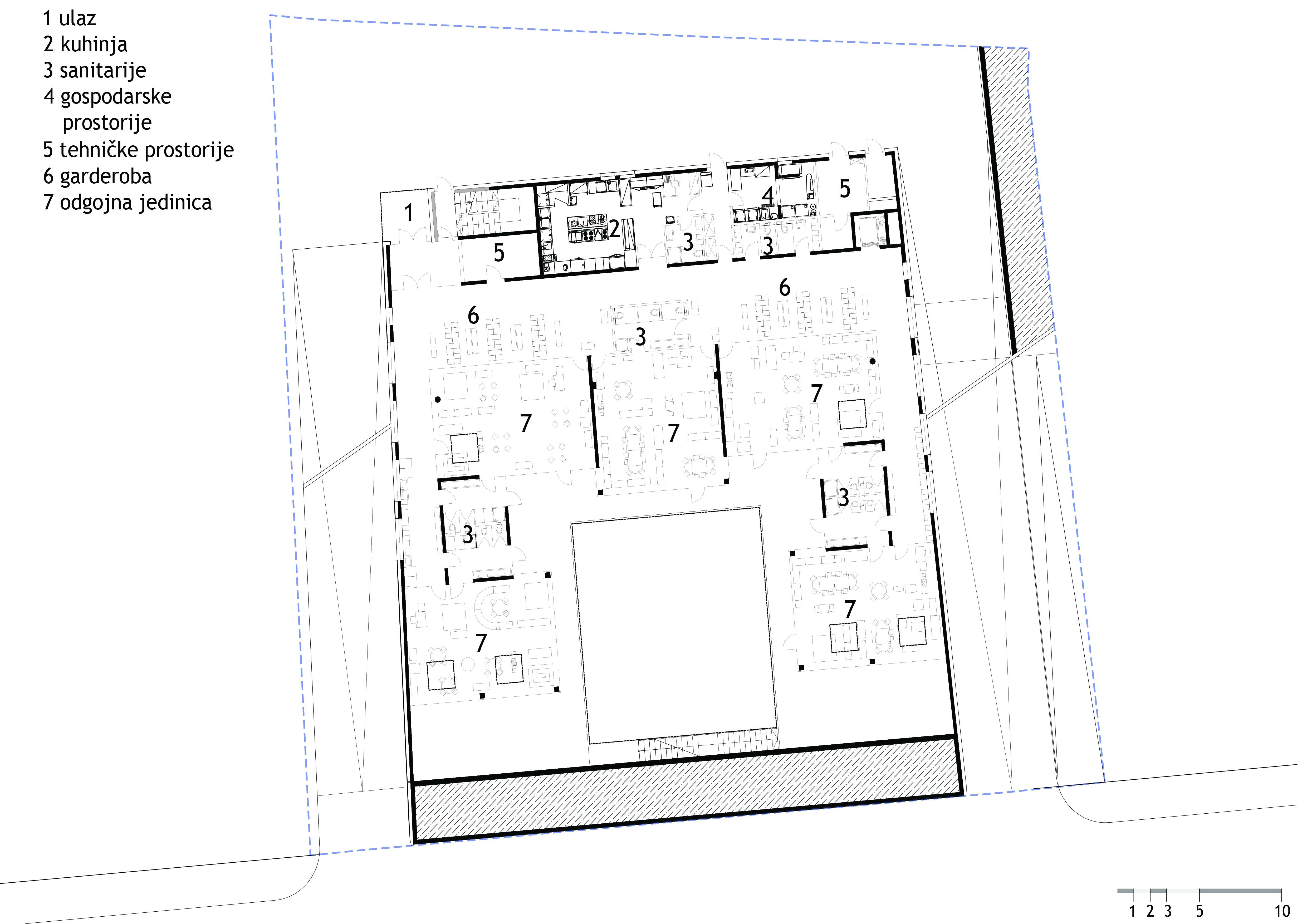
Vrtić/škola Priko vode u Solinu neobičan je mash up obrazovnih sadržaja, naizgled nespojivih po svojem karakteru. Parcela je pravilna, ali značajno denivelirana u odnosu na pristupnu, vrlo prometnu cestu. U objekt je trebalo smjestiti osnovnu školu i dječji vrtić, koji su namjenski slični ali u korištenju i karakteru, nisu samo različiti, nego jedna drugom predstavljaju ograničavajući čimbenik. Kako bismo postigli najbolje uvjete za oba sadržaja, objekt se odmiče od ceste i tako se otvara prostor za poluukopanu etažu u kojoj su smješteni vrtić i jaslice, orijentirani prema atriju. Tako je stvoren potrebna zona za dječje igralište, vizualno ugodan potez zelenila na krovu te su se škola i vrtić indirektno odvojili premda su i dalje dio istog volumena. Školski sadržaji postavljeni su jedni na druge, na katovima, orijentirani na jug i okrenuti prema mediteranskom vrtu na krovu vrtića, novoformiranom parteru, vertikalno se udaljavajući od kaosa i buke vrtića u prizemlju. Oblikovno je riječ o jednostavnom kvadru koji se razlama po horizontali, rasklapa te time prati koncept naglašenog fizičkog razdvajanja sadržaja unutra jednog volumena. Takav volumen, vrlo statičnog karaktera potrebno je omekšati što se postiže odabirom materijala-perforirani/profilirani lim daje prozračnost i mekoću te ublažava dominanti volumen. Priko vode predstavlja zanimljivo istraživanje dispozicijskih zahtjeva i ograničenja te želju da se stvori kvalitetan prostor za oba sadržaja, koji trebaju besprijekorno funkcionirati zajedno, ali i odvojeno.

Impressum
Udruženje hrvatskih arhitekata

Trg bana J. Jelačića 3/1
Zagreb 10 000-HR

MB 03223043
OIB 01152649489

IBAN HR6223600001101550751

tel  +385 (1) 48 16 151
fax  +385 (1) 48 16 197
tajnistvo@uha.hr
Radno vrijeme 9-17h

Copyright © UHA