Godišnja izložba
ostvarenja

Projekt unutarnjeg uređenja i muzejskog postava Gradskog muzeja Korčula

Foto: Mario Zlokić
Foto: Mario Zlokić
Foto: Mario Zlokić
Foto: Mario Zlokić
Foto: Mario Zlokić
Foto: Mario Zlokić

Autori:

Petra Ivanišević Brzulja
Martina Jelić

Tvrtka:

Arhitektonska radionica centar d.o.o.

Projektni tim:

Petra Ivanišević Brzulja , Martina Jelić

Suradnici:

Ivo Vojnović / Ured Vojnović d.o.o. (izvedbeni projekt rekonstrukcije) , Jasminka Stipišić Čale d.o.o. (nadzor) , Jeroslav Šegedin Čale d.o.o. (nadzor)

Investitor:

Grad Korčula

Izvođač:

,

Godina početka projektiranja:

2018

Godina dovršetka projektiranja:

2019

Godina početka gradnje:

2019

Godina dovršetka gradnje:

2021

Površina obuhvata:

498 m2

Ukupna tlocrtna površina:

498 m2

Program / vrsta:

Interijer
Kultura
Javni prostor
Izložbe

LOKACIJA:

Korčula

O projektu (tekst autora):

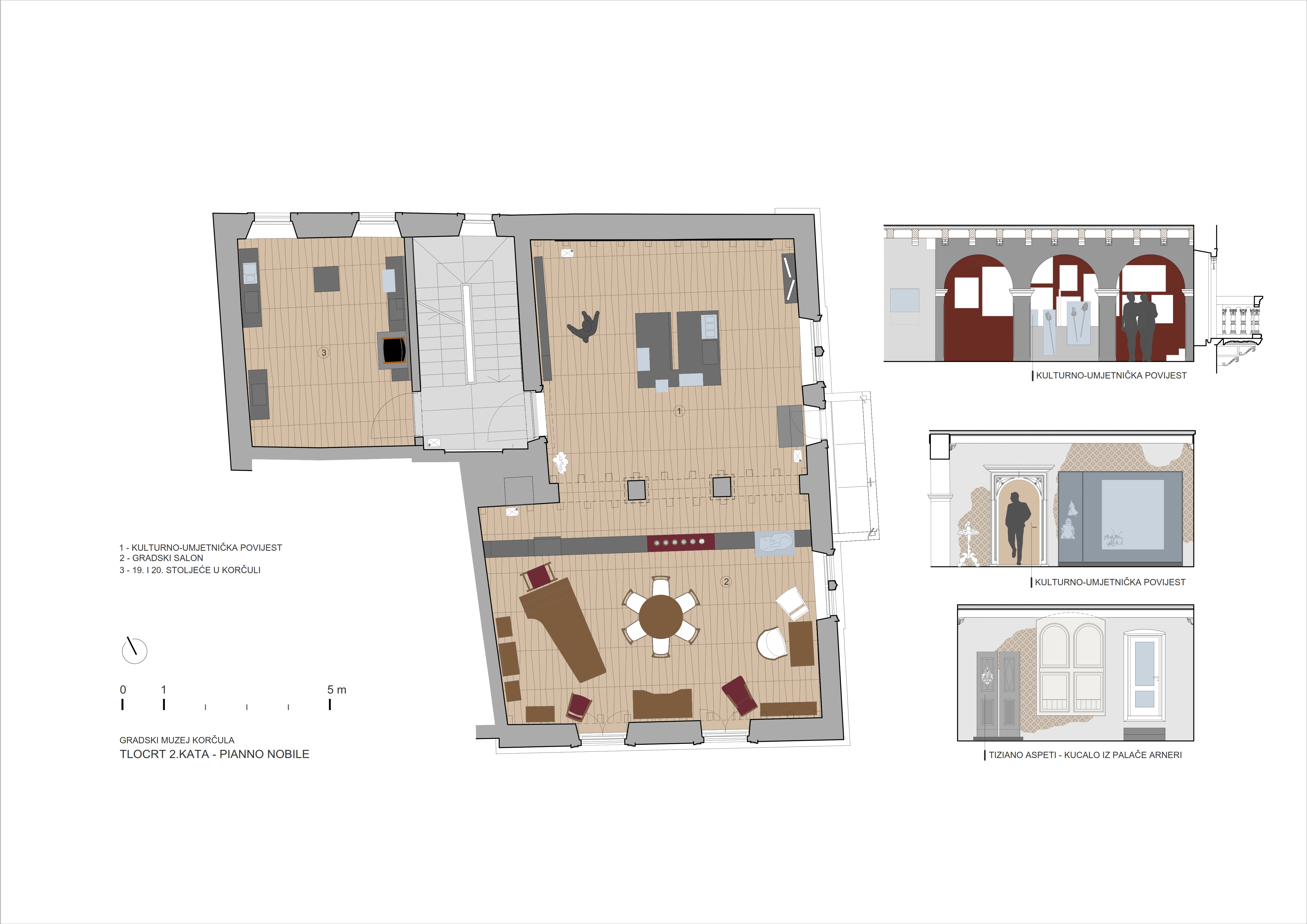
Gradski muzej je smješten u zaštićenom spomeniku kulture - renesansnoj palači Gabriellis koja se nalazi na glavnom trgu grada Korčule.

Zadatak projekta unutrašnjeg uređenja i muzejskog postava je bio zahtjevan zbog vrijednosti palače, te kontinuiteta gradnji i nadogradnji unutar nje, što je rezultiralo postavom unutar kojeg se usporedno prezentiraju vrijedni predmeti - izlošci kao i detalji same palače.

Opremom muzejskog postava nije se zadiralo u konstrukciju objekta, stoga su postamenti, vitrine i panoi na kojima je predstavljen muzejski postav udaljeni i neovisni od zidova, ali skladno ukomponirani u prostor.

Jednostavni sivi panoi i kubusi postamenata olakšani staklenim plohama i vitrinama stvaraju moderan i nenapadan prostor u kojem izlošci dolaze do izražaja. Neutralna siva boja muzejske opreme na drvenom parketu suvremenog geometrijskog uzorka daju dojam topline.

Muzej obuhvaća razne teme i razdoblja koja su prezentirana kronološki kroz etaže, a na stubištu se paralelno s krakom nalazi osvijetljena povijesna lenta s prikazom značajnih događaja vezanih za Korčulu.

Prvi kontakt posjetitelja je upoznavanje otoka, grada, važnost strateške pozicije grada Korčule te povijest same Palače.

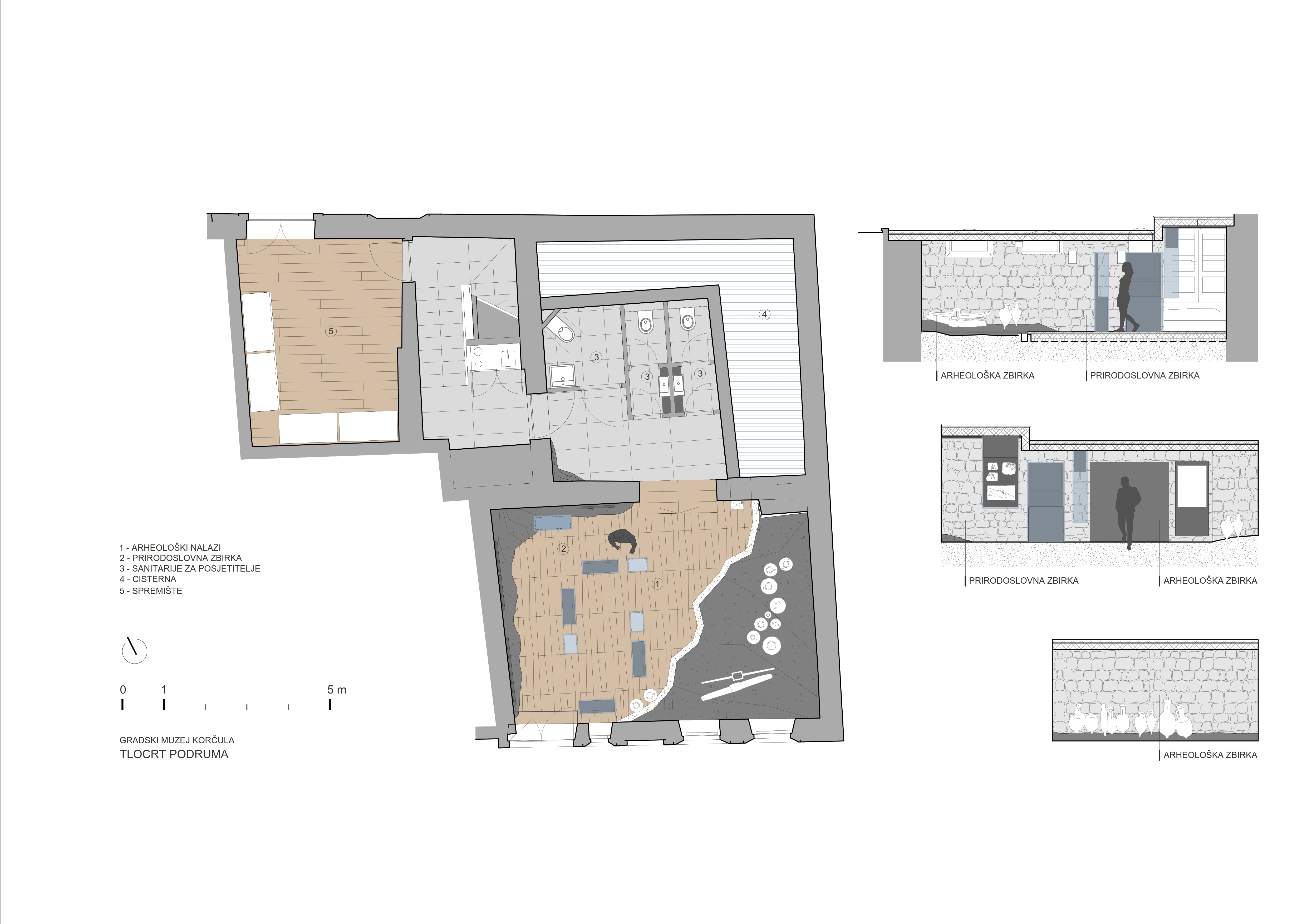
U podrumu je soba posvećena arheologiji s prirodnom stijenom na podu koja je pružila odličnu scenu za izlaganje arheoloških nalaza iz morskih dubina poput amfora. Vitrine su stajaći i viseći stakleni kubusi koji pričaju priču o nastanku i životu otoka pradoba i antike.

Tema prvog kata je razdoblje najvećeg procvata Grada, vrijeme Srednjeg vijeka. U centru sobe je interaktivna maketa grada, prezentirani su kameni grbovi, Statut Grada, stare karte i modeli brodova i alat brodogradilišta.

Na drugom katu je izložen salon palače, tema Moreške i kumpanije te svakodnevni predmeti starih gradskih obitelji. Pronađeni fragmenti starih oslika su projektom restaurirani i prezentirani.

Na istom katu je soba posvećena 19. i 20.st. kada su u Korčuli djelovali bitni umjetnici - P. Šegedin, F. Kršinić, ... U toj prostoriji je prezentirana stolica A3, dizajn Bernarda Bernardija čime on dobiva zasluženo mjesto u stalnom postavu gradskog muzeja svog rodnog grada.

Na trećem katu je kuhinja u prostoriji originalne namjene s autohtonim arhitektonskim elementima.

Istočno je velika prostorija u sklopu biblioteke predviđena za razna događanja. Dvanaest fotelja iz Hotela Liburna arhitekta Bernardija temeljito restaurirane u originalnom tonu i materijalu, vraćene su u svoju temeljnu funkciju, te su istovremeno eksponat i aktivni dio opreme novog interijera ove nezaobilazne palače i vrijednog Muzeja.

Impressum
Udruženje hrvatskih arhitekata

Trg bana J. Jelačića 3/1
Zagreb 10 000-HR

MB 03223043
OIB 01152649489

IBAN HR6223600001101550751

tel  +385 (1) 48 16 151
fax  +385 (1) 48 16 197
tajnistvo@uha.hr
Radno vrijeme 9-17h

Copyright © UHA